Vrijstaande villa in Benejúzar – Ruim en vol potentieel
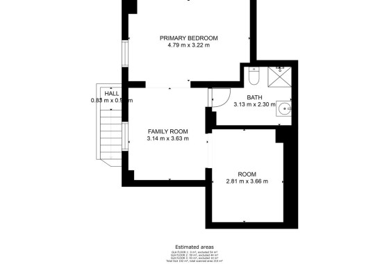
Wij presenteren deze vrijstaande villa in Benejúzar, een woning met veel ruimte en eindeloze mogelijkheden voor maatwerk. De hoofdverdieping beschikt over 5 grote slaapkamers, 2 badkamers, een lichte woon-eetkamer en een keuken met directe toegang tot het terras en de wasruimte.
Op de begane grond bevindt zich een woonkamer met open haard en een zeer ruime kamer die momenteel als biljartkamer wordt gebruikt, ideaal voor bijeenkomsten met familie of vrienden.
De woning ligt op een perceel van 3.285 m² met verschillende soorten bomen en heeft een groot zwembad van 50 m³, perfect om van het mediterrane klimaat te genieten.
Gebouwd in 1975, behoudt het huis de kwaliteit van de originele constructie en verkeert in zeer goede algemene staat. De ramen zijn van hout, en hoewel de woning binnen en buiten geschilderd moet worden, biedt het oneindige mogelijkheden om het te moderniseren en naar eigen smaak aan te passen. Het zwembad heeft ook een renovatie van de tegels nodig, zodat u het naar wens kunt aanpassen.
Op slechts 30 minuten van de luchthaven van Alicante en 15 minuten van de stranden van de Costa Blanca, biedt dit huis rust, ruimte en een toplocatie. Een woning als deze moet je echt persoonlijk bekijken om het volledige potentieel te waarderen.