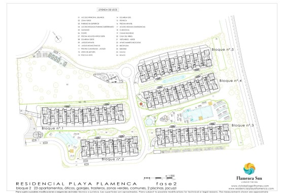
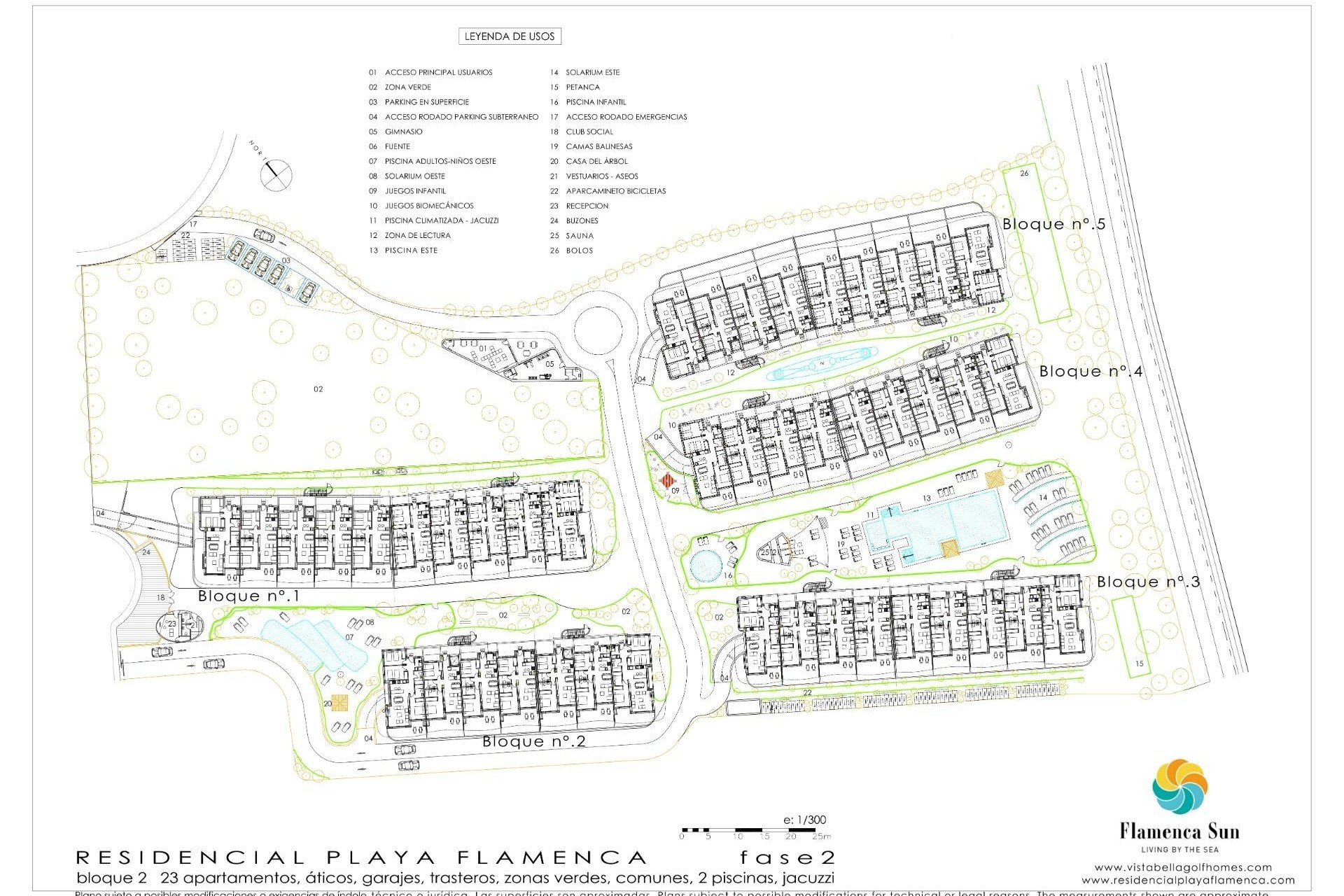
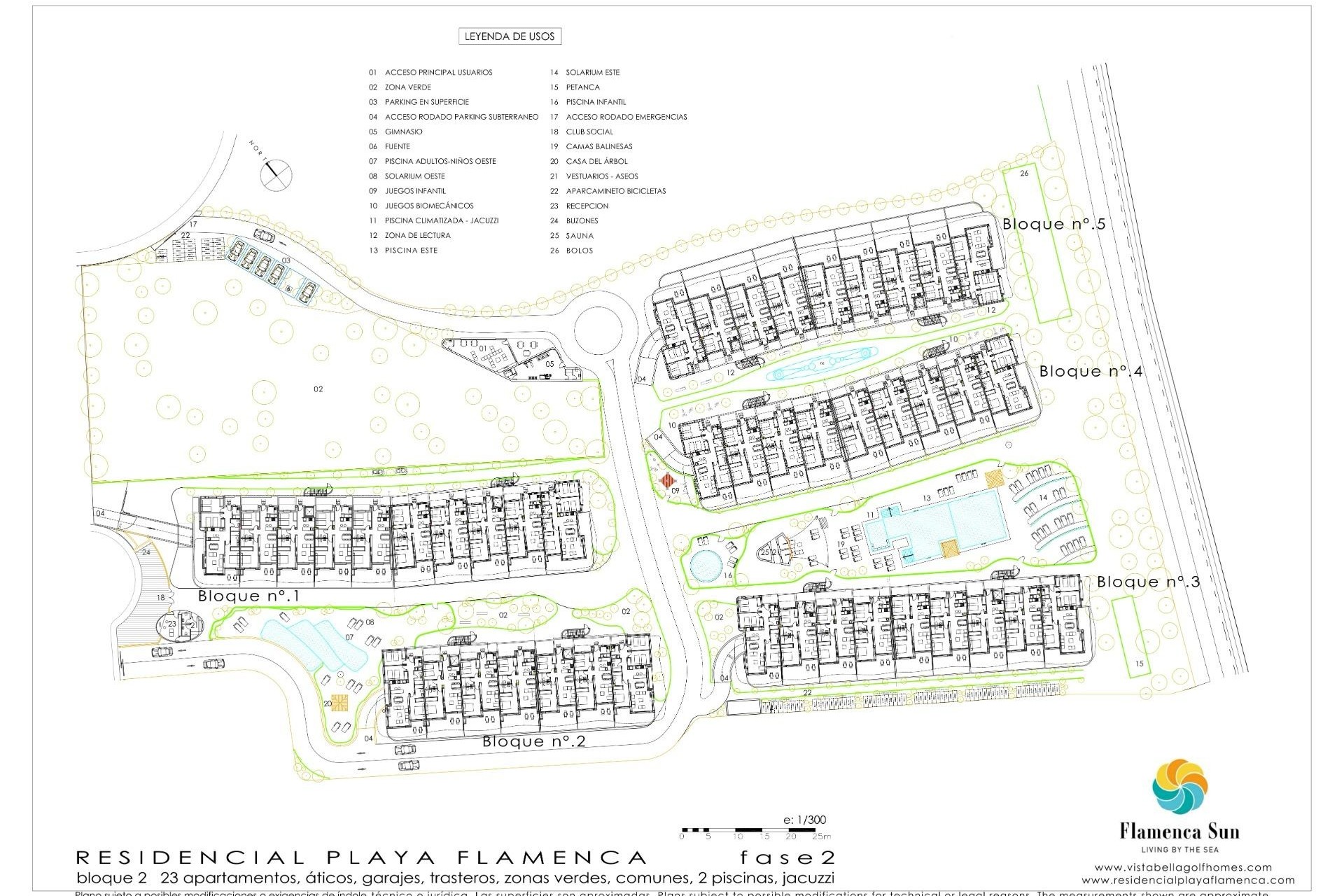
Ontdek een exclusief nieuwbouwproject in Playa Flamenca, Orihuela Costa, ontworpen voor wie op zoek is naar een moderne woning op een uitstekende locatie met een groot potentieel, zowel voor eigen gebruik als investering aan de Costa Blanca. Het betreft een project dat in verschillende fasen wordt ontwikkeld, waardoor u de mogelijkheid heeft om nieuwbouwwoningen te kopen in diverse bouwstadia met een sterke waardestijgingspotentie.~~Het complex beschikt reeds over een eerste gebouw dat volledig is opgeleverd en verkocht, met een gemeenschappelijk zwembad in gebruik. Blok 2 bevindt zich in de laatste afwerkingsfase, blok 3 is in uitvoering van de binnenmuren en blok 4 — waar deze woningen toe behoren — bevindt zich momenteel in de funderings- en ruwbouwfase. Dit maakt blok 4 bijzonder interessant voor kopers die willen investeren tegen een competitieve prijs in een gebied met sterke ontwikkeling.~~De woningen zijn ontworpen met een moderne, functionele en lichte indeling, met ruime terrassen die ideaal zijn om het mediterrane klimaat het hele jaar door te ervaren. Beschikbaar met 2 en 3 slaapkamers, bieden ze goed ingedeelde ruimtes, open keukens die naar wens kunnen worden ingericht en hoogwaardige afwerkingen zoals PVC ramen met dubbele beglazing, tegelvloeren en een pre-installatie voor airconditioning. Daarnaast beschikken alle woningen over een parkeerplaats en een berging.~~Na voltooiing zal het residentiële complex beschikken over meerdere gemeenschappelijke zwembaden, aangelegde tuinen en ontspanningsruimtes, allemaal binnen een afgesloten en veilige urbanisatie.~~Een van de grootste pluspunten is de ligging, op slechts 500 meter van het strand en op korte afstand van alle voorzieningen. Het project ligt dichtbij Mercadona en het Centro Comercial La Zenia Boulevard, evenals supermarkten, restaurants, recreatiegebieden, medische centra, scholen en golfbanen.~~Kortom, een vastgoedkans die locatie, bouwkwaliteit en investeringspotentieel perfect combineert.~Ikke gå glipp av sjansen til å bo i et privilegert miljø. Kontakt oss i dag for mer informasjon og for å avtale en visning!~~Prijs: €375.000*. Belastingen en aankoopkosten NIET inbegrepen (volgens de geldende regelgeving).~Een gedetailleerd overzicht van de bijkomende kosten wordt vóór reservering verstrekt.~*De prijs kan typografische fouten bevatten; gelieve dit te bevestigen bij de projectontwikkelaar.