NIEUWBOUW VILLA'S IN ROLDAN
Luxe 2 gelijkvloerse nieuwbouw villa's in Roldan, Murcia.
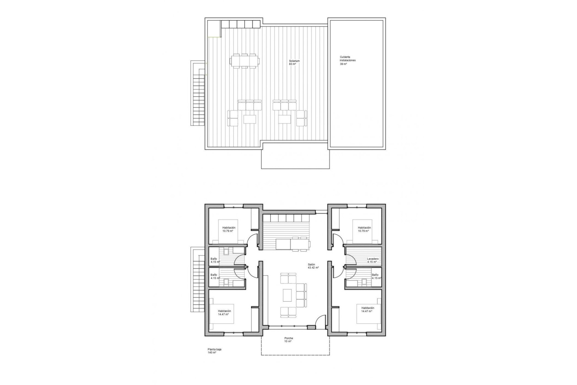
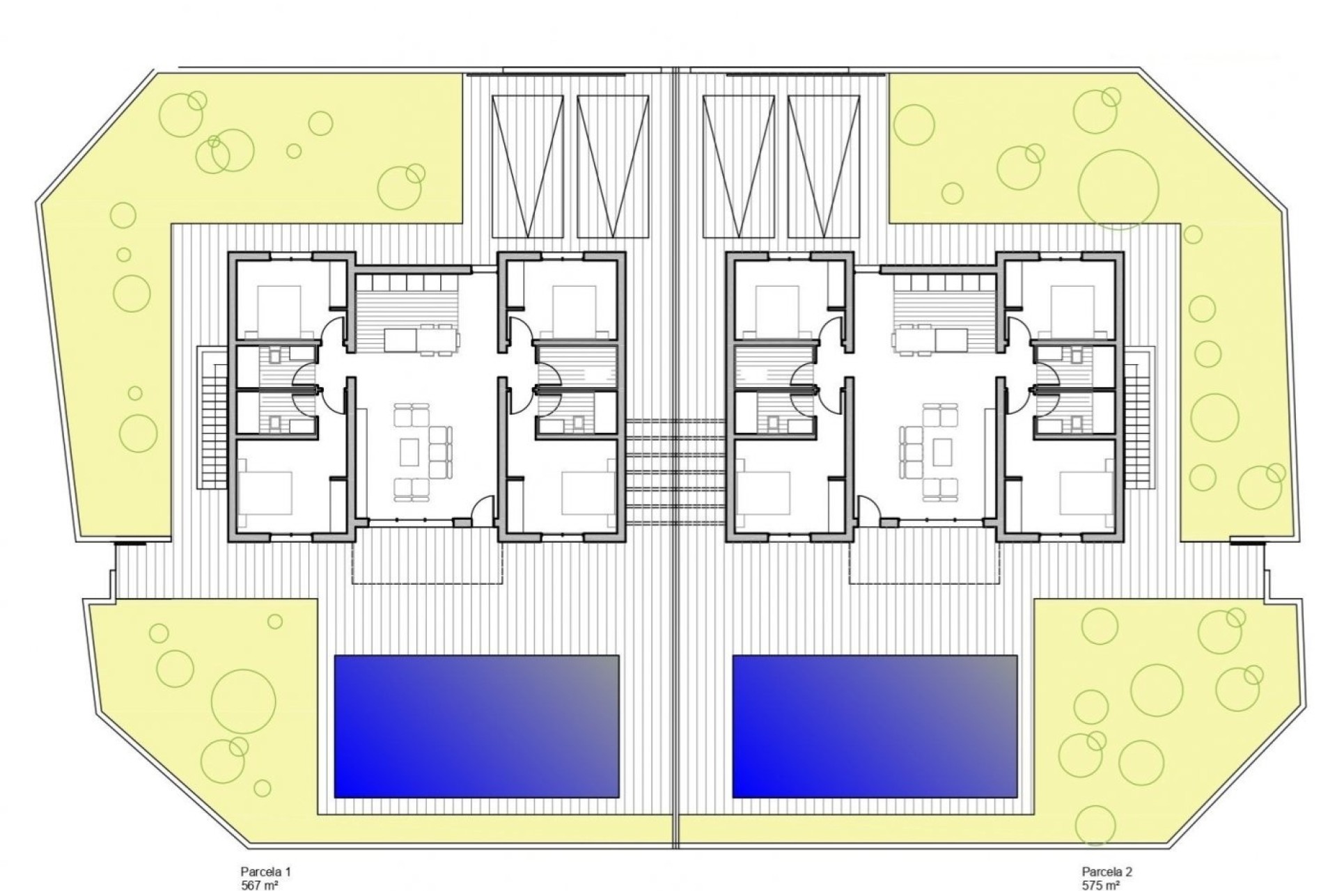
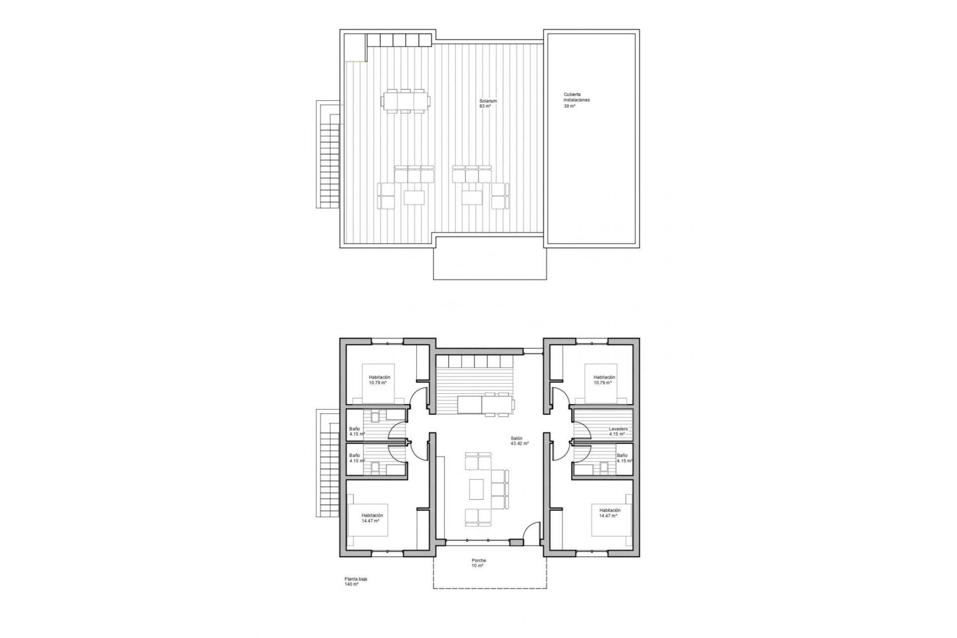
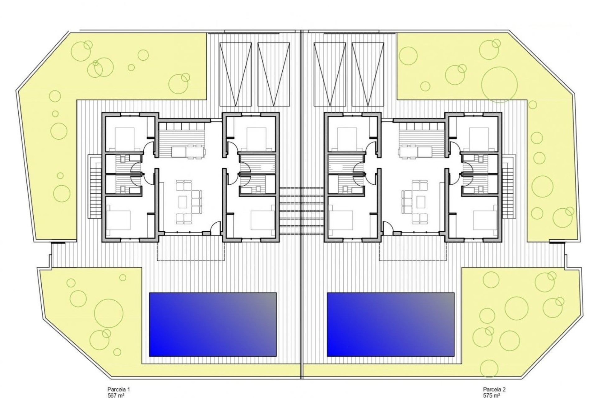
Villa's gebouwd op percelen van bijna 600 M2 elk, met privé zwembad van 30 M2, tuin en groot solarium op het dak.
Elke woning heeft 4 slaapkamers en 3 ingerichte badkamers en zijn ontworpen met een eigentijdse stijl en een open gepland concept, bestaande uit een volledig ingerichte keuken en woon-eetkamer.
De ontwikkeling is gelegen in Roldán (Murcia), in een omheind en beveiligd resort, opgenomen in een deelplan van 300.000 M2, omgeven door alle diensten, sportfaciliteiten en in de buurt van verschillende Golfbanen.
De woning zal voldoen aan de hoogste normen en zal worden uitgerust met:
Privé zwembad van 30 M2 met zonnedouche.
Pre-installatie voor verwarmde pomp.
Keuken volledig ingericht en uitgerust met verhoogde oven, ingebouwde magnetron, geïntegreerde vaatwasser, koelkast en afzuigkap.
Eiland in de keuken.
LED verlichting: binnen de woning (eetkamer, keuken, gangen en badkamers), evenals in de buitenruimtes.
Beklede kasten met laden.
Volledig ingerichte badkamers met hangend badmeubel en hangend toilet, spiegel met licht, douche met "regeneffect" en doucheschermen.
Pre-installatie voor gekanaliseerde airconditioning.
Zomerkeuken met schuifdeuren in solarium. Pre-installatie voor wasmachine en stopcontact voor koelkast.
Zonnepaneel.
Parkeerplaats op het perceel.
Roldan zelf is een traditionele stad met alle lokale voorzieningen die u nodig heeft, zoals supermarkten, restaurants, bars, kliniek, apotheek, politiebureau, benzinestation, monteurs, tandartsen, artsen en nog veel meer.
De nabijgelegen golf resorts van La Torre, & Terrazas zijn gemakkelijk bereikbaar, Corvera Airport ligt op 15 minuten afstand en de stranden van de Mar Menor op slechts 20 minuten rijden.