Sluiten Sluiten

Los Alcazares. Murcia Vrijstaande Villa. NIEUWBOUW

361.500€
#Ref.:RP-46190

Los Alcazares. Murcia Vrijstaande Villa. NIEUWBOUW

361.500€

Overzicht

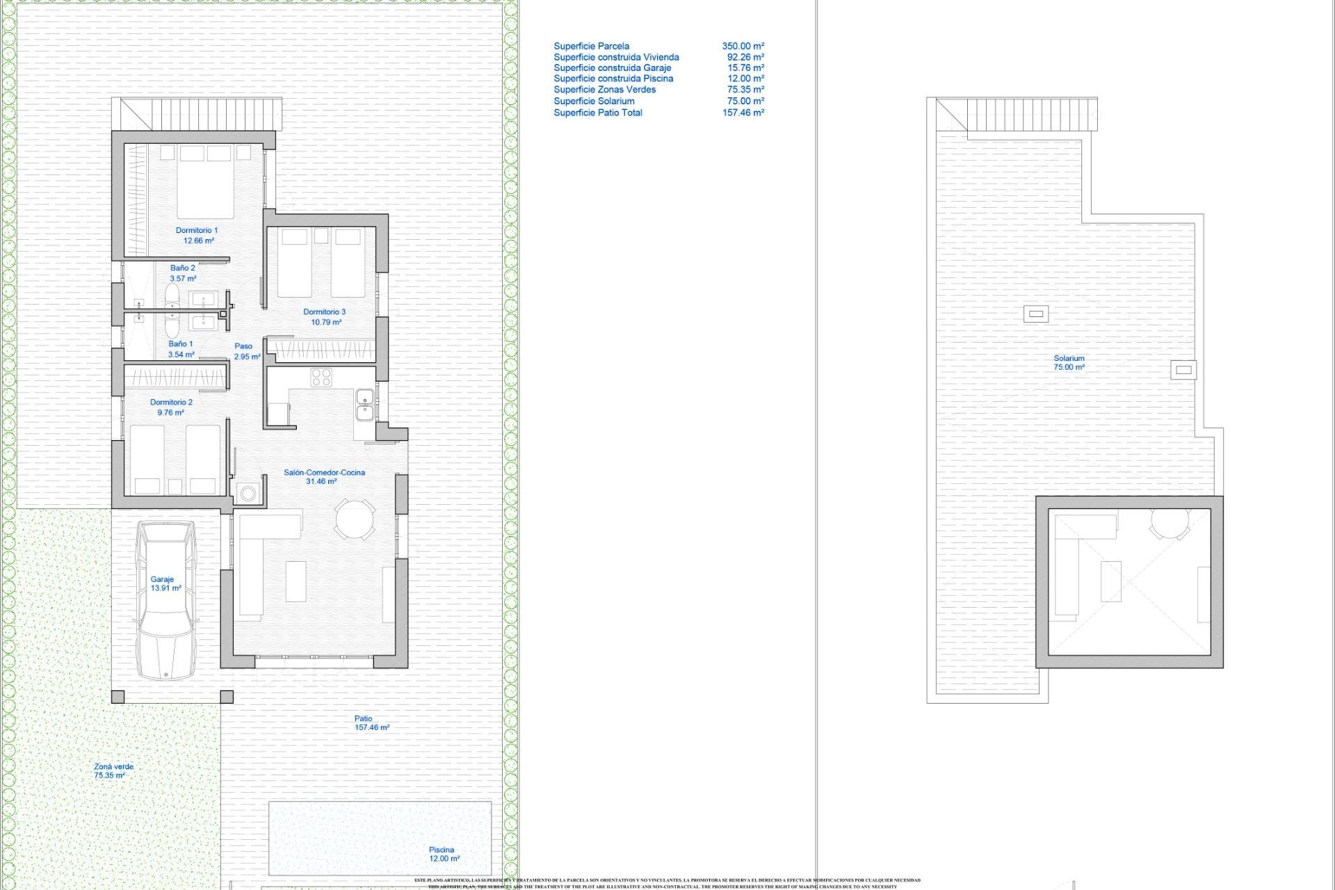
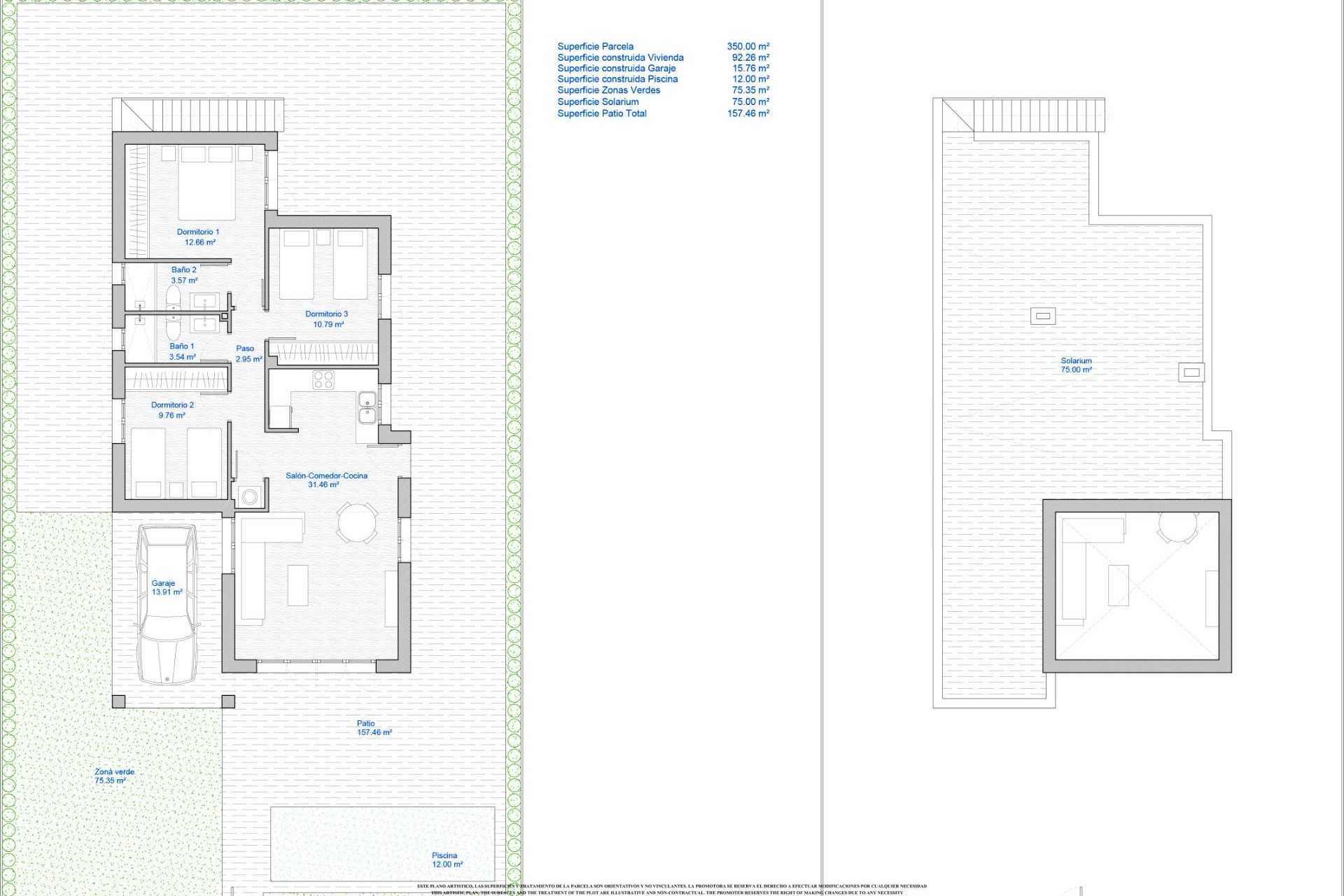
  • Meters. 108m2
  • perceel. 350m2
  • Slaapkamer. 3
  • Badkamer. 2
Slaapkamers: 3
Badkamers: 2
Woonoppervlakte: 108m2
Perceel: 350m2
Number of Parking Spaces: 1
Near Golf / Golf Resort Property
Air Conditioning: Pre-Installed
Double Bedrooms: 3
Near Commercial Center
Location: Coastal
Beach: 1000 Meters
Useable Build Space: 95 Msq.
Parking - Space
Terrace: 105 Msq.
Garden
Near bus route
Solarium: Yes
Gated

Beschrijving

Los Alcazares. Murcia Vrijstaande Villa. NIEUWBOUW

Locatie


Bel-chic

Een vraag stellen

Verwerkingsverantwoordelijke: LEDDY HOMES SPAIN SL, Doel van de verwerking: Beheer en controle van de diensten die worden aangeboden via de Vastgoeddiensten-website, Verzenden van informatie via nieuwsbrief en andere, Rechtsgrond: Met toestemming, Ontvangers: Gegevens worden niet gedeeld, behalve voor boekhoudkundige doeleinden, Rechten van betrokkenen: Toegang, rectificatie en verwijdering van gegevens, verzoek om overdraagbaarheid, bezwaar tegen verwerking en verzoek om beperking daarvan, Herkomst van gegevens: De Betrokkene, Aanvullende informatie: U kunt aanvullende en gedetailleerde informatie over gegevensbescherming Hier raadplegen.

Zoeken
Neem contact met ons op