Nieuwbouwwoningen met solarium en keldergarage in Bigastro Vega Baja
Exclusief project met slechts twee moderne woningen
Dit boutique nieuwbouwproject bestaat uit slechts twee woningen in het rustige stadje Bigastro, gelegen in de Vega Baja-regio aan de zuidkust van de Costa Blanca. Deze woningen zijn ontworpen met een praktische indeling over meerdere verdiepingen en combineren ruimte, comfort en energie-efficiëntie in een goed bereikbare woonomgeving.
Bigastro staat bekend om zijn rustige sfeer, traditionele Spaanse karakter en uitstekende toegang tot nabijgelegen steden, stranden en voorzieningen. Het biedt een ontspannen levensstijl en ligt toch dicht bij alles wat u nodig heeft voor het dagelijks leven, waardoor het ideaal is voor zowel permanente bewoning als vakantiegebruik.
Ruime indeling over vier verdiepingen
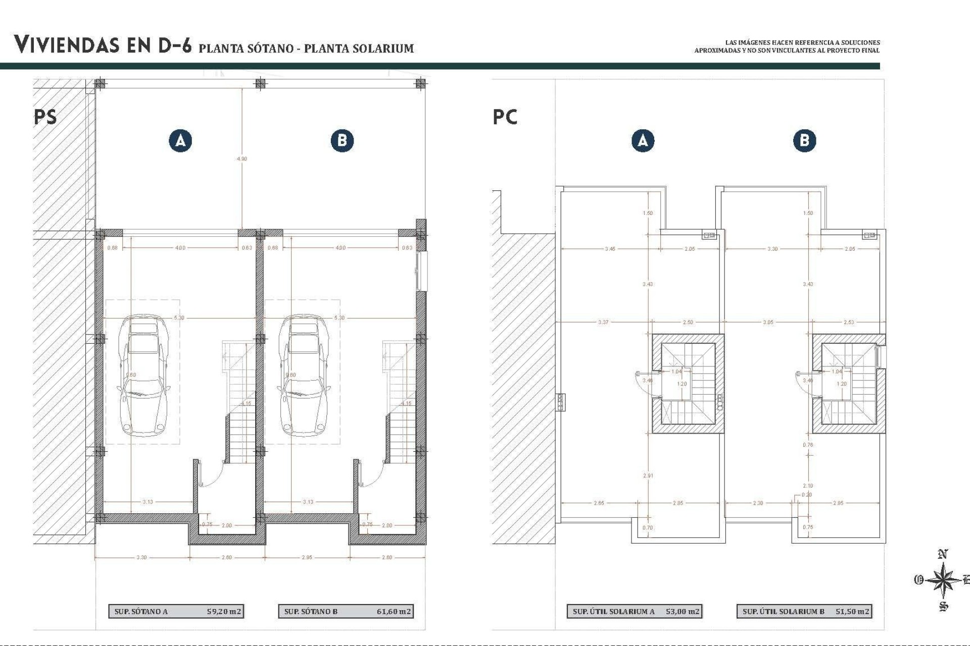
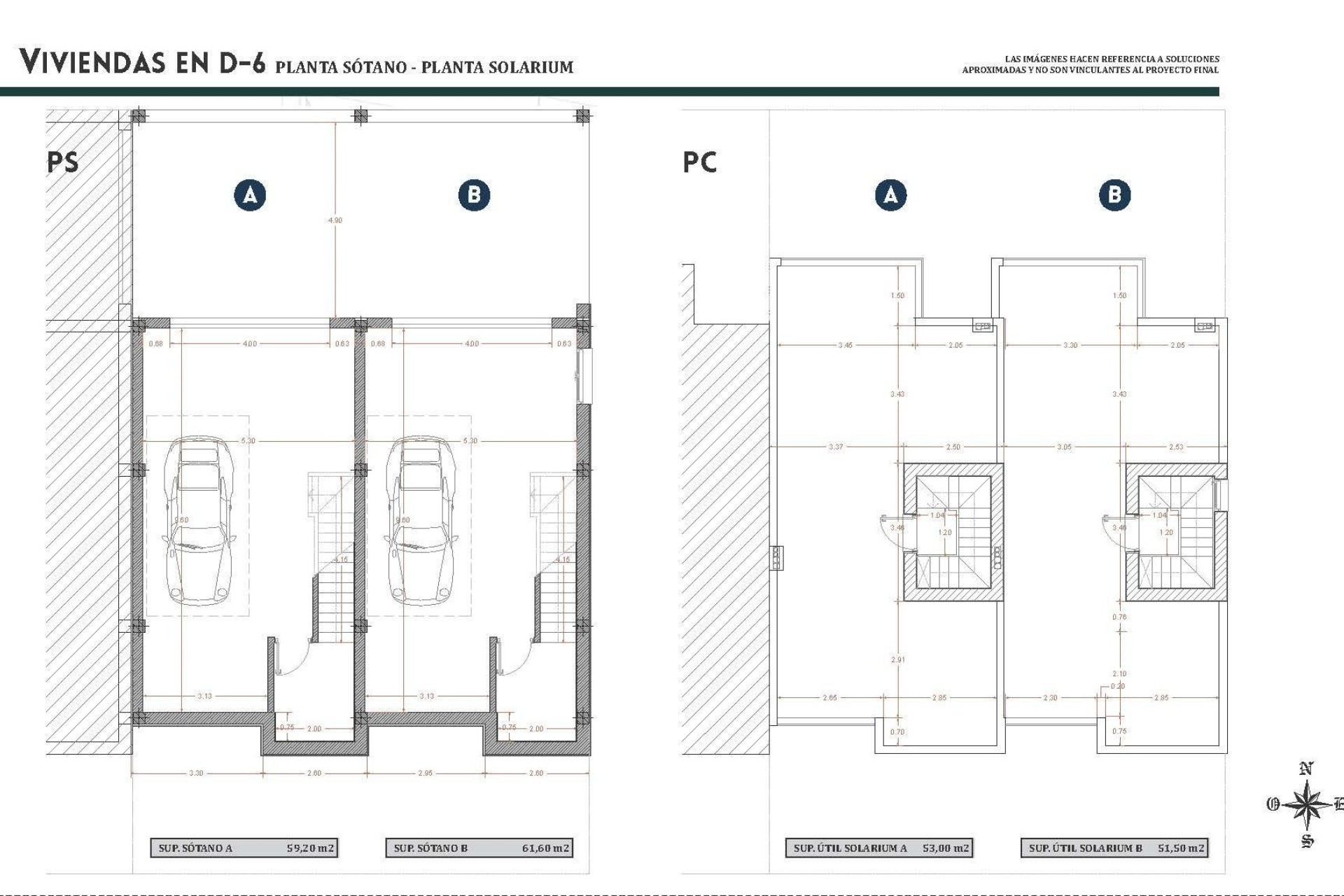
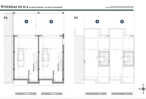
Elke woning is verdeeld over een kelder, begane grond, eerste verdieping en dakterras, waardoor er royale binnen- en buitenruimtes zijn.
De kelder van 59 m2 is ontworpen als een privégarage met een gemotoriseerde toegangsdeur, die veilige parkeergelegenheid en extra opslagruimte biedt.
Op de begane grond vindt u een lichte open woonkamer met keuken, een gastentoilet en twee terrassen, één aan de voorzijde en één aan de achterzijde, waardoor er de hele dag door natuurlijk licht en ventilatie is.
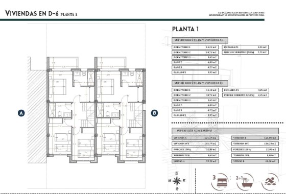
De eerste verdieping beschikt over 3 slaapkamers en 2 badkamers, waarvan één ensuite, plus een extra terras. Op het hoogste niveau biedt een privé dakterras van ongeveer 40 m² de perfecte ruimte om te ontspannen, te zonnen of een buitenruimte te creëren om te relaxen.
Kwaliteitskenmerken en energiezuinige systemen
Deze woningen zijn gebouwd met moderne materialen en doordachte details om comfort en efficiëntie te garanderen, waaronder:
Versterkte veiligheidsdeur
Aerothermisch systeem voor warm water
Fotovoltaïsche zonnepanelen
Elektrische rolluiken in de woonkamer en slaapkamers
Voorbereiding voor airconditioning met luchtkanalen
Gemotoriseerde garagedeur
Bewoners hebben ook toegang tot het gemeenschappelijke zwembad in de urbanisatie, wat een extra meerwaarde biedt voor ontspanning en recreatie.
Goed bereikbare locatie dicht bij stranden en voorzieningen
Centrum van Bigastro 0,5 km
Stad Orihuela 5 km
Stranden van Guardamar del Segura 15 km
Winkelcentrum Zenia Boulevard 20 km
Ziekenhuis Vega Baja 10 km
Internationale luchthaven van Alicante 48 km
Verschillende golfbanen binnen 15 km
De nabijgelegen snelweg AP 7 biedt snelle verbindingen naar Alicante, Murcia en de omliggende kustplaatsen.
Een uitstekende kans in een groeiende woonwijk
Met lokale winkels, scholen, sportfaciliteiten, parken en restaurants wordt Bigastro steeds populairder bij zowel nationale als internationale kopers die op zoek zijn naar levenskwaliteit en goede verbindingen.
Neem vandaag nog contact met ons op voor meer informatie of om een bezichtiging te regelen van deze exclusieve nieuwbouwwoningen in Bigastro.