Gelegen in de charmante stad Torrevieja, presenteert dit exclusieve vastgoedaanbod twee onafhankelijke woningen die opvallen door hun moderne en functionele ontwerp. Met uitzicht op zee bieden deze eigendommen een unieke woonervaring op slechts 2 km van de kust. De nabijheid van de luchthaven, op 40 km, vergemakkelijkt de toegang tot internationale verbindingen, waardoor ze een ideale keuze zijn voor zowel permanente bewoning als vakantie. De woningen zijn ontworpen om comfort en efficiëntie te maximaliseren en integreren hoogwaardige kenmerken die een superieure woonervaring garanderen.
BUITENRUIMTES
De buitenruimtes van deze onafhankelijke woningen in Torrevieja zijn ontworpen om optimaal te genieten van het mediterrane klimaat. Elke woning beschikt over een privé tuin, perfect om een persoonlijke oase van rust te creëren. Het ruime en goed georiënteerde terras biedt een ideale ruimte om te ontspannen of te genieten van buitenmaaltijden met uitzicht op zee. Bovendien beschikt elke woning over een solarium, een bevoorrechte plek om te zonnebaden of sterren te kijken. De toevoeging van een privézwembad voegt een vleugje luxe toe, waardoor je kunt afkoelen op de warmste dagen.
BINNENRUIMTES
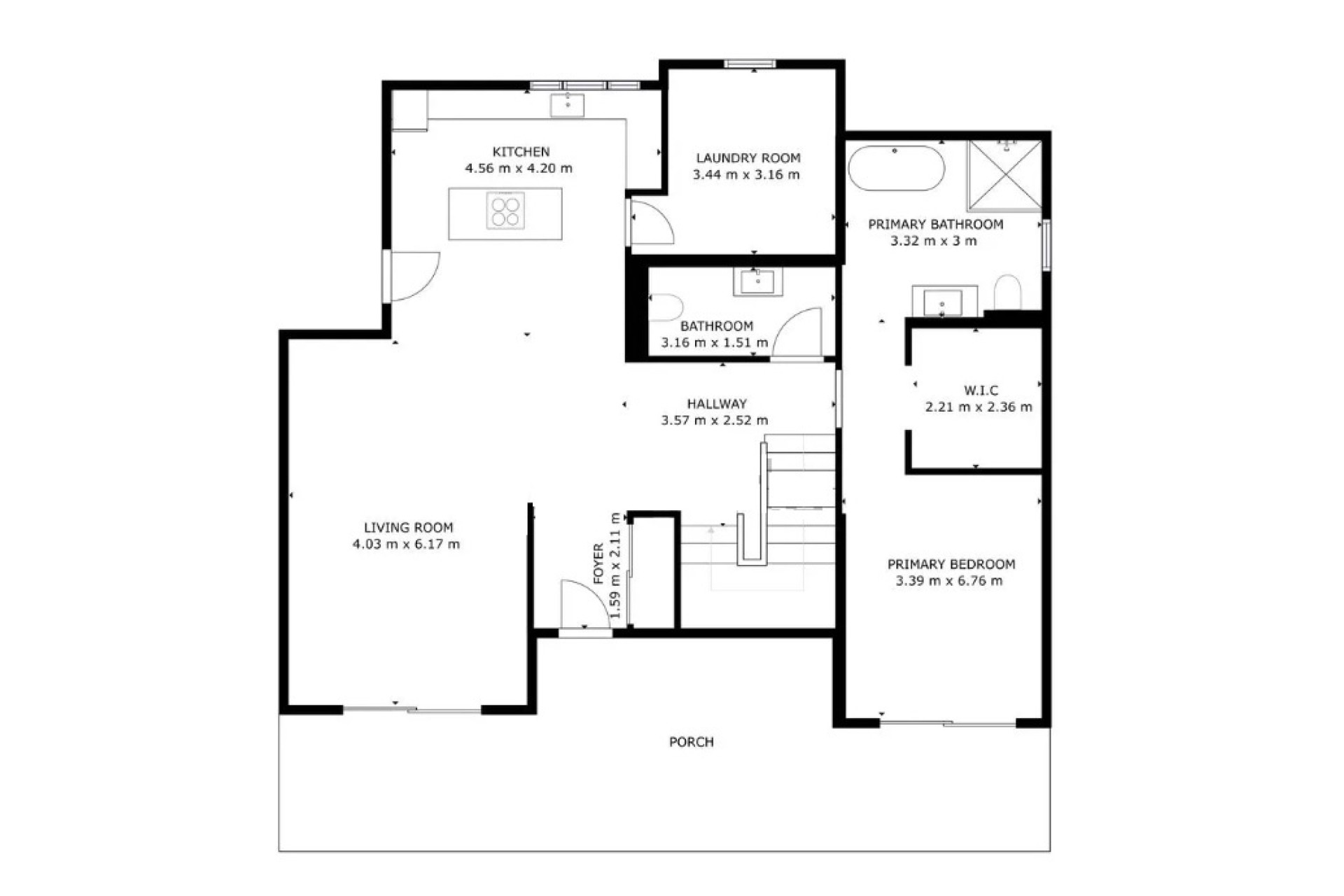
Het interieur van deze onafhankelijke woningen in Torrevieja is ontworpen om maximaal comfort en functionaliteit te bieden. Met een indeling die vijf slaapkamers omvat, zijn deze eigendommen ideaal voor grote gezinnen of voor degenen die extra ruimte voor gasten wensen. De badkamers, die variëren tussen drie en vier afhankelijk van de typologie, zijn uitgerust met vloerverwarming, wat het hele jaar door een warme en uitnodigende sfeer garandeert. De keuken en gemeenschappelijke ruimtes zijn voorzien van porseleinen tegelvloeren, een materiaal dat esthetiek en duurzaamheid combineert. De geïntegreerde airconditioning zorgt voor een aangename temperatuur in elk seizoen. Bovendien bieden de inbouwkasten praktische en elegante opbergoplossingen. De aanwezigheid van een garage biedt comfort en veiligheid voor het parkeren van voertuigen.