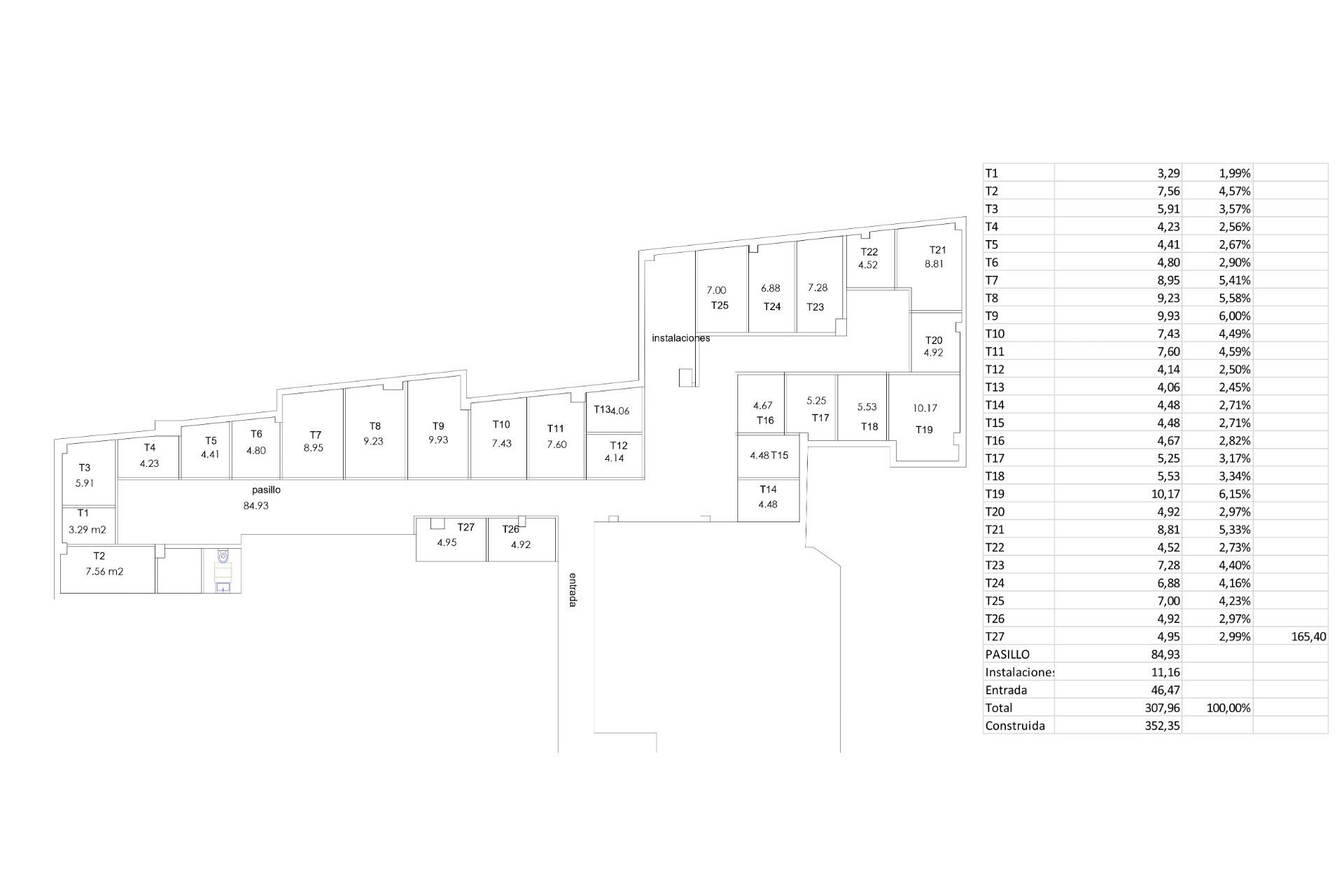
Planet Villa prezentuje promocję nowo wybudowanych komórek lokatorskich zlokalizowanych w drugiej linii Naturalnych Basenów w Torrevieja. ~Ta promocja obejmuje 27 komórek lokatorskich o powierzchni od 3,29 m2 do 10,17 m2. ~Komórki lokatorskie mają własną społeczność, która obejmuje wspólną toaletę dla właścicieli, kamerę monitorującą na korytarzach i przy wejściu do nich. ~Ponadto, dostęp do nich jest przez rampę, aby ułatwić właścicielom transport mebli i innych ciężkich ładunków przez korytarze do komórki lokatorskiej. ~Nie zapominając, że społeczność będzie miała kosze transportowe do przenoszenia swoich rzeczy do komórek lokatorskich. ~~DOSTĘPNOŚĆ: ~~Komórka lokatorska nr 1 o powierzchni 3,29 m2 w cenie 5900 € - zarezerwowana ~Komórka lokatorska nr 2 o powierzchni 7,56 m2 w cenie 11000 € - zarezerwowana ~Komórka lokatorska nr 3 o powierzchni 5,91 m2 w cenie 6.900€ - ZAREZERWOWANE~MAGAZYN NR 4 O POWIERZCHNI 4,23 M2 W CENIE 6.900€ - ZAREZERWOWANE~MAGAZYN NR 5 O POWIERZCHNI 4,41 M2 W CENIE 6.900€ - DOSTĘPNE~MAGAZYN NR 6 O POWIERZCHNI 4,80 M2 W CENIE 6.900€ - ZAREZERWOWANE~MAGAZYN NR 7 O POWIERZCHNI 8,95 M2 W CENIE 13.500€ - DOSTĘPNE~MAGAZYN NR 8 O POWIERZCHNI 9,23 M2 W CENIE 13.500€ - DOSTĘPNE~MAGAZYN NR 9 O POWIERZCHNI 9,93 M2 W CENIE 14.900€ - DOSTĘPNE~MAGAZYN NR 10 O POWIERZCHNI 7,43 M2 W CENIE 10.900€ - DOSTĘPNE~MAGAZYN NR 11 O POWIERZCHNI 7,60 M2 W CENIE 10.900€ - DOSTĘPNE~MAGAZYN NR 12 O POWIERZCHNI 4,14 M2 W CENIE 6.900€ - SPRZEDANE~MAGAZYN NR 13 O POWIERZCHNI 4,06 M2 W CENIE 6.900€ - SPRZEDANE~MAGAZYN NR 14 O POWIERZCHNI 4,48 M2 W CENIE 6.900€ - SPRZEDANE~MAGAZYN NR 15 O POWIERZCHNI 4,48 M2 W CENIE 6.900€ - DOSTĘPNE~MAGAZYN NR 16 O POWIERZCHNI 4,67 M2 W CENIE 6.900€ - DOSTĘPNE~MAGAZYN NR 17 O POWIERZCHNI 5,25 M2 W CENIE 6.900€ - SPRZEDANE~MAGAZYN NR 18 O POWIERZCHNI 5,53 M2 W CENIE 6.900€ - ZAREZERWOWANE~MAGAZYN NR 19 O POWIERZCHNI 10,17 M2 W CENIE 14.900€ - DOSTĘPNE~MAGAZYN NR 20 O POWIERZCHNI 4,92 M2 W CENIE 6.900€ - SPRZEDANE~MAGAZYN NR 21 O POWIERZCHNI 8,81 M2 W CENIE 13.500€ - DOSTĘPNE~MAGAZYN NR 22 O POWIERZCHNI 4,52 M2 W CENIE 6.900€ - DOSTĘPNE~MAGAZYN NR 23 O POWIERZCHNI 7,28 M2 W CENIE 10.900€ - DOSTĘPNE~MAGAZYN NR 24 O POWIERZCHNI 6,88 M2 Z CENA 9.900€ - DOSTĘPNA~POMIESZCZENIE NR 25 O POWIERZCHNI 7.00 M2 W CENIE 9.900€ - DOSTĘPNE~POMIESZCZENIE NR 26 O POWIERZCHNI 4.92 M2 W CENIE 6.900€ - ZAREZERWOWANE~POMIESZCZENIE NR 27 O POWIERZCHNI 4.95 M2 W CENIE 6.900€ - ZAREZERWOWANE~