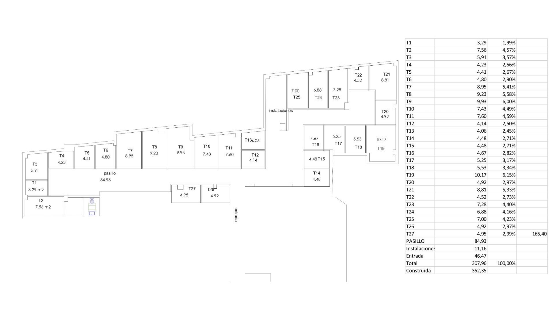
Planet Villa presenta su promoción de trasteros de obra nueva situado en segunda línea de las Piscinas Naturales de Torrevieja.~Esta promoción consta de 27 trasteros desde 3.29m2 hasta 10.17m2.~Los trasteros cuentan con su propia comunidad la cual incluye un aseo comunitario para los propietarios, cámara de vigilancia en los pasillos y entrada a los mismos.~Además de un acceso mediante rampa para facilitar a los propietarios el transporte de mobiliario y demás cargas pesadas por los pasillos hasta el trastero.~Sin olvidarnos de que la comunidad contara con cestas de transporte para cargar sus pertenencias hasta los trasteros.~~DISPONIBILIDAD:~~TRASTERO Nº1 DE 3.29 M2 CON UN PRECIO DE 5.900€ - RESERVADO~TRASTERO Nº2 DE 7.56 M2 CON UN PRECIO DE 11.000€ - RESERVADO ~TRASTERO Nº3 DE 5.91 M2 CON UN PRECIO DE 6.900€ - RESERVADO~TRASTERO Nº4 DE 4.23 M2 CON UN PRECIO DE 6.900€ - RESERVADO~TRASTERO Nº5 DE 4.41 M2 CON UN PRECIO DE 6.900€ - DISPONIBLE~TRASTERO Nº6 DE 4.80 M2 CON UN PRECIO DE 6.900€ - RESERVADO~TRASTERO Nº7 DE 8.95 M2 CON UN PRECIO DE 13.500€ - DISPONIBLE~TRASTERO Nº8 DE 9.23 M2 CON UN PRECIO DE 13.500€ - DISPONIBLE~TRASTERO Nº9 DE 9.93 M2 CON UN PRECIO DE 14.900€ - DISPONIBLE~TRASTERO Nº10 DE 7.43 M2 CON UN PRECIO DE 10.900€ - DISPONIBLE~TRASTERO Nº11 DE 7.60 M2 CON UN PRECIO DE 10.900€ - DISPONIBLE~TRASTERO Nº12 DE 4.14 M2 CON UN PRECIO DE 6.900€ - VENDIDO~TRASTERO Nº13 DE 4.06 M2 CON UN PRECIO DE 6.900€ - VENDIDO~TRASTERO Nº14 DE 4.48 M2 CON UN PRECIO DE 6.900€ - VENDIDO~TRASTERO Nº15 DE 4.48 M2 CON UN PRECIO DE 6.900€ - DISPONIBLE~TRASTERO Nº16 DE 4.67 M2 CON UN PRECIO DE 6.900€ - DISPONIBLE~TRASTERO Nº17 DE 5.25 M2 CON UN PRECIO DE 6.900€ - VENDIDO~TRASTERO Nº18 DE 5.53 M2 CON UN PRECIO DE 6.900€ - RESERVADO~TRASTERO Nº19 DE 10.17 M2 CON UN PRECIO DE 14.900€ - DISPONIBLE~TRASTERO Nº20 DE 4.92 M2 CON UN PRECIO DE 6.900€ - VENDIDO~TRASTERO Nº21 DE 8.81 M2 CON UN PRECIO DE 13.500€ - DISPONIBLE~TRASTERO Nº22 DE 4.52 M2 CON UN PRECIO DE 6.900€ - DISPONIBLE~TRASTERO Nº23 DE 7.28 M2 CON UN PRECIO DE 10.900€ - DISPONIBLE~TRASTERO Nº24 DE 6.88 M2 CON UN PRECIO DE 9.900€ - DISPONIBLE~TRASTERO Nº25 DE 7.00 M2 CON UN PRECIO DE 9.900€ - DISPONIBLE~TRASTERO Nº26 DE 4.92 M2 CON UN PRECIO DE 6.900€ - RESERVADO~TRASTERO Nº27 DE 4.95 M2 CON UN PRECIO DE 6.900€ - RESERVADO~