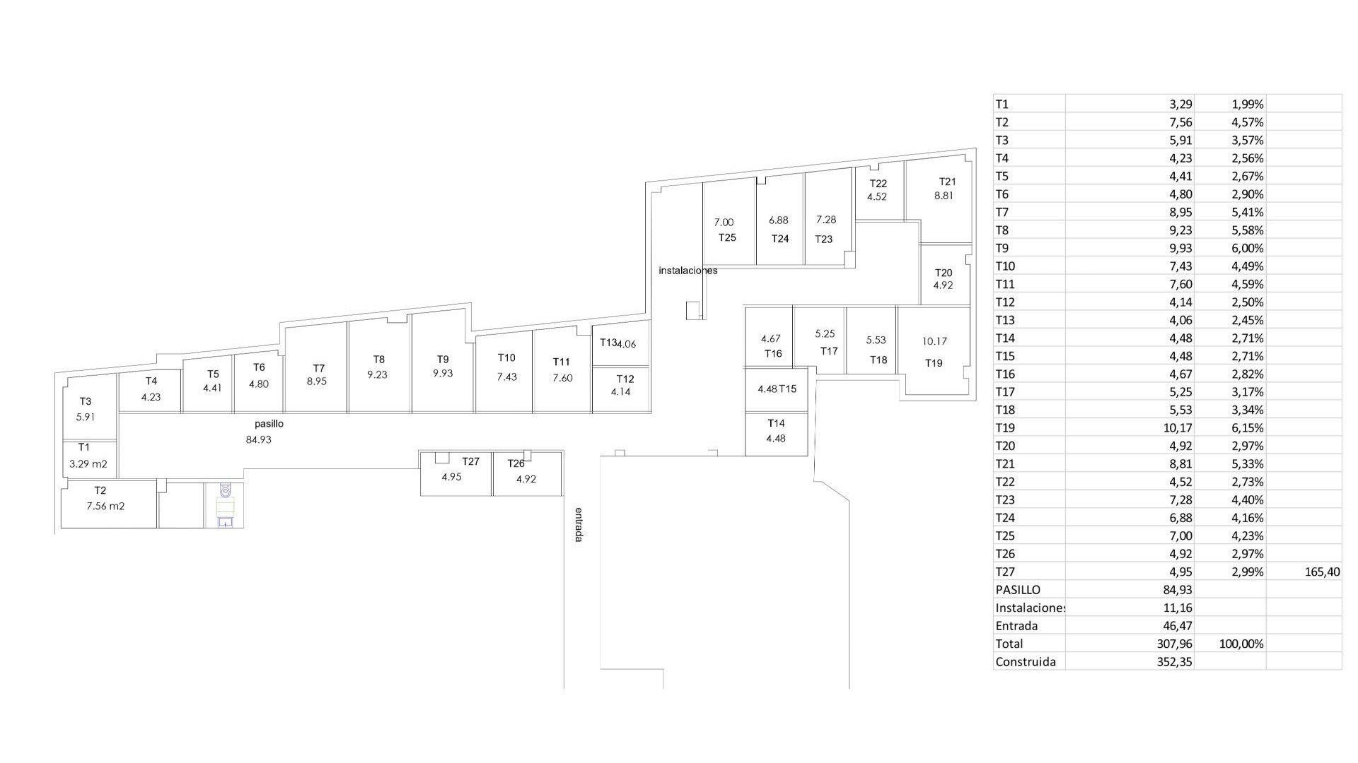
Planet Villa présente sa promotion de débarras neufs situés en deuxième ligne des Piscines Naturelles de Torrevieja.~Cette promotion comprend 27 débarras de 3,29 m² à 10,17 m².~Les débarras disposent de leur propre communauté comprenant des toilettes communes pour les propriétaires, une caméra de surveillance dans les couloirs et une entrée.~De plus, une rampe d'accès permet aux propriétaires de transporter plus facilement les meubles et autres charges lourdes dans les couloirs jusqu'au débarras.~Sans oublier que la communauté disposera de paniers de transport pour transporter leurs effets personnels jusqu'aux débarras.~~DISPONIBILITÉ :~~DÉBARRAS N°1 DE 3,29 M² AU PRIX DE 5 900 € - RÉSERVÉ~DÉBARRAS N°2 DE 7,56 M² AU PRIX DE 11 000 € - RÉSERVÉ~DÉBARRAS N°3 DE 5,91 M² AU PRIX DE 6.900€ - RÉSERVÉ~CHAMBRE DE STOCKAGE Nº4 DE 4,23 M2 AU PRIX DE 6.900€ - RÉSERVÉ~CHAMBRE DE STOCKAGE Nº5 DE 4,41 M2 AU PRIX DE 6.900€ - DISPONIBLE~CHAMBRE DE STOCKAGE Nº6 DE 4,80 M2 AU PRIX DE 6.900€ - RÉSERVÉ~CHAMBRE DE STOCKAGE Nº7 DE 8,95 M2 AU PRIX DE 13.500€ - DISPONIBLE~CHAMBRE DE STOCKAGE Nº8 DE 9,23 M2 AU PRIX DE 13.500€ - DISPONIBLE~CHAMBRE DE STOCKAGE Nº9 DE 9,93 M2 AU PRIX DE 14.900€ - DISPONIBLE~CHAMBRE DE STOCKAGE Nº10 DE 7,43 M2 AU PRIX DE 10.900€ - DISPONIBLE~DÉBARRAS Nº11 DE 7,60 M2 AVEC UN PRIX DE 10.900€ - DISPONIBLE~DÉBARRAS Nº12 DE 4,14 M2 AVEC UN PRIX DE 6.900€ - VENDU~DÉBARRAS Nº13 DE 4,06 M2 AVEC UN PRIX DE 6.900€ - VENDU~DÉBARRAS Nº14 DE 4,48 M2 AVEC UN PRIX DE 6.900€ - VENDU~DÉBARRAS Nº15 DE 4,48 M2 AVEC UN PRIX DE 6.900€ - DISPONIBLE~DÉBARRAS Nº16 DE 4,67 M2 AVEC UN PRIX DE 6.900€ - DISPONIBLE~DÉBARRAS Nº17 DE 5,25 M2 AVEC UN PRIX DE 6.900€ - VENDU~DÉBARRAS Nº18 DE 5,53 M2 AVEC UN PRIX DE 6.900€ - RÉSERVÉ~DÉBARRAS Nº19 DE 10,17 M2 AVEC UN PRIX DE 14.900€ - DISPONIBLE~DÉBARRAS Nº20 DE 4,92 M2 AVEC UN PRIX DE 6.900€ - VENDU~DÉBARRAS Nº21 DE 8,81 M2 AVEC UN PRIX DE 13.500€ - DISPONIBLE~DÉBARRAS Nº22 DE 4,52 M2 AVEC UN PRIX DE 6.900€ - DISPONIBLE~DÉBARRAS Nº23 DE 7,28 M2 AVEC UN PRIX DE 10.900€ - DISPONIBLE~DÉBARRAS Nº24 DE 6,88 M2 AU PRIX DE 9.900€ - DISPONIBLE~DÉBARRAS N°25 DE 7,00 M2 AU PRIX DE 9.900€ - DISPONIBLE~DÉBARRAS N°26 DE 4,92 M2 AU PRIX DE 6.900€ - RÉSERVÉ~DÉBARRAS N°27 DE 4,95 M2 AU PRIX DE 6.900€ - RÉSERVÉ~