Close Close

Lorca. Murcia Detached Villa. New Build

375.000€
#Ref.:RP-11803

Lorca. Murcia Detached Villa. New Build

375.000€

Overview

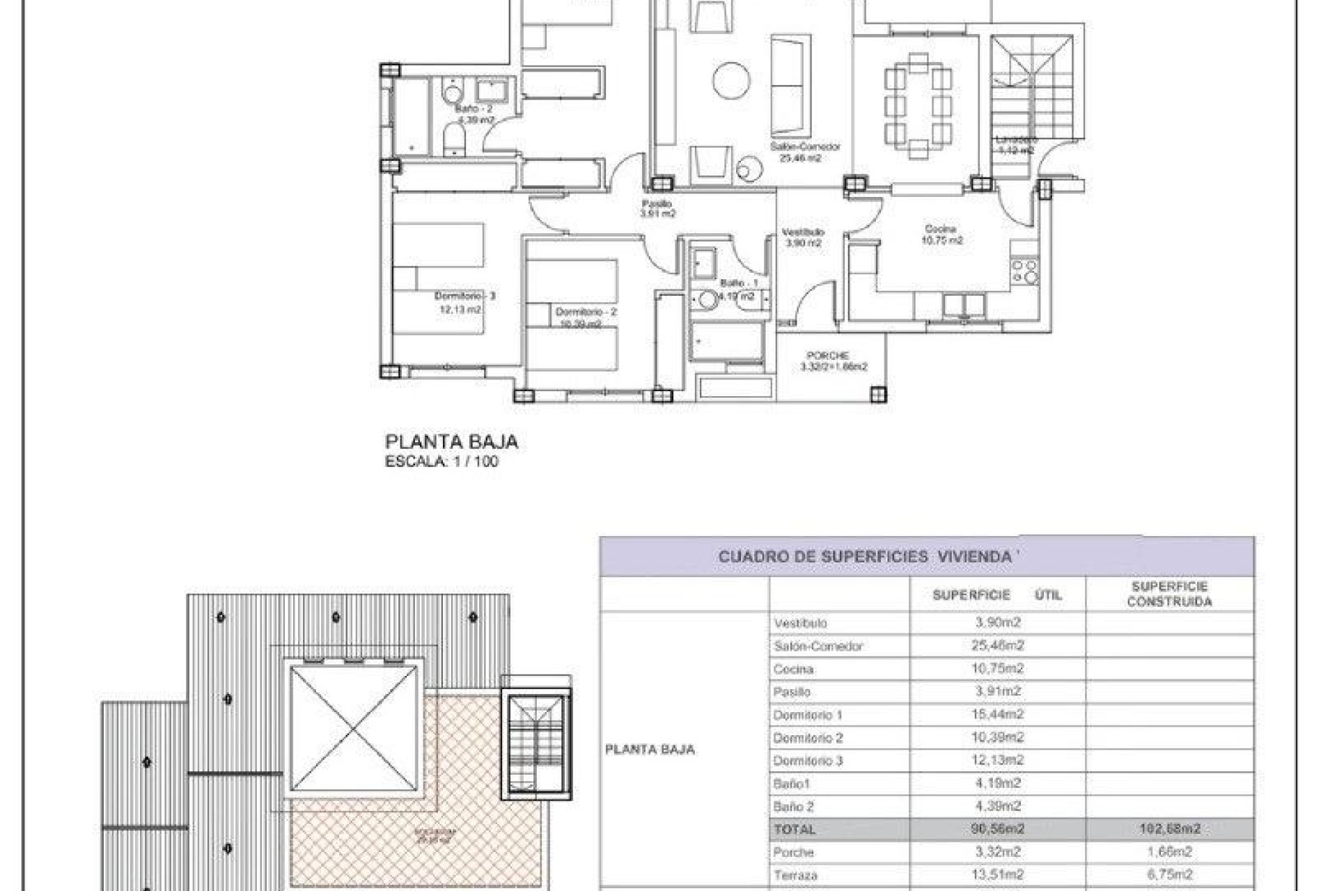
  • Meters. 112m2
  • Plot. 532m2
  • Bed. 3
  • Bath. 2
Bedrooms: 3
Bathrooms: 2
Built: 112m2
Plot: 532m2
Solarium: Yes
Key ready
Gated
Number of Parking Spaces: 1
Air Conditioning: Pre-Installed
Double Bedrooms: 3
Useable Build Space: 100 Msq.
Terrace: 45 Msq.
Location: Rural, Urbanisation
Parking - Space
Beach: 23000 Meters
Garden
Near schools

Description

Lorca. Murcia Detached Villa. New Build

Location


Bel-chic

Make an enquiry

Data Controller: LEDDY HOMES SPAIN SL, Purpose of Processing: Management and control of the services offered through the Real Estate Services website, Sending information via newsletter and others, Legal Basis: By consent, Recipients: Data will not be shared, except for accounting purposes, Rights of Interested Parties: Access, rectify, and delete data, request its portability, object to processing, and request its limitation, Source of Data: The Data Subject, Additional Information: You can consult additional and detailed information on data protection Here.

Search
Contact us