Nowe wille na przestronnych działkach o powierzchni ponad 500 m² w Lorce
Nowe wille w stylu śródziemnomorskim w bezpiecznej i spokojnej dzielnicy mieszkalnej
Odkryj ekskluzywne osiedle niezależnych willi na działkach o powierzchni ponad 500 m², strategicznie zlokalizowanych w południowo-wschodniej Hiszpanii. Domy te oferują idealne połączenie wiejskiego spokoju, bliskości wybrzeża i doskonałych połączeń drogowych z głównymi miastami i lotniskami.
Położona w uprzywilejowanej okolicy na wybrzeżu Costa Cálida, inwestycja ta korzysta z całorocznego nasłonecznienia, co czyni ją idealną lokalizacją do cieszenia się śródziemnomorskim stylem życia.
Przestronne, jasne domy z prywatnymi ogrodami
Zaprojektowane z myślą o maksymalnym komforcie i relaksie, wille te posiadają otwarte przestrzenie mieszkalne z dużymi oknami, płynnie łączące przestrzenie wewnętrzne i zewnętrzne. Duży prywatny ogród oferuje idealne warunki do wypoczynku na świeżym powietrzu, z możliwością dodania basenu i dostosowania krajobrazu.
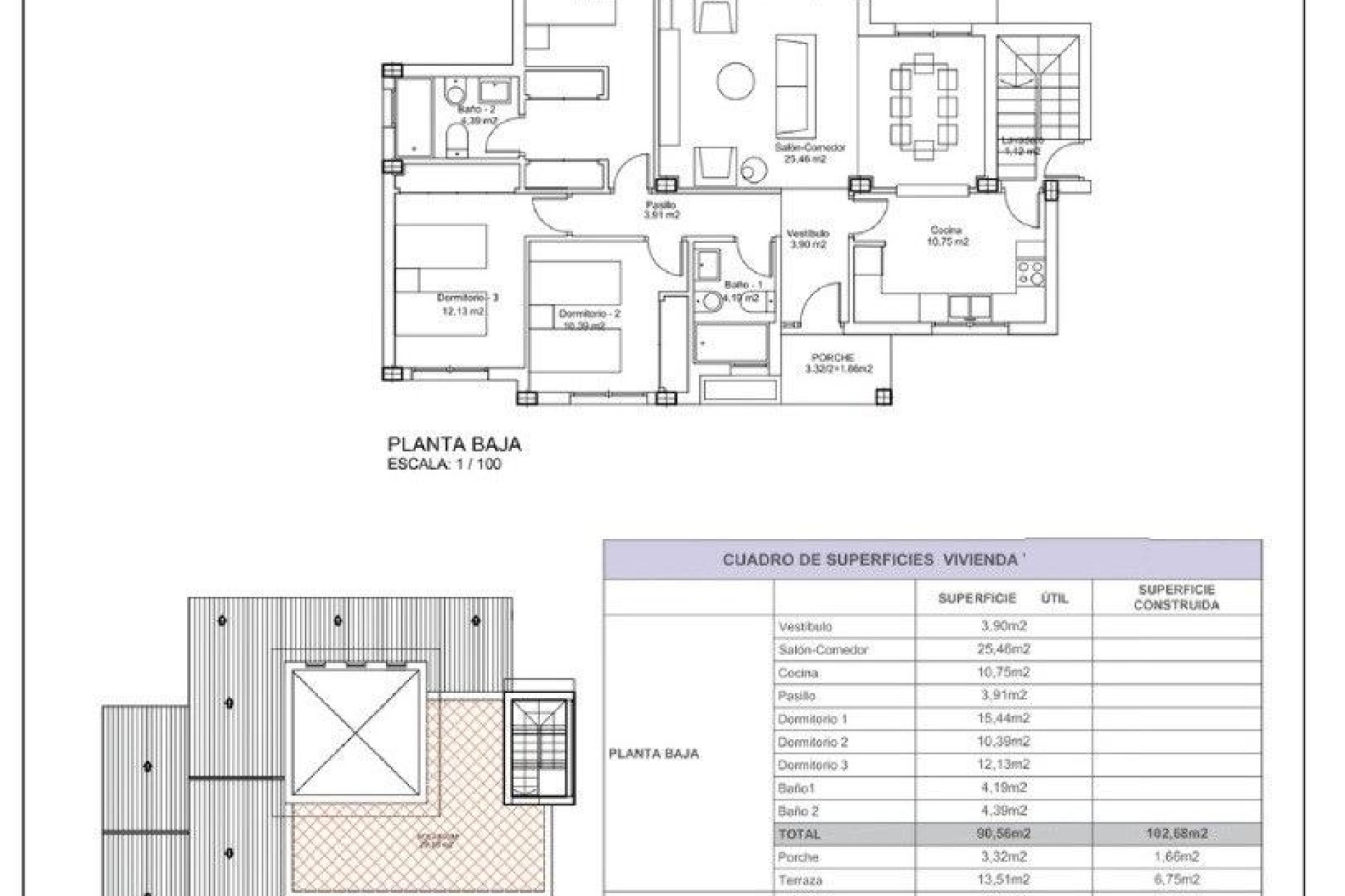
Do wyboru są trzy modele willi, dostępne w układzie jedno- lub dwupiętrowym, z 3 lub 4 sypialniami i 2 lub 3 łazienkami. Każdy dom posiada prywatne solarium, dzięki czemu mieszkańcy mogą w pełni korzystać z pięknego otoczenia.
Bezpieczna i dobrze wyposażona społeczność
Ta zamknięta urbanizacja oferuje całodobową ochronę z kontrolowanym dostępem, zapewniając spokój wszystkim mieszkańcom. Zaprojektowany z myślą o zielonym życiu, społeczność obejmuje:
Dwa duże parki krajobrazowe do relaksu i aktywności rodzinnych.
Dedykowane tereny sportowe i place zabaw promujące aktywny tryb życia.
Zadrzewione ulice i 3,5-kilometrowa ścieżka rowerowa biegnąca wzdłuż obwodu urbanizacji.
Strefa handlowa przy wejściu, w której znajdzie się restauracja, supermarket, stacja benzynowa i inne niezbędne usługi.
Wysokiej jakości wykończenia dla maksymalnego komfortu
Każda willa jest zbudowana z najwyższej jakości materiałów i nowoczesnych instalacji, w tym
wstępną instalację klimatyzacji kanałowej
Wstępna instalacja gazu ziemnego
Bezpieczne drzwi wejściowe
Okna Climalit z podwójnymi szybami
W pełni ogrodzony teren z 24-godzinnym monitoringiem
Doskonała lokalizacja - blisko wybrzeża i udogodnień miejskich
Położone w nowo zagospodarowanym obszarze gminy Lorca, wille te oferują naturalne i spokojne otoczenie przy jednoczesnym zachowaniu łatwego dostępu do kluczowych lokalizacji:
Centrum miasta Lorca - 10 km
Plaże Águilas - 20 km
Lotnisko Murcja-Corvera - 70 km
Lotnisko Alicante - 130 km
Centra handlowe i restauracje - 10 km
Znajdź swój idealny dom na Costa Cálida
Z 50 domami już ukończonymi i łącznie 320 planowanymi, jest to okazja, aby zabezpieczyć nową willę w stylu śródziemnomorskim w kwitnącej nowej społeczności. Niezależnie od tego, czy chodzi o stałe miejsce zamieszkania, dom wakacyjny czy inwestycję, nieruchomości te oferują doskonałą wartość w doskonałej lokalizacji.
Skontaktuj się z nami już dziś, aby dowiedzieć się więcej i umówić się na wizytę!