Close Close

Orihuela Costa. Alicante Apartment Flat. Sale

325.000€
#Ref.:ON184

Orihuela Costa. Alicante Apartment Flat. Sale

325.000€

Overview

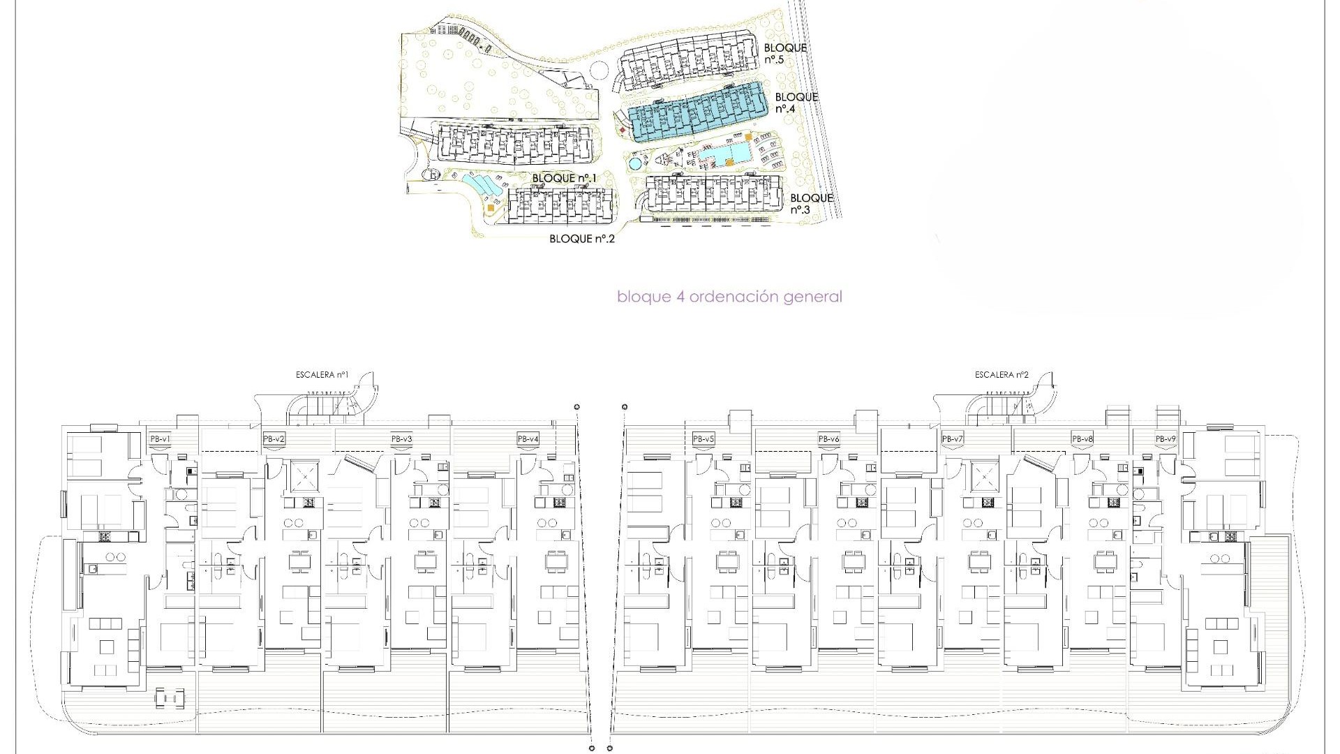
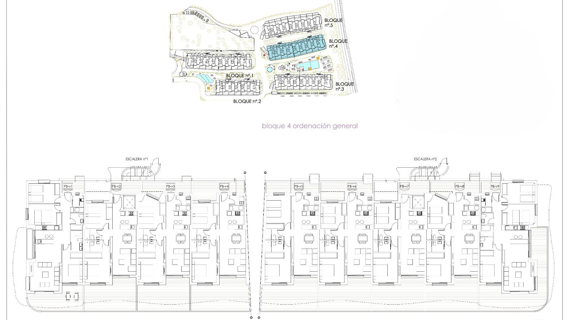
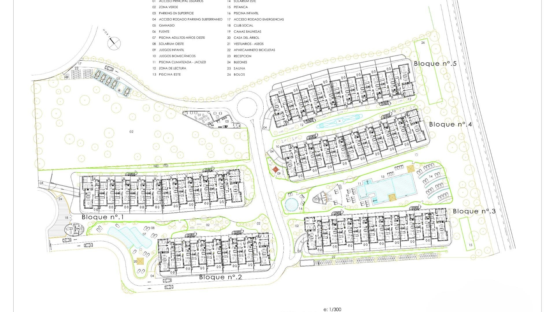
  • Meters. 74m2
  • Bed. 2
  • Bath. 2
  • Parking. Private
Year of construction: 2025
Bedrooms: 2
Bathrooms: 2
Built: 74m2
Balcony: 19m2
Parking: Private
Floor: 0
Distance to beach: 500 Mts.
Arboles
TV
Costa
Autobuses
Zonas infantiles
Hospitales
Luminoso
Preinstalación aire acondicionado
Balcon
Vistas Al mar
Golf
Amueblado
Trastero
Terraza
Galería
Urbanización
Armarios empotrados
Luz
Centros comerciales
Colegios

Description

Magnificent brand new 2, 3 and 4 bedroom apartments in Playa Flamenca!!!

Location


Bel-chic

Make an enquiry

Data Controller: LEDDY HOMES SPAIN SL, Purpose of Processing: Management and control of the services offered through the Real Estate Services website, Sending information via newsletter and others, Legal Basis: By consent, Recipients: Data will not be shared, except for accounting purposes, Rights of Interested Parties: Access, rectify, and delete data, request its portability, object to processing, and request its limitation, Source of Data: The Data Subject, Additional Information: You can consult additional and detailed information on data protection Here.

Search
Contact us