Zamknij Zamknij

Orihuela Costa. Alicante Apartament / Mieszkanie. Sprzedaż

325.000€
#Ref.:ON184

Orihuela Costa. Alicante Apartament / Mieszkanie. Sprzedaż

325.000€

Przegląd

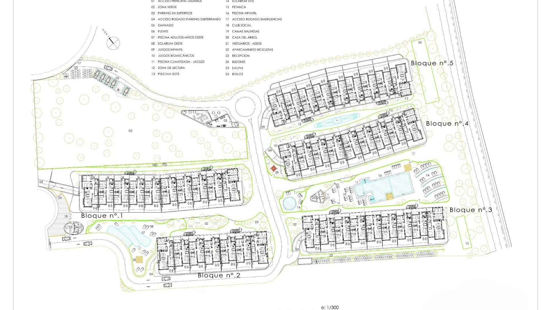
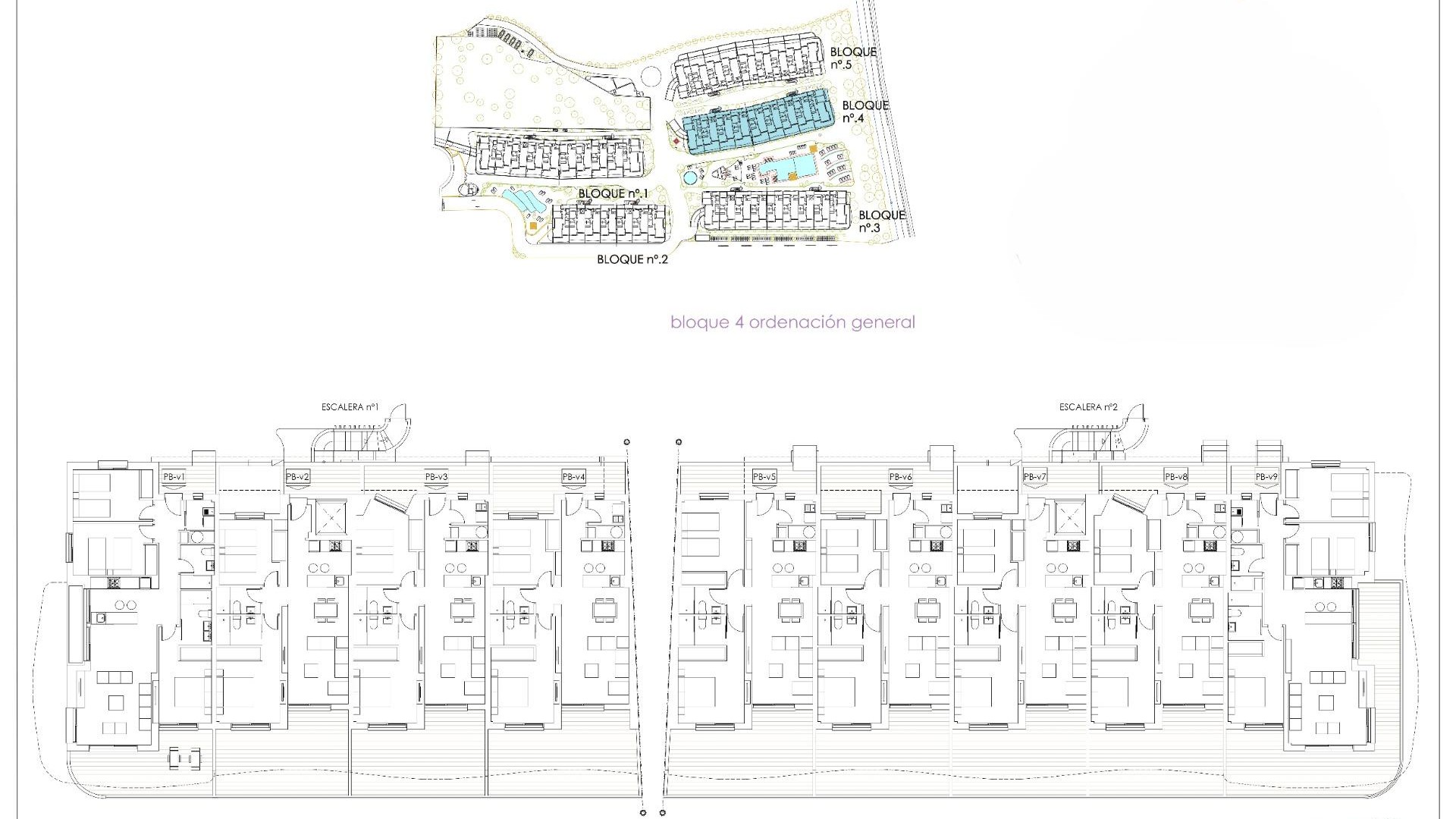
  • Metry. 74m2
  • Sypialnia. 2
  • Łazienka. 2
  • Garaż. Prywatny
Rok budowy: 2025
Sypialnie: 2
Łazienki: 2
Powierzchnia: 74m2
Balkon: 19m2
Garaż: Prywatny
Piętro: 0
Odległość od plaży: 500 Mts.
Balcon
Vistas Al mar
Golf
Amueblado
Trastero
Terraza
Galería
Urbanización
Armarios empotrados
Luz
Centros comerciales
Colegios
Arboles
TV
Costa
Autobuses
Zonas infantiles
Hospitales
Luminoso
Preinstalación aire acondicionado

Lokalizacja


Bel-chic

Wyślij zapytanie

Administrator danych: LEDDY HOMES SPAIN SL, Cel przetwarzania danych: Zarządzanie i kontrola usług oferowanych za pośrednictwem strony internetowej Usług Nieruchomości, Wysyłanie informacji za pośrednictwem newslettera i innych, Podstawa prawna: Na podstawie zgody, Odbiorcy: Dane nie będą udostępniane, z wyjątkiem celów księgowych, Prawa osób, których dane dotyczą: Dostęp, poprawianie i usuwanie danych, żądanie ich przenoszenia, sprzeciw wobec przetwarzania i żądanie jego ograniczenia, Źródło danych: Osoba, której dane dotyczą, Dodatkowe informacje: Dodatkowe i szczegółowe informacje na temat ochrony danych można znaleźć Tutaj.

Szukaj
Kontakt