Schließen Schließen

Torrevieja. Alicante Wohnung / Appartement. New Build

299.000€
#Ref:RP-20365

Torrevieja. Alicante Wohnung / Appartement. New Build

299.000€

Übersicht

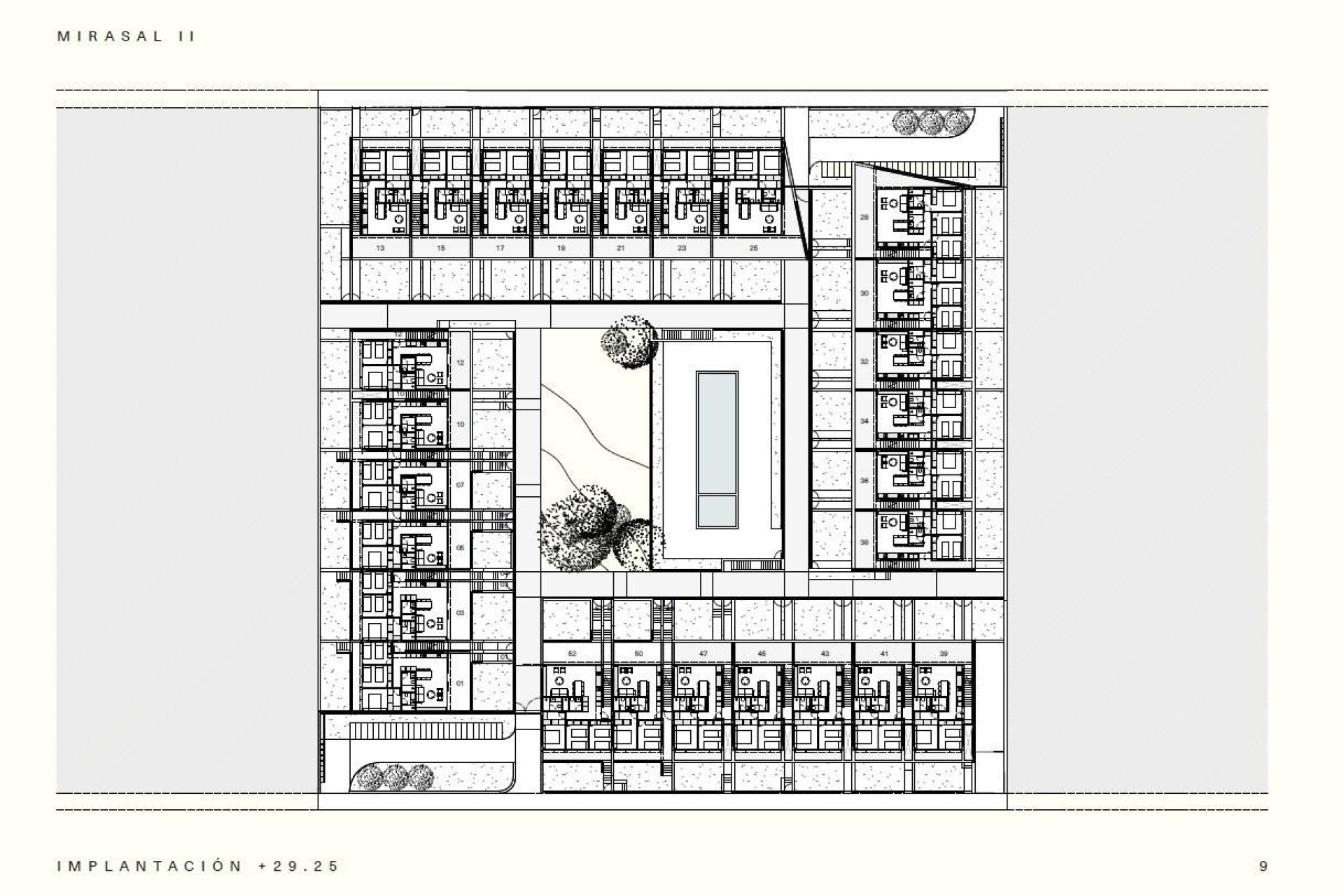
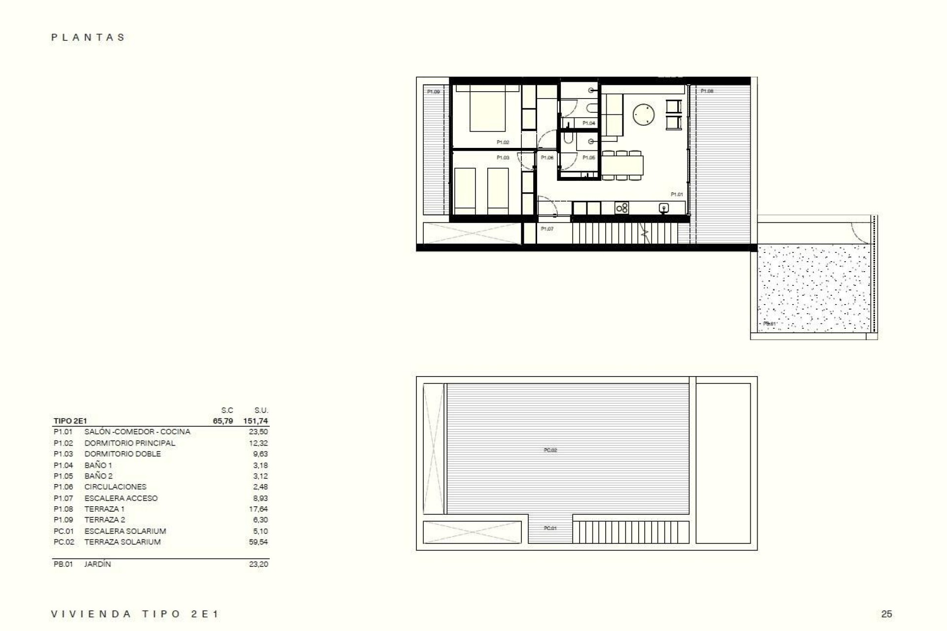
  • Meter. 65m2
  • Grundstück. 23m2
  • Schlafzimmer. 2
  • Badezimmer. 2
  • Schwimmbad. Ja
Schlafzimmer: 2
Badezimmer: 2
Gebaute Fläche: 65m2
Grundstück: 23m2
Schwimmbad: Ja
Near schools
Solarium: Yes
Gated
Number of Parking Spaces: 1
Air Conditioning: Pre-Installed
Near Commercial Center
Useable Build Space: 60 Msq.
Double Bedrooms: 2
Location: Coastal, Urbanisation
Terrace: 82 Msq.
Beach: 3500 Meters
Parking - Space
Lagerung / Trastero
Garden
communal pool

Beschreibung

Torrevieja. Alicante Wohnung / Appartement. New Build

Stadt


Bel-chic

Anfrage senden

Verantwortlicher: LEDDY HOMES SPAIN SL, Zweck der Verarbeitung: Verwaltung und Kontrolle der über die Immobilien-Service-Website angebotenen Dienste, Versand von Informationen über Newsletter und andere, Rechtsgrundlage: Durch Zustimmung, Empfänger: Daten werden nicht weitergegeben, außer zu Buchhaltungszwecken, Rechte der betroffenen Personen: Zugriff, Berichtigung und Löschung der Daten, Antrag auf Übertragbarkeit, Widerspruch gegen die Verarbeitung und Beantragung einer Einschränkung, Quelle der Daten: Die betroffene Person, Zusätzliche Informationen: Zusätzliche und detaillierte Informationen zum Datenschutz finden Sie Hier.

Suchen
Kontaktiere uns