Close Close

Torrevieja. Alicante Apartment Flat. New Build

299.000€
#Ref.:RP-20365

Torrevieja. Alicante Apartment Flat. New Build

299.000€

Overview

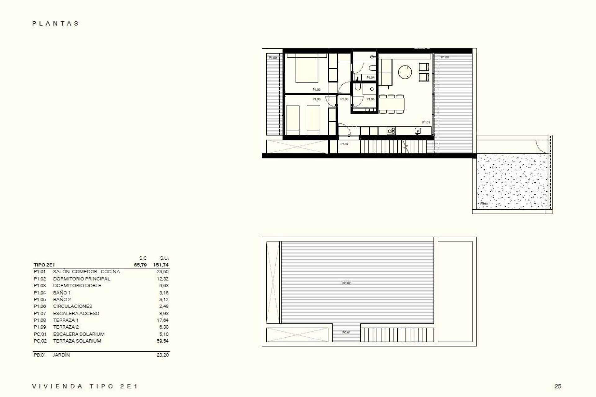
  • Meters. 65m2
  • Plot. 23m2
  • Bed. 2
  • Bath. 2
  • Pool. Yes
Bedrooms: 2
Bathrooms: 2
Built: 65m2
Plot: 23m2
Pool: Yes
Garden
communal pool
Near schools
Solarium: Yes
Gated
Number of Parking Spaces: 1
Air Conditioning: Pre-Installed
Near Commercial Center
Useable Build Space: 60 Msq.
Double Bedrooms: 2
Location: Coastal, Urbanisation
Terrace: 82 Msq.
Beach: 3500 Meters
Parking - Space
Storage / Trastero

Description

Torrevieja. Alicante Apartment Flat. New Build

Location


Bel-chic

Make an enquiry

Data Controller: LEDDY HOMES SPAIN SL, Purpose of Processing: Management and control of the services offered through the Real Estate Services website, Sending information via newsletter and others, Legal Basis: By consent, Recipients: Data will not be shared, except for accounting purposes, Rights of Interested Parties: Access, rectify, and delete data, request its portability, object to processing, and request its limitation, Source of Data: The Data Subject, Additional Information: You can consult additional and detailed information on data protection Here.

Search
Contact us