Nowo wybudowane kamienice i narożne kamienice w Pilar de la Horadada
Współczesne życie w sercu Costa Blanca
Witamy w tej ekskluzywnej nowej inwestycji składającej się z 12 nowoczesnych kamienic i narożnych kamienic, położonych w tętniącym życiem nadmorskim mieście Pilar de la Horadada, na południowym krańcu Costa Blanca. Ta doskonała lokalizacja oferuje idealną równowagę między śródziemnomorskim stylem życia a wygodą, ze wszystkimi codziennymi usługami, sklepami, barami i restauracjami w odległości spaceru. Złote plaże Torre de la Horadada i Mil Palmeras oddalone są o zaledwie 3 km, idealne do plażowania, uprawiania sportów wodnych i długich spacerów wzdłuż promenady.
Wszechstronne typy nieruchomości dopasowane do Twojego stylu życia
Inwestycja obejmuje kilka układów domów zaprojektowanych z myślą o komforcie i funkcjonalności:
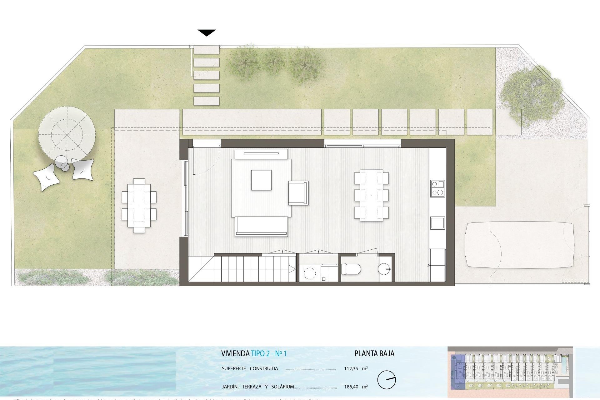
Kamienice z 2 lub 3 sypialniami, każda z 2 łazienkami i 1 toaletą dla gości
Prywatne ogrody z przodu i z tyłu
Prywatny parking na terenie działki
Taras na pierwszym piętrze i prywatne solarium na dachu z otwartym widokiem
Jednostki narożne dostępne z większymi działkami dla dodatkowej przestrzeni zewnętrznej
Wszystkie nieruchomości mają jasne i otwarte przestrzenie mieszkalne, w pełni wyposażone kuchnie z górnymi i dolnymi szafkami oraz nowoczesne wykończenia.
Doskonała lokalizacja z doskonałą dostępnością
Pilar de la Horadada jest dobrze skomunikowana z kluczowymi lokalizacjami na całym wybrzeżu Costa Blanca i Costa Cálida, dzięki czemu idealnie nadaje się do stałego zamieszkania, wakacji lub inwestycji w wynajem. Główne atrakcje w pobliżu obejmują:
Plaże Torre de la Horadada i Mil Palmeras - 3 km
Pole golfowe Lo Romero - 6 km
Lotnisko Corvera (Murcja) - 40 km
Międzynarodowe lotnisko w Alicante - 55 km
Centrum handlowe Zenia Boulevard - 14 km
Przystań San Pedro del Pinatar - 11 km
Oprócz nadmorskiego uroku, Pilar de la Horadada oferuje szeroką gamę zajęć rekreacyjnych, w tym trasy rowerowe, szlaki turystyczne i różnorodne obiekty sportowe.
Twój idealny dom pod słońcem
Niezależnie od tego, czy szukasz wakacyjnej ucieczki, pełnoetatowej rezydencji, czy inteligentnej inwestycji w wynajem, te nowo wybudowane kamienice w Pilar de la Horadada zapewniają wyjątkową wartość w jednym z najbardziej pożądanych nadmorskich miast w regionie. Skontaktuj się z nami już dziś, aby uzyskać więcej informacji lub umówić się na wizytę.