Maisons mitoyennes et maisons mitoyennes d'angle neuves à Pilar de la Horadada
Une vie contemporaine au cœur de la Costa Blanca
Bienvenue dans ce nouveau programme exclusif de 12 maisons mitoyennes et maisons mitoyennes d'angle modernes, situé dans la ville côtière animée de Pilar de la Horadada, à la pointe sud de la Costa Blanca. Cet emplacement privilégié offre un équilibre parfait entre le style de vie méditerranéen et la commodité, avec tous les services quotidiens, les magasins, les bars et les restaurants à quelques pas. Les plages dorées de Torre de la Horadada et Mil Palmeras sont à seulement 3 km, idéales pour les journées à la plage, les sports nautiques et les longues promenades le long de la promenade.
Des types de propriétés polyvalentes adaptées à votre style de vie
Le projet comprend plusieurs configurations de maisons conçues pour le confort et la fonctionnalité :
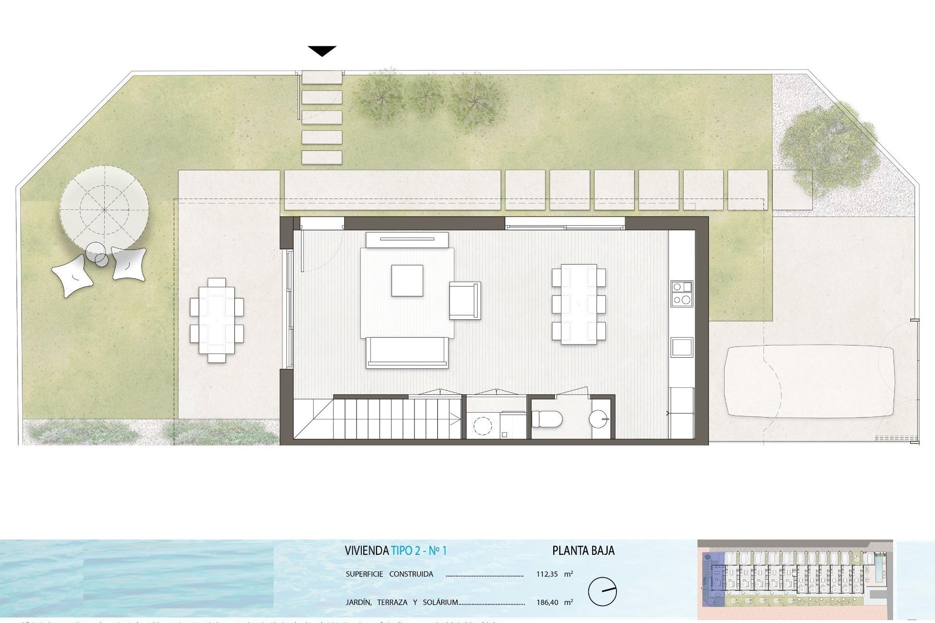
Maisons mitoyennes de 2 ou 3 chambres, chacune avec 2 salles de bains et 1 toilette pour invités
Jardins privés à l'avant et à l'arrière
Parking privé sur le terrain
Terrasse au premier étage et solarium privé sur le toit avec vue dégagée
Unités d'angle disponibles avec des terrains plus grands pour plus d'espace extérieur
Toutes les propriétés disposent d'espaces de vie lumineux et ouverts, de cuisines entièrement équipées avec des armoires supérieures et inférieures, et de finitions modernes dans toute la maison.
Emplacement privilégié avec une excellente accessibilité
Pilar de la Horadada est bien reliée aux principaux sites de la Costa Blanca et de la Costa Cálida, ce qui en fait un lieu idéal pour y vivre à l'année, passer ses vacances ou investir dans l'immobilier locatif. Les principaux points d'intérêt à proximité sont les suivants :
Plages de Torre de la Horadada et Mil Palmeras – 3 km
Parcours de golf Lo Romero – 6 km
Aéroport de Corvera (Murcie) – 40 km
Aéroport international d'Alicante – 55 km
Centre commercial Zenia Boulevard - 14 km
Marina de San Pedro del Pinatar - 11 km
En plus de son charme côtier, Pilar de la Horadada offre un large éventail d'activités de loisirs, notamment des pistes cyclables, des sentiers de randonnée et diverses installations sportives.
Votre maison idéale sous le soleil
Que vous recherchiez une résidence secondaire, une résidence principale ou un investissement locatif intelligent, ces maisons mitoyennes neuves à Pilar de la Horadada offrent un rapport qualité-prix exceptionnel dans l'une des villes côtières les plus prisées de la région. Contactez-nous dès aujourd'hui pour obtenir plus d'informations ou pour planifier une visite.