VILLAS NEUVES A MONFORTE DEL CID
Villas neuves à Monforte del Cid, avec le terrain de golf à seulement 3 minutes de la maison et juste à côté des villes d'Alicante et d'Elche, où vous trouverez un large éventail de culture, de gastronomie, de divertissement et bien sûr de la côte.
Les plages de sable doré de la Méditerranée à un pas de votre nouvelle maison, un espace où vous pouvez profiter des jours de soleil et de mer à tout moment.
Les villas sont situées à 3 minutes du centre sportif du terrain de golf Alenda Golf, ce qui en fait l'endroit idéal pour profiter de la paix d'une urbanisation tranquille tout en ayant tous les services à proximité de la maison (à seulement 12 minutes de l'aéroport d'Alicante-Elche). L'urbanisation est une communauté qui réunit le meilleur de la vie moderne et la tranquillité de l'environnement naturel (pas de frais de communauté).
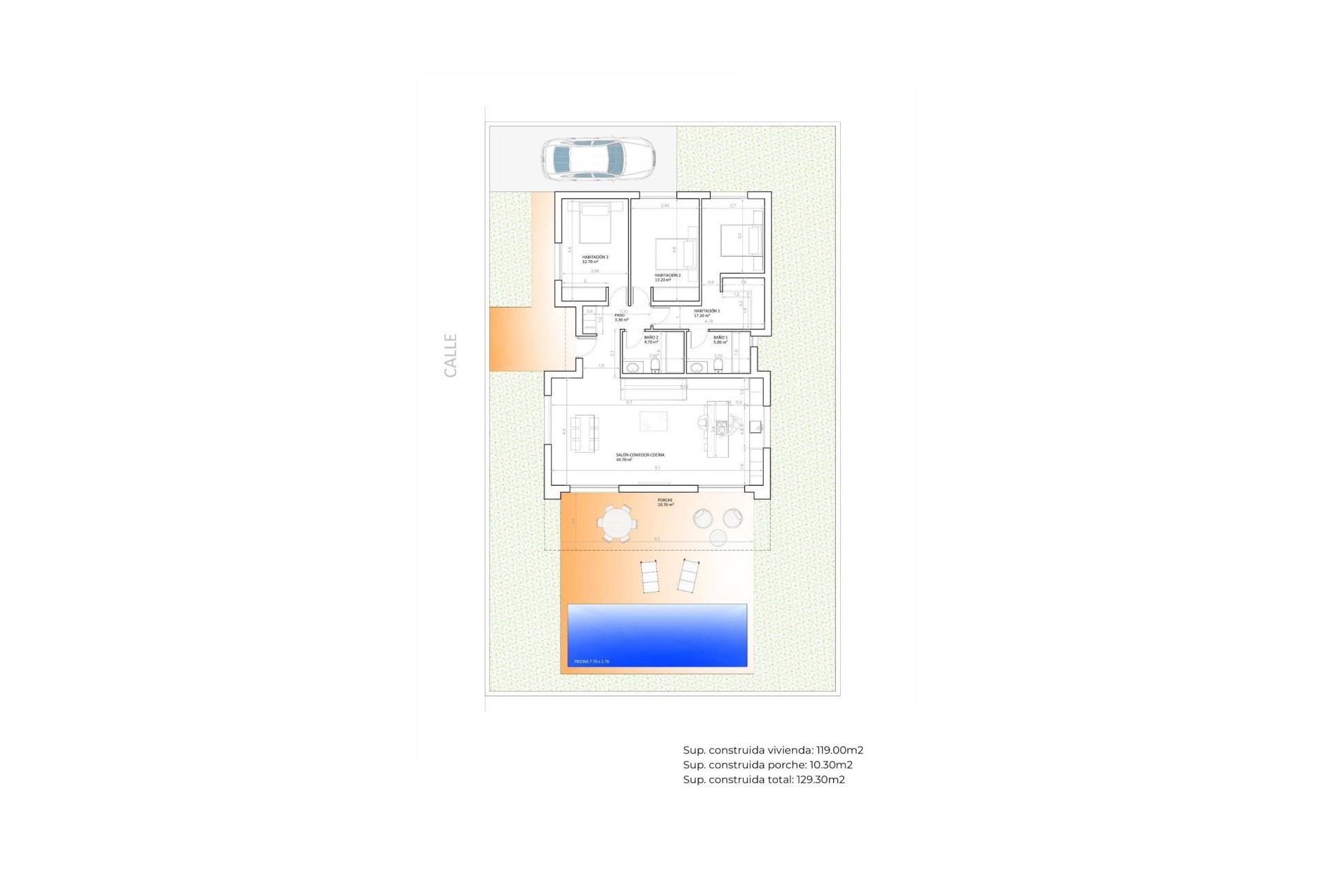
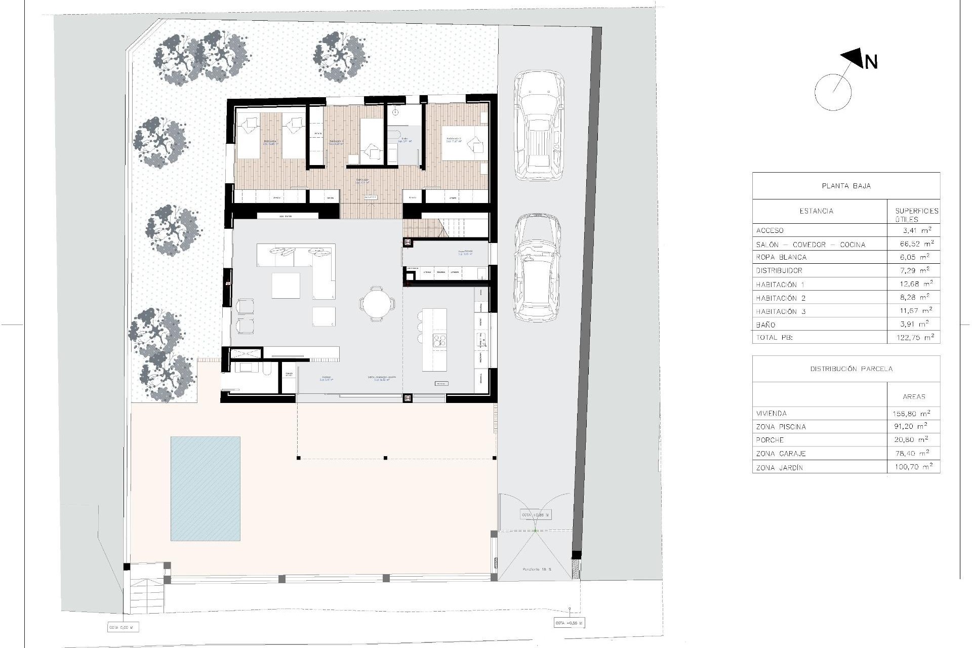
Découvrez l'élégance et le confort de cette belle villa indépendante de 108m2 ou 128m2 (possibilité de deux tailles de maison), conçue pour vous offrir un style de vie exceptionnel, le tout au rez-de-chaussée.
Située dans la prestigieuse Urbanisation, cette propriété vous offre une expérience de vie unique et de qualité. Sur des parcelles à partir de 618m2, vous disposez d'un vaste espace pour profiter à la fois de l'intérieur et de l'extérieur.
Profitez de l'intimité offerte par cette villa indépendante, où vous pourrez vous détendre dans votre propre jardin, créer une oasis de tranquillité, ou même ajouter une piscine pour profiter des chaudes journées d'été.
La maison est répartie en deux grandes zones :
La partie jour : On y trouve un grand salon-salle à manger avec une cuisine ouverte de type bureau (meubles de cuisine inclus) qui communique avec le grand porche moderne par ses deux grandes fenêtres, donnant accès à la zone de jardin extérieure et pourquoi pas... à la piscine. La lumière inonde chaque coin grâce aux grandes fenêtres du salon, qui s'ouvrent sur le porche, un espace moderne et fonctionnel qui vous invite à profiter pleinement de l'extérieur. Imaginez passer des après-midi en famille ou entre amis, dans un environnement serein et naturel. Comme espace supplémentaire, il dispose d'un
espace buanderie stratégiquement placé dans la distribution de la maison où il sera très facilement accessible depuis n'importe quel point de la maison.
Zone de nuit ou de repos : Dans cette zone se trouvent 3 chambres à coucher. La chambre principale dispose d'un grand dressing et d'une salle de bain attenante. En outre, une deuxième salle de bains dessert les autres chambres et le logement.
Ici, vous ne trouverez pas seulement une communauté résidentielle, mais un lieu où la nature et l'élégance s'entremêlent pour vous offrir un style de vie inégalé. Que ce soit pour établir votre résidence permanente, pour profiter d'une maison de vacances ou si vous voulez investir dans votre avenir, cette villa est parfaite pour vous.
Urbanisation privée proche des principales villes de la province d'Alicante, à 15 minutes en voiture d'Elche et d'Alicante, ainsi que de l'aéroport et des meilleures plages.
Le développement est situé dans un cadre paisible à proximité du terrain de golf Alenda à Monforte del Cid.