Cerrar Cerrar

Monforte del Cid. Alicante Chalet Independiente. Obra Nueva

505.900€
#Ref.:RP-63033

Monforte del Cid. Alicante Chalet Independiente. Obra Nueva

505.900€

Resumen

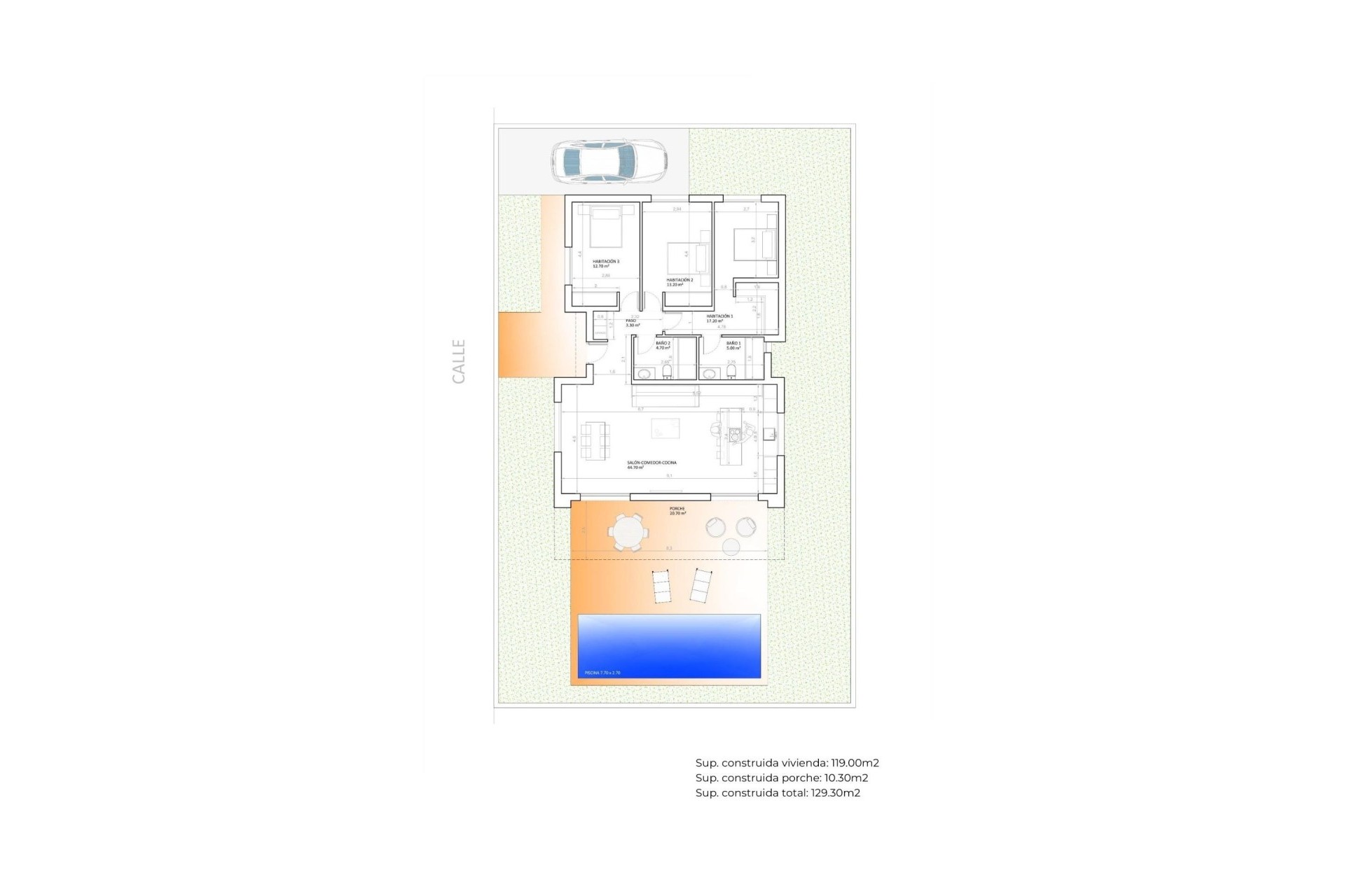
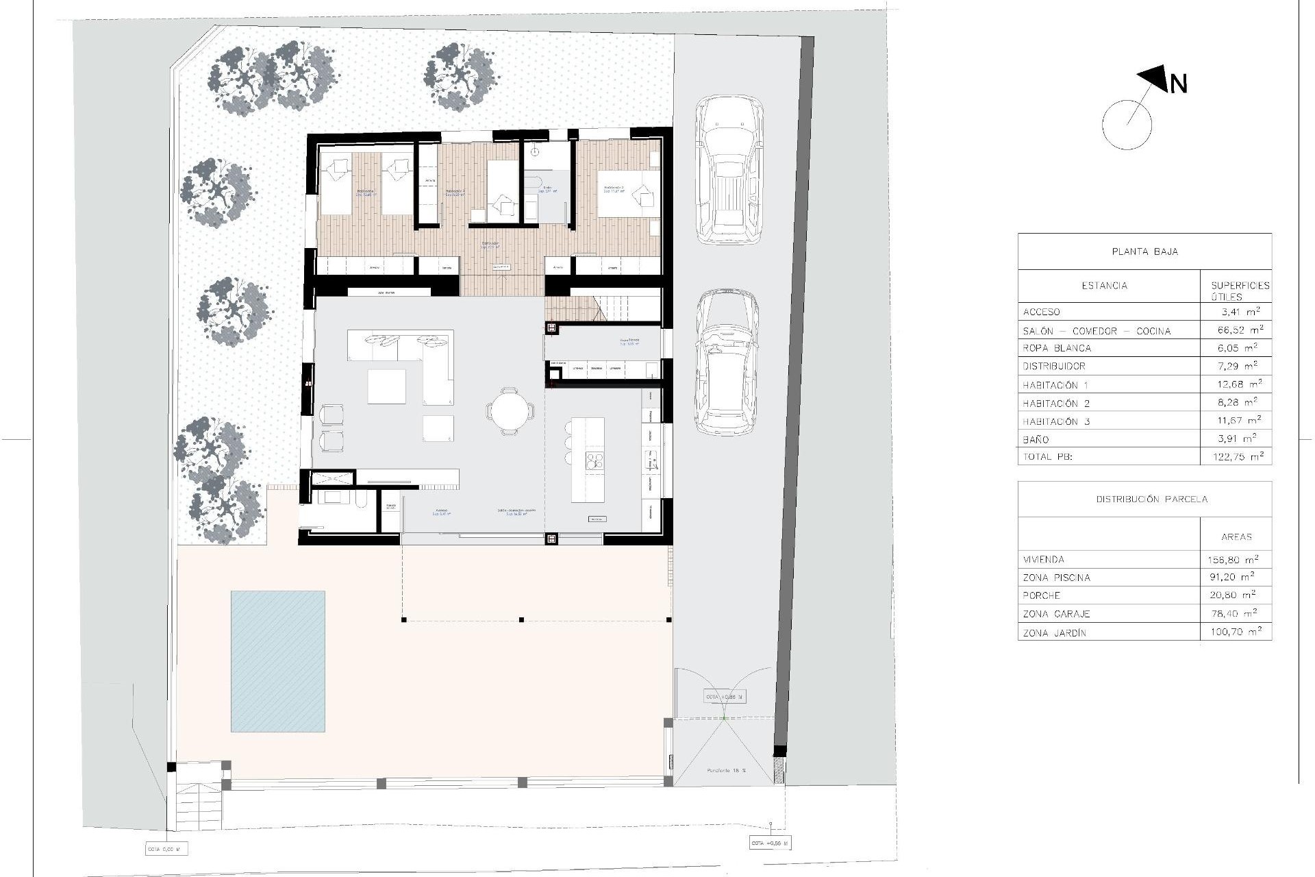
  • Metros. 129m2
  • Parcela. 603m2
  • Habitación. 3
  • Baño. 2
  • Piscina.
Habitaciones: 3
Baños: 2
Construidos: 129m2
Parcela: 603m2
Piscina:
Garden
private pool
Gated
Air Conditioning: Pre-Installed
Double Bedrooms: 3
Near Commercial Center
Useable Build Space: 105 Msq.
Beach: 20000 Meters
Number of Parking Spaces: 2
Terrace: 20 Msq.
Location: Rural
Parking - Space

Descripción

Monforte del Cid. Alicante Chalet Independiente. Obra Nueva

Localización


Bel-chic

Realizar una consulta

Responsable del tratamiento: LEDDY HOMES SPAIN SL, Finalidad del tratamiento: Gestión y control de los servicios ofrecidos a través de la página Web de Servicios inmobiliarios, Envío de información a traves de newsletter y otros, Legitimación: Por consentimiento, Destinatarios: No se cederan los datos, salvo para elaborar contabilidad, Derechos de las personas interesadas: Acceder, rectificar y suprimir los datos, solicitar la portabilidad de los mismos, oponerse altratamiento y solicitar la limitación de éste, Procedencia de los datos: El Propio interesado, Información Adicional: Puede consultarse la información adicional y detallada sobre protección de datos Aquí.

Buscar
Contacte con Nosotros