Fermer Fermer

Aspe. Alicante Villa Individuelle. Nouvelle construction

614.000€
#Réf.:RP-88918

Aspe. Alicante Villa Individuelle. Nouvelle construction

614.000€

Vue d'ensemble

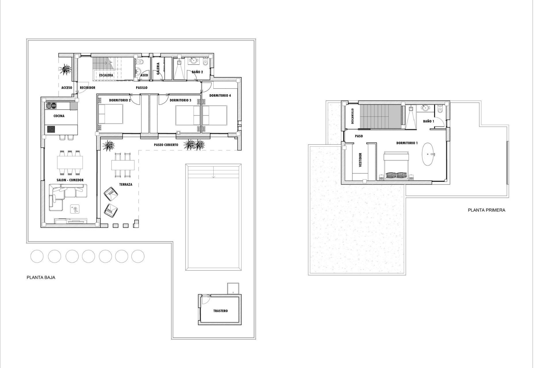
  • Mètres. 223m2
  • Intrigue. 13172m2
  • Chambre. 4
  • Salle de bain. 3
  • Piscine. Oui
Chambres: 4
Nbr. Sdb: 3
Construit: 223m2
Terrain: 13172m2
Piscine: Oui
Garden
private pool
Near schools
Gated
Number of Parking Spaces: 1
Air Conditioning: Pre-Installed
Double Bedrooms: 4
Terrace: 34 Msq.
Location: Rural, Mountain
Parking - Space
Beach: 25000 Meters
Stockage / Trastero
Espace de construction utilisable : 183 m².

La description

Aspe. Alicante Villa Individuelle. Nouvelle construction

Emplacement


Bel-chic

Faire une demande

Responsable du traitement: LEDDY HOMES SPAIN SL, Finalité du traitement: Gestion et contrôle des services proposés sur le site Web des Services immobiliers, Envoi d'informations via newsletter et autres, Base légale: Par consentement, Destinataires: Les données ne seront pas partagées, sauf à des fins comptables, Droits des personnes concernées: Accéder, rectifier et supprimer les données, demander leur portabilité, s’opposer au traitement et en demander la limitation, Source des données: La personne concernée, Informations supplémentaires: Vous pouvez consulter les informations supplémentaires et détaillées sur la protection des données Ici.

Rechercher
Contactez-nous