Cerrar Cerrar

Aspe. Alicante Chalet Independiente. Obra Nueva

614.000€
#Ref.:RP-88918

Aspe. Alicante Chalet Independiente. Obra Nueva

614.000€

Resumen

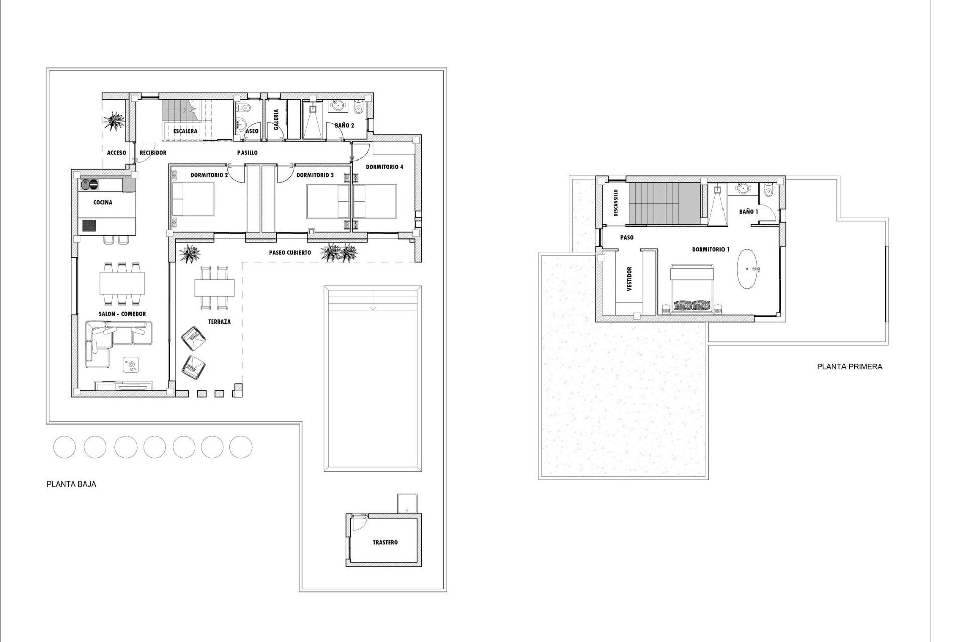
  • Metros. 223m2
  • Parcela. 13172m2
  • Habitación. 4
  • Baño. 3
  • Piscina.
Habitaciones: 4
Baños: 3
Construidos: 223m2
Parcela: 13172m2
Piscina:
Garden
private pool
Near schools
Gated
Number of Parking Spaces: 1
Air Conditioning: Pre-Installed
Double Bedrooms: 4
Terrace: 34 Msq.
Location: Rural, Mountain
Parking - Space
Beach: 25000 Meters
Almacenamiento / Trastero
Superficie útil construida: 183 m2.

Descripción

Aspe. Alicante Chalet Independiente. Obra Nueva

Localización


Bel-chic

Realizar una consulta

Responsable del tratamiento: LEDDY HOMES SPAIN SL, Finalidad del tratamiento: Gestión y control de los servicios ofrecidos a través de la página Web de Servicios inmobiliarios, Envío de información a traves de newsletter y otros, Legitimación: Por consentimiento, Destinatarios: No se cederan los datos, salvo para elaborar contabilidad, Derechos de las personas interesadas: Acceder, rectificar y suprimir los datos, solicitar la portabilidad de los mismos, oponerse altratamiento y solicitar la limitación de éste, Procedencia de los datos: El Propio interesado, Información Adicional: Puede consultarse la información adicional y detallada sobre protección de datos Aquí.

Buscar
Contacte con Nosotros