Close Close

Cox. Alicante Town house. New Build

223.000€
#Ref.:RP-26669

Cox. Alicante Town house. New Build

223.000€

Overview

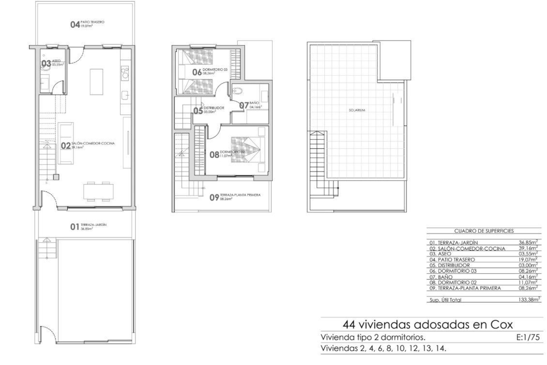
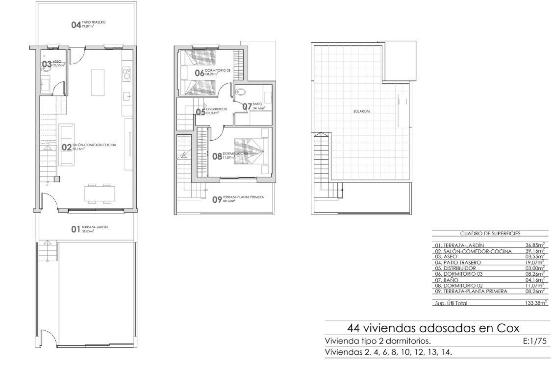
  • Meters. 81m2
  • Plot. 101m2
  • Bed. 2
  • Bath. 2
  • Pool. Yes
Bedrooms: 2
Bathrooms: 2
Built: 81m2
Plot: 101m2
Pool: Yes
BBQ
Garden
communal pool
Near schools
Near bus route
Solarium: Yes
Gated
Number of Parking Spaces: 1
Air Conditioning: Pre-Installed
Near Commercial Center
Double Bedrooms: 2
Useable Build Space: 70 Msq.
Location: Rural, Urbanisation
Terrace: 95 Msq.
Parking - Space
Beach: 25000 Meters

Description

Cox. Alicante Town house. New Build

Location


Bel-chic

Make an enquiry

Data Controller: LEDDY HOMES SPAIN SL, Purpose of Processing: Management and control of the services offered through the Real Estate Services website, Sending information via newsletter and others, Legal Basis: By consent, Recipients: Data will not be shared, except for accounting purposes, Rights of Interested Parties: Access, rectify, and delete data, request its portability, object to processing, and request its limitation, Source of Data: The Data Subject, Additional Information: You can consult additional and detailed information on data protection Here.

Search
Contact us