MEDITERRANEAN IN PURE STATE, INSIDE AND OUTSIDE YOUR HOME
Halfway between the Sleeping Lion Peak and the Bay of Altea, Polop de la Marina is the municipality that houses this newly built villa.
Located in a quiet residential area, surrounded by an incomparable environment, this villa is the perfect place to take a break after a day enjoying the Mediterranean in its purest form.
Due to its location, just a few minutes from the best coves and white sand beaches (El Albir, Altea, Calpe and Villajoyosa) and close to excellent golf courses, sports centers and theme parks, this villa will become your ideal refuge to explore the culture, nature and gastronomy of the Costa Blanca.
Its architectural design and wide distribution on one floor, allows that, through huge windows, all rooms have direct access to the private pool and barbecue area.
In addition, the spectacular 60 m2 solarium with direct access from the garden will captivate you with its sunsets and views of the Mediterranean.
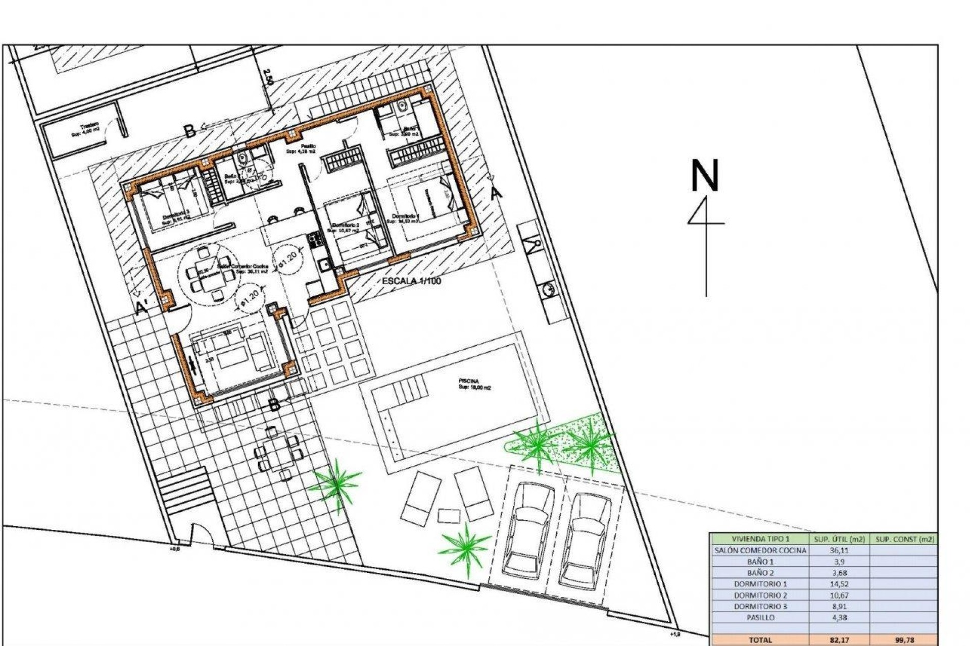
With 400 m2 of plot and 100 m2 of surface the villa is distributed in living room - fully equipped kitchen, 3 double bedrooms and 2 bathrooms, both with underfloor heating system. The pre-installation of air conditioning and the best finishes on the market will make you enjoy all the comforts you deserve in a genuinely Mediterranean environment.