Close Close

Pilar de la Horadada. Alicante Detached Villa. New Build

845.000€
#Ref.:RP-61634

Pilar de la Horadada. Alicante Detached Villa. New Build

845.000€

Overview

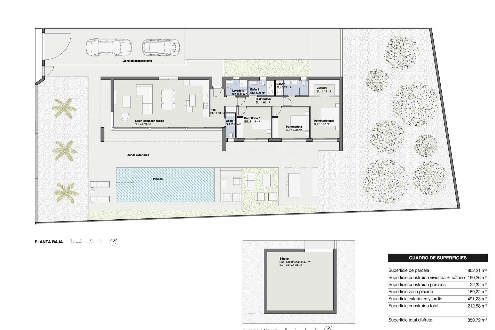
  • Meters. 190m2
  • Plot. 801m2
  • Bed. 3
  • Bath. 3
  • Pool. Yes
Bedrooms: 3
Bathrooms: 3
Built: 190m2
Plot: 801m2
Pool: Yes
Near schools
Gated
Number of Parking Spaces: 1
Air Conditioning: Pre-Installed
Double Bedrooms: 3
Under-Build / Basement
Beach: 9000 Meters
Terrace: 20 Msq.
Location: Rural
Parking - Space
Useable Build Space: 160 Msq.
Storage / Trastero
Garden
private pool

Description

Pilar de la Horadada. Alicante Detached Villa. New Build

Location


Bel-chic

Make an enquiry

Data Controller: LEDDY HOMES SPAIN SL, Purpose of Processing: Management and control of the services offered through the Real Estate Services website, Sending information via newsletter and others, Legal Basis: By consent, Recipients: Data will not be shared, except for accounting purposes, Rights of Interested Parties: Access, rectify, and delete data, request its portability, object to processing, and request its limitation, Source of Data: The Data Subject, Additional Information: You can consult additional and detailed information on data protection Here.

Search
Contact us