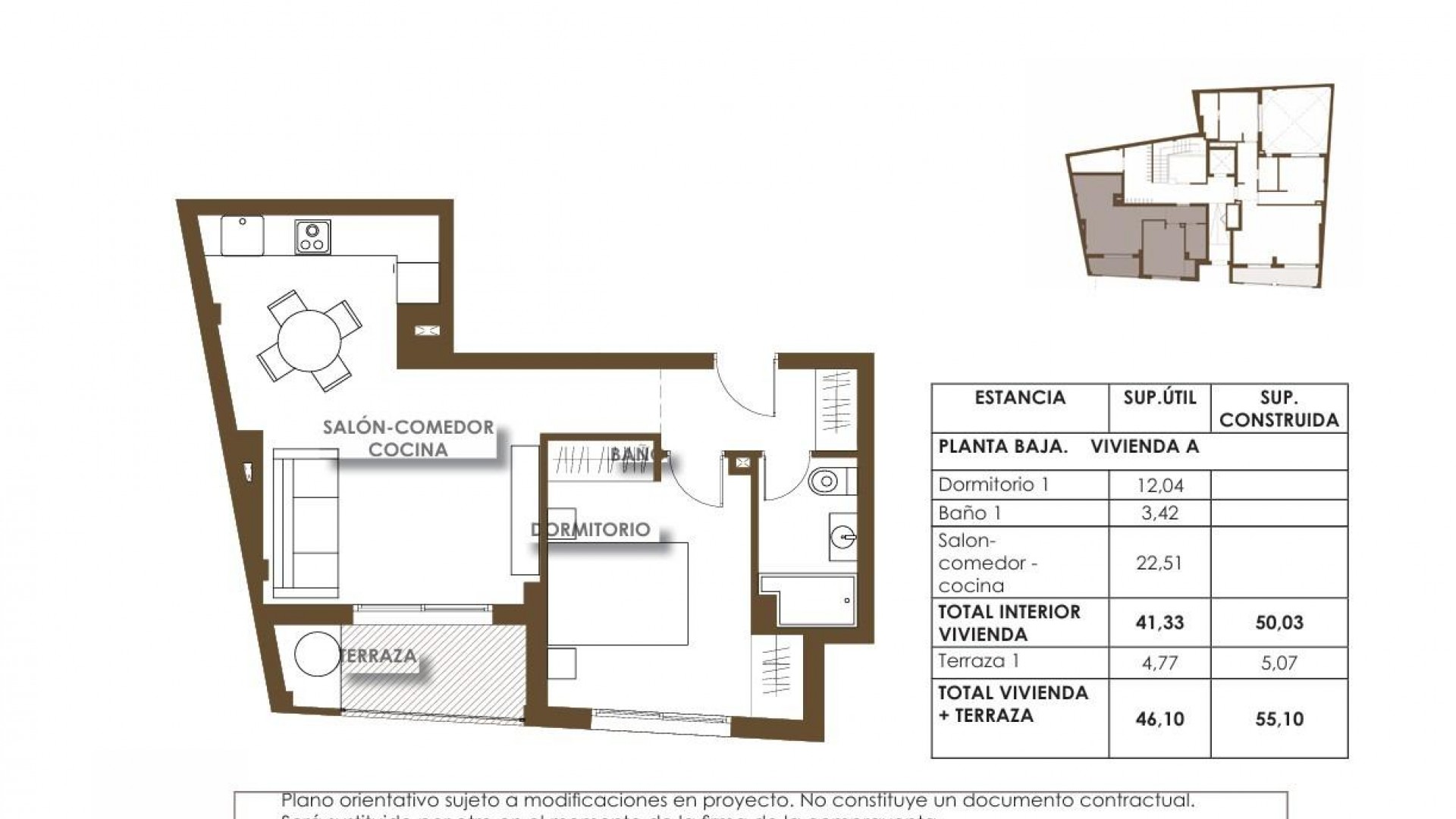
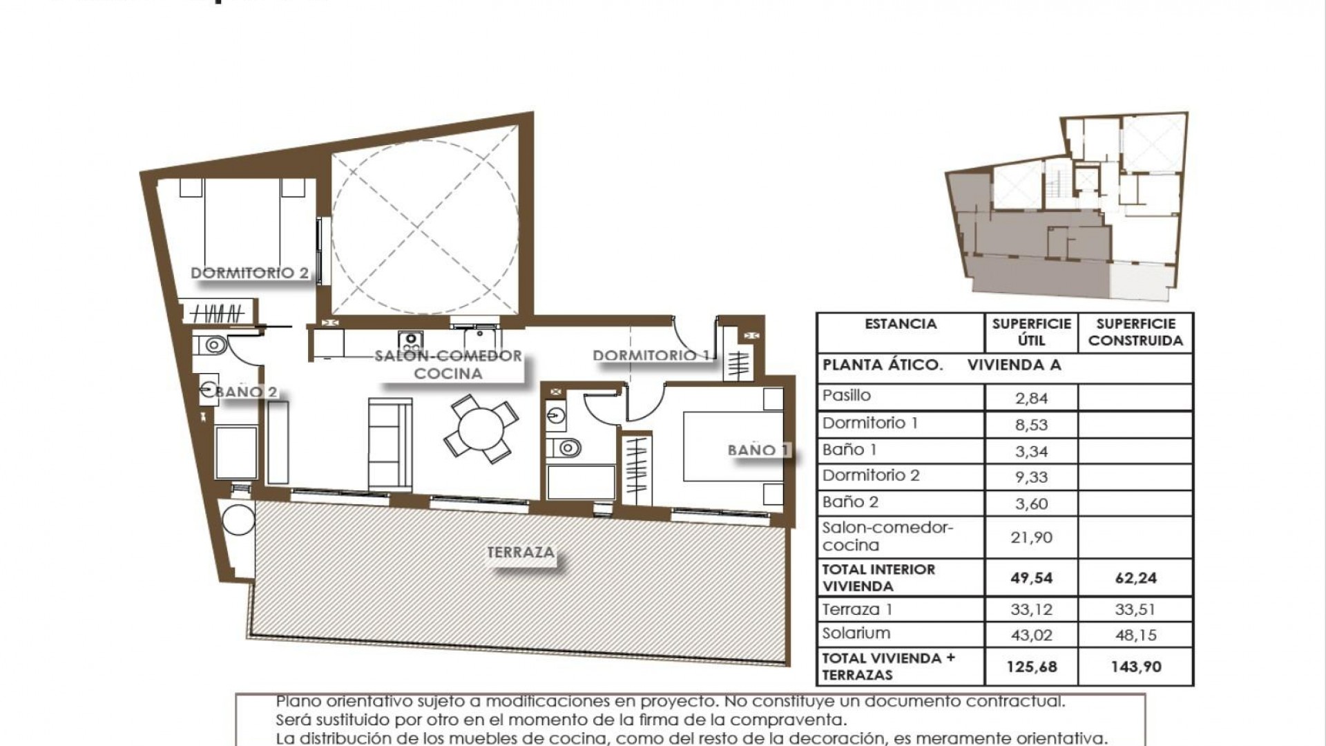
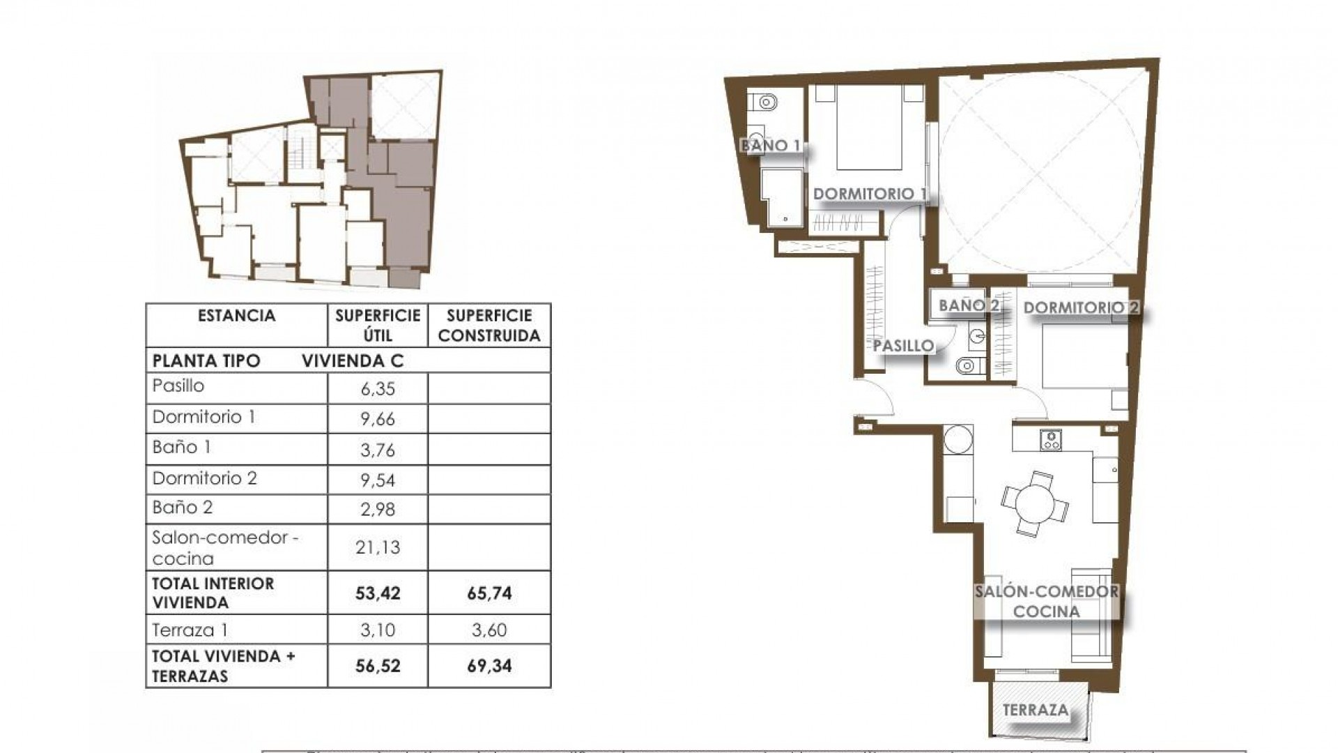
Residential building located in the heart of Torrevieja, on Ramón Gallud Street, one of the city's most emblematic and bustling commercial thoroughfares. Its prime location allows easy walking access to all essential services: supermarkets, restaurants, leisure areas, medical centers, and the renowned seafront promenade.~Just minutes away are the Juan Aparicio Promenade and the beaches of El Cura and Los Locos, making the building an ideal option for both permanent residence and holiday homes.~The building comprises 16 apartments distributed across the ground floor, standard floors, and penthouses, all with terraces and excellent layouts. In addition, the building offers a spectacular communal solarium and areas designed for relaxation.~All apartments feature fully lined, fitted wardrobes in the bedrooms, complete with hanging rails and soft-close drawers. The bathrooms are fully equipped with top-quality fixtures.~Every apartment boasts functional and bright designs, modern and aesthetically pleasing finishes, and integrated kitchens with contemporary finishes.~The penthouses feature private solariums, while the terraces of the other apartments are spacious.~The solarium area includes a rooftop pool with sea views, chill-out spaces, and landscaped gardens and relaxation areas.~Its prime location allows easy access on foot to all essential services such as supermarkets, restaurants, shops, medical centers, and leisure areas, as well as the seafront promenade and Playa del Cura beach, located just a few minutes away. This unique combination of coastal setting and urban life makes the area an ideal place to live year-round or enjoy holidays, offering comfort, accessibility, and quality of life in the heart of the city.~A great opportunity to enjoy the sea and a city that offers many attractions...~~