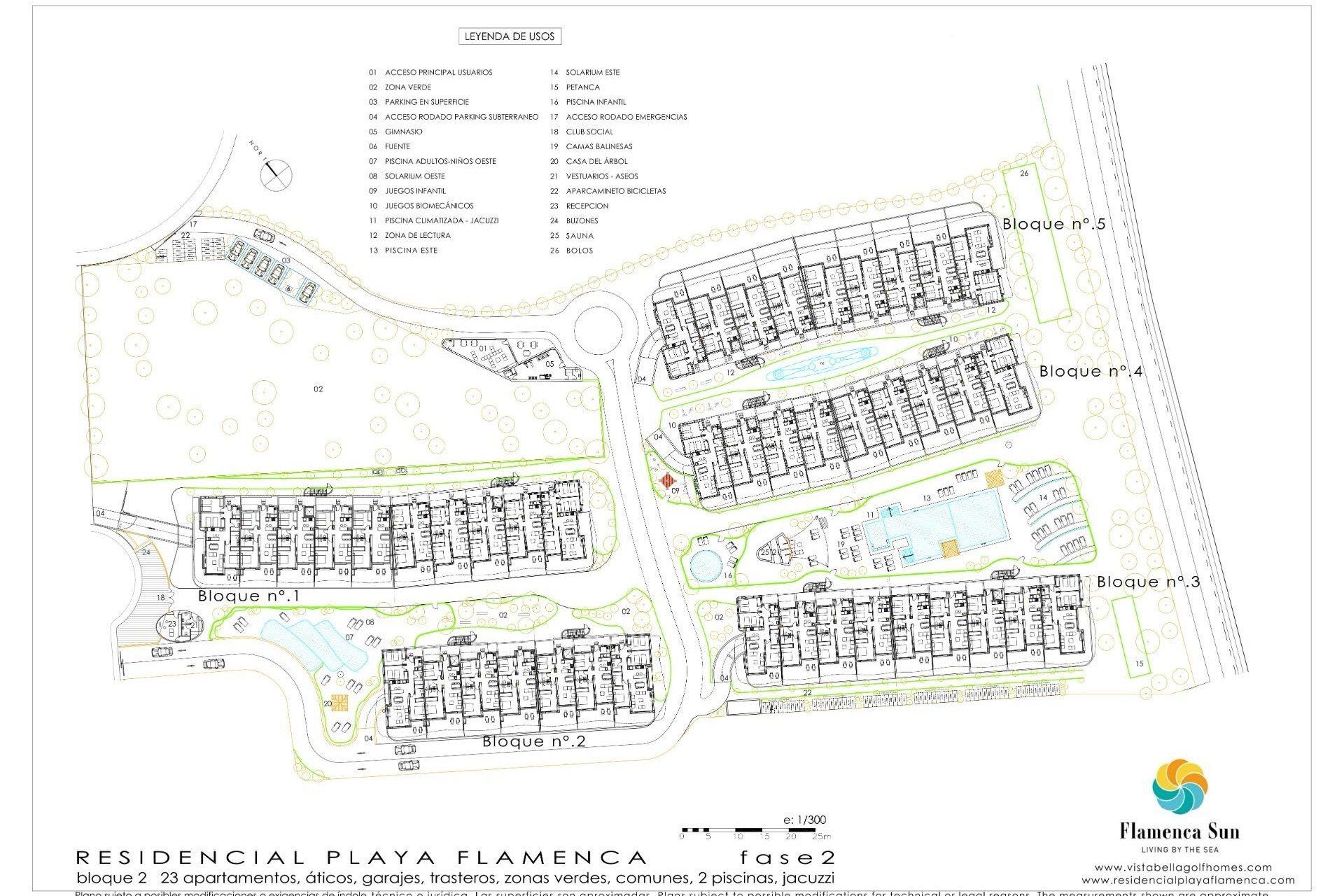
Entdecken Sie eine exklusive Neubau-Wohnanlage in Playa Flamenca, Orihuela Costa, die für alle konzipiert wurde, die ein modernes, gut gelegenes Zuhause mit hohem Potenzial sowohl zur Eigennutzung als auch als Investition an der Costa Blanca suchen. Es handelt sich um ein mehrphasiges Projekt, das den Erwerb von Neubauimmobilien in verschiedenen Bauphasen mit ausgezeichnetem Wertsteigerungspotenzial ermöglicht.~~Die Anlage verfügt bereits über einen vollständig fertiggestellten und verkauften ersten Block mit Gemeinschaftspool. Block 2 befindet sich in der Endphase der Fertigstellung, Block 3 in der Phase der Innenaufteilung, und Block 4 — zu dem diese Wohnungen gehören — befindet sich derzeit in der Fundament- und Rohbauphase. Dadurch stellt Block 4 eine besonders attraktive Gelegenheit dar, eine Immobilie zu einem wettbewerbsfähigen Preis in einem sich dynamisch entwickelnden Umfeld zu erwerben.~~Die Wohnungen zeichnen sich durch ein modernes, funktionales und lichtdurchflutetes Design aus, mit großzügigen Terrassen, die ideal sind, um das mediterrane Klima das ganze Jahr über zu genießen. Verfügbar mit 2 oder 3 Schlafzimmern, bieten sie gut geschnittene Wohnbereiche, offene Küchen zur individuellen Gestaltung sowie hochwertige Ausstattungen wie PVC-Fenster mit Doppelverglasung, Fliesenböden und eine Vorinstallation für Klimaanlagen. Zudem verfügen alle Einheiten über einen Stellplatz und einen Abstellraum.~~Nach Fertigstellung wird die Wohnanlage mehrere Gemeinschaftspools, großzügige Grünflächen und Entspannungsbereiche bieten, alles in einer privaten und sicheren Anlage.~~Ein weiterer großer Vorteil ist die Lage, nur 500 Meter vom Strand entfernt und in unmittelbarer Nähe zu allen wichtigen Dienstleistungen. In kurzer Entfernung befinden sich Mercadona sowie das Centro Comercial La Zenia Boulevard, ebenso wie Supermärkte, Restaurants, Freizeitangebote, medizinische Einrichtungen, Schulen und Golfplätze.~~Zusammenfassend handelt es sich um eine Immobilie, die Lage, Bauqualität und Wertsteigerungspotenzial optimal vereint.~~Preis: 340.000 €*. Steuern und Kaufnebenkosten NICHT enthalten (gemäß geltender Gesetzgebung).~Eine detaillierte Aufstellung der zusätzlichen Kosten wird vor der Reservierung bereitgestellt.~*Der Preis kann Schreibfehler enthalten; bitte beim Bauträger bestätigen.