Moderne Doppelhaushälften im Santa Rosalía Lake and Life Resort - Ein neuer Standard für mediterranen Luxus
Zeitgenössisches Design, inspiriert vom Mittelmeer
Entdecken Sie diese exklusiven neuen Doppelhaushälften im prestigeträchtigen Santa Rosalía Lake and Life Resort, einer einzigartigen Wohnanlage an der Costa Cálida. Inspiriert von der mediterranen Architektur verbinden diese Villen klare Linien, natürliches Licht und modernen Komfort zu einem harmonischen und eleganten Wohnambiente. Jede Villa ist so konzipiert, dass sie eine perfekte Balance zwischen Luxus und Entspannung bietet und sich somit ideal als Dauerwohnsitz, Ferienhaus oder Investitionsmöglichkeit eignet.
Großzügiger Grundriss und hochwertige Ausstattung
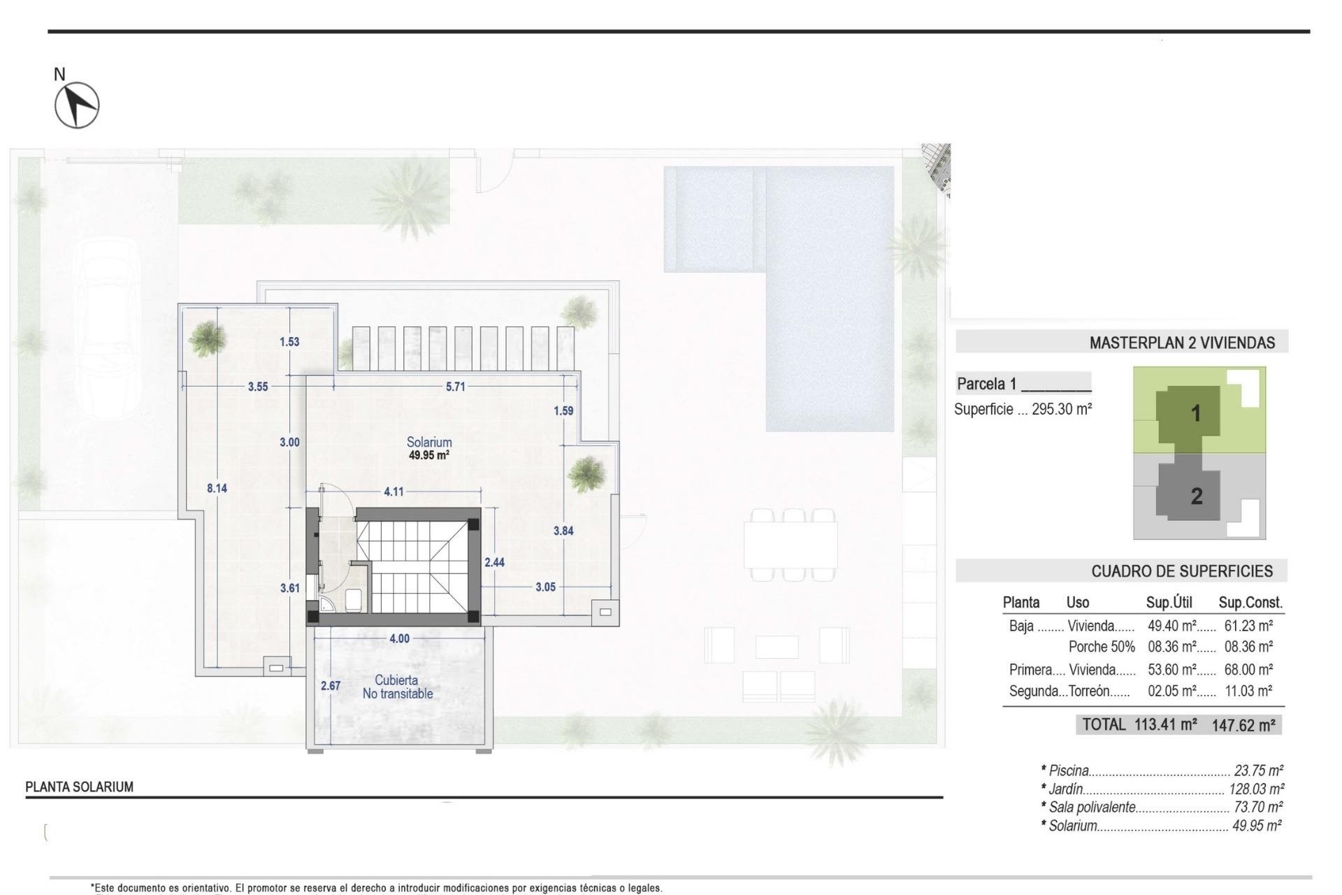
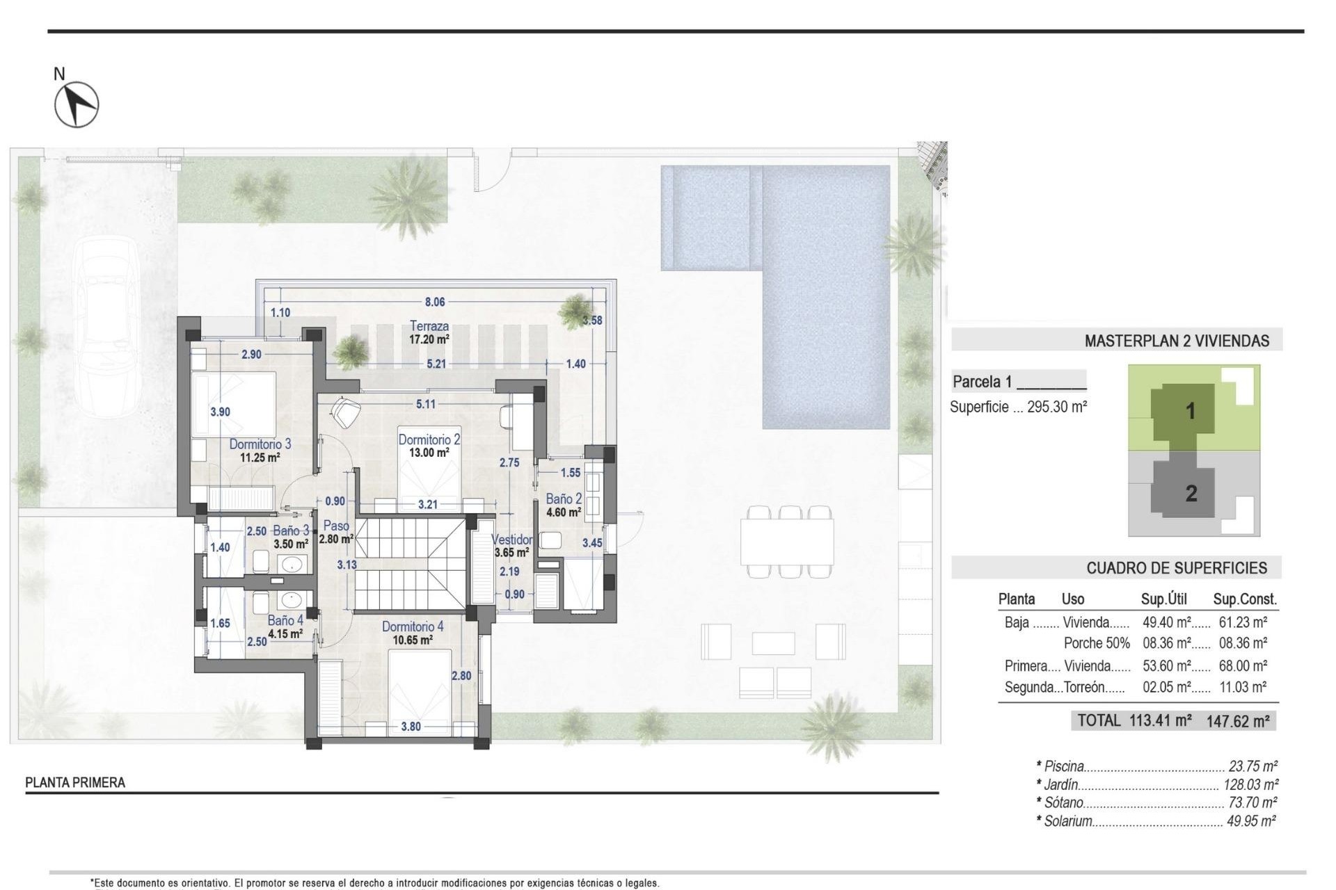
Jede Villa bietet 220 m² Wohnfläche, verteilt auf ein Untergeschoss, zwei Hauptetagen und eine Dachterrasse, auf einem großzügigen 295 m² großen Grundstück. Die Häuser verfügen über 4 Schlafzimmer und 4 Badezimmer (3 davon en suite) und bieten reichlich Platz für Familie und Gäste. Der private Pool mit Whirlpoolbereich, große Terrassen und eine Dachterrasse mit Sommerküche und Toilette laden dazu ein, das außergewöhnliche Klima der Region das ganze Jahr über zu genießen.
Zur Premium-Ausstattung gehören:
Voll ausgestattete Küche mit Bosch-Geräten
Badezimmer mit Möbeln, Spiegeln, Duschwänden und Handtuchwärmern
Panzertür und motorisiertes Zugangstor für Fahrzeuge
LED-Spotlights im Innen- und Außenbereich
Klimaanlage (in beiden Etagen installiert)
Privater Pool mit Whirlpoolbereich
2 Photovoltaik-Solarmodule für Energieeffizienz
Sommerküche im Garten
Untergeschoss mit englischem Innenhof für natürliches Licht und Belüftung
Resort-Style-Wohnen in Santa Rosalía
Santa Rosalía Lake and Life Resort ist eine private, bewachte Wohnanlage mit 24-Stunden-Sicherheitsdienst, die um eine beeindruckende 126.000 m² große Grünfläche herum angelegt ist. Die Bewohner genießen Wander- und Radwege, Sportanlagen, Paddle- und Tennisplätze, Minigolf, Gärten, Hundeparks und Freizeitbereiche. Das Clubhaus und das Herzstück des Resorts – eine atemberaubende, 17.000 m² große, kristallklare Lagune, umgeben von weißen Sandstränden und Palmen – bieten einen echten karibisch inspirierten Lebensstil. Die Lagune verfügt sogar über zwei Inseln, eine davon mit eigener Bar, und mehrere Strand-Chiringuitos für entspanntes Essen.
Erstklassige Lage an der Costa Cálida
Die Anlage befindet sich in zentraler Lage innerhalb des Resorts, in der Nähe der Lagune und des Strandclubs. Sie ist weniger als 4 km vom Strand von Los Alcázares, 15 Minuten von Cartagena und nur 22 km vom internationalen Flughafen Murcia entfernt. Golfbegeisterte finden mehrere erstklassige Golfplätze in kurzer Entfernung, während lokale Yachthäfen, Restaurants und Einkaufsmöglichkeiten das Angebot an lebhaftem Lifestyle vervollständigen.
Ihr exklusiver Rückzugsort am Mittelmeer erwartet Sie
Erleben Sie die perfekte Kombination aus Luxus, Komfort und Wohlbefinden im Herzen der Costa Cálida.
Kontaktieren Sie uns noch heute, um einen Besichtigungstermin zu vereinbaren und Ihre Traumvilla im Santa Rosalía Lake and Life Resort zu entdecken.