Neue Villen auf großzügigen 500+ m² Grundstücken in Lorca
Neue Villen im mediterranen Stil in einer sicheren und ruhigen Wohngegend
Entdecken Sie ein exklusives Bauvorhaben mit unabhängigen Villen auf Grundstücken von über 500 m² in strategischer Lage im Südosten Spaniens. Diese Häuser bieten die perfekte Kombination aus ländlicher Ruhe, Küstennähe und hervorragender Straßenanbindung an die großen Städte und Flughäfen.
Die privilegierte Lage an der Costa Cálida und die ganzjährige Sonneneinstrahlung machen diese Siedlung zu einem idealen Ort, um den mediterranen Lebensstil zu genießen.
Geräumige, helle Wohnungen mit privaten Gärten
Diese Villen sind für maximalen Komfort und Entspannung konzipiert und verfügen über offene Wohnbereiche mit großen Fenstern, die Innen- und Außenbereiche nahtlos miteinander verbinden. Der großzügige Privatgarten bietet den perfekten Rahmen für Freizeitaktivitäten im Freien, mit der Möglichkeit, einen Swimmingpool hinzuzufügen und die Gartengestaltung individuell zu gestalten.
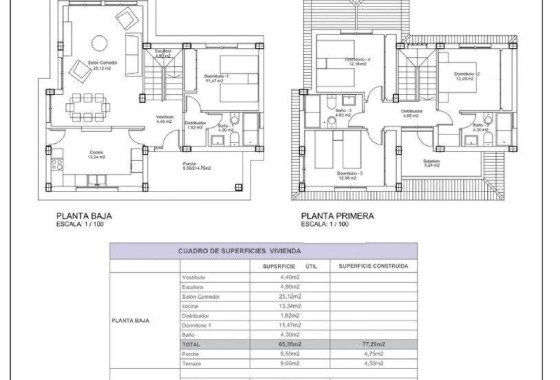
Sie haben die Wahl zwischen drei Villenmodellen in ein- oder zweistöckiger Bauweise, mit 3 oder 4 Schlafzimmern und 2 oder 3 Bädern. Jedes Haus verfügt über eine private Sonnenterrasse, die es den Bewohnern ermöglicht, die schöne Umgebung in vollen Zügen zu genießen.
Eine sichere und gut ausgestattete Gemeinschaft
Diese geschlossene Wohnanlage bietet einen 24-Stunden-Sicherheitsdienst mit kontrolliertem Zugang, der allen Bewohnern ein Gefühl der Sicherheit vermittelt. Die Wohnanlage wurde im Hinblick auf ein grünes Leben entworfen und verfügt über:
Zwei große, landschaftlich gestaltete Parks zur Entspannung und für Familienaktivitäten.
Spezielle Sport- und Spielplätze zur Förderung eines aktiven Lebensstils.
Von Bäumen gesäumte Straßen und ein 3,5 km langer Radweg, der am Rande der Siedlung entlangführt.
Ein Gewerbegebiet am Eingang, in dem sich ein Restaurant, ein Supermarkt, eine Tankstelle und andere wichtige Dienstleistungen befinden werden.
Hochwertige Verarbeitung für maximalen Komfort
Jede Villa wird mit hochwertigen Materialien und modernen Installationen gebaut, darunter:
Vorinstallation für eine Kanal-Klimaanlage
Vorinstallation für Erdgas
Sicherheitseingangstür
Doppelt verglaste Climalit-Fenster
Vollständig eingezäunte Anlage mit 24-Stunden-Überwachung
Erstklassige Lage - in der Nähe der Küste und der städtischen Annehmlichkeiten
In einem neu erschlossenen Gebiet der Gemeinde Lorca gelegen, bieten diese Villen eine natürliche und ruhige Umgebung und gleichzeitig einen einfachen Zugang zu den wichtigsten Orten:
Lorca Stadtzentrum - 10 km
Strände von Águilas - 20 km
Flughafen Murcia-Corvera - 70 km
Flughafen Alicante - 130 km
Einkaufszentren und Restaurants - 10 km
Finden Sie Ihr ideales Zuhause an der Costa Cálida
Mit 50 bereits fertiggestellten und insgesamt 320 geplanten Häusern ist dies Ihre Gelegenheit, sich eine neue Villa im mediterranen Stil in einer blühenden neuen Gemeinde zu sichern. Ob als ständiger Wohnsitz, als Ferienhaus oder als Investition, diese Immobilien bieten ein hervorragendes Preis-Leistungs-Verhältnis in bester Lage.
Kontaktieren Sie uns noch heute, um mehr zu erfahren und eine Besichtigung zu vereinbaren!