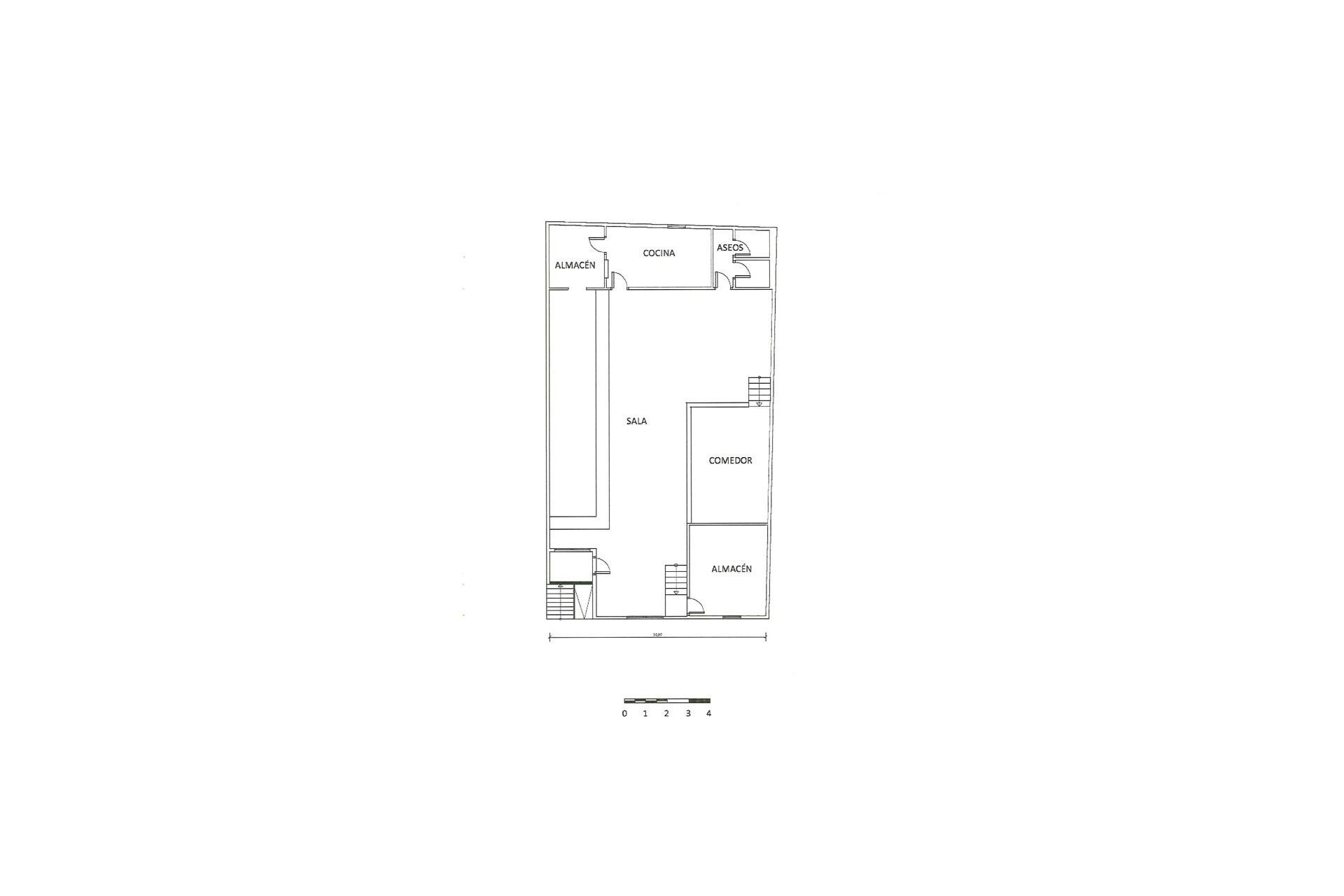
Wir präsentieren dieses großzügige Geschäftslokal in einer der gefragtesten Lagen von Torrevieja: Playa del Cura, nur 130 Meter vom Meer entfernt. Eine strategische Lage mit hohem Fußgängerverkehr das ganze Jahr über sowie einer großen Anzahl von Touristen in der Hochsaison.~~Die Immobilie verfügt über 149 m2 bebaute Fläche und bietet einen großzügigen und vielseitigen Raum, der sich für viele verschiedene Geschäftsarten eignet.~~Das Lokal ist derzeit komplett renovierungsbedürftig, was eine hervorragende Gelegenheit bietet, den Raum vollständig nach den Bedürfnissen des zukünftigen Geschäfts zu gestalten. Ideal für Restaurant, Café, Geschäft, Büro, Boutique-Fitnessstudio, Schönheitszentrum oder andere gewerbliche Projekte.~~Die Immobilie verfügt außerdem über zwei Badezimmer und einen großen Abstellraum, was zusätzliche Funktionalität und Lagermöglichkeiten bietet.~~Zusammenfassend handelt es sich um eine ausgezeichnete Investitionsmöglichkeit in einer der attraktivsten Gegenden der Costa Blanca – perfekt für Unternehmer und Investoren, die eine Immobilie mit großem Rentabilitätspotenzial in Meeresnähe suchen.