In der charmanten Ortschaft Finestrat gelegen, bietet diese exklusive Sammlung von 15 Immobilien eine privilegierte Umgebung mit Meerblick. Die verfügbaren Typologien umfassen freistehende Häuser und Villen, die für diejenigen entworfen wurden, die ein Zuhause in einer ruhigen und malerischen Umgebung suchen. Die Nähe zum Meer, nur 3 km entfernt, ermöglicht es, die Meeresbrise und eine unvergleichliche Landschaft zu genießen. Diese Immobilien zeichnen sich durch ihr modernes und funktionales Design aus, ideal für Familien, die Privatsphäre und Komfort in einer natürlichen Umgebung schätzen.
AUSSENBEREICHE
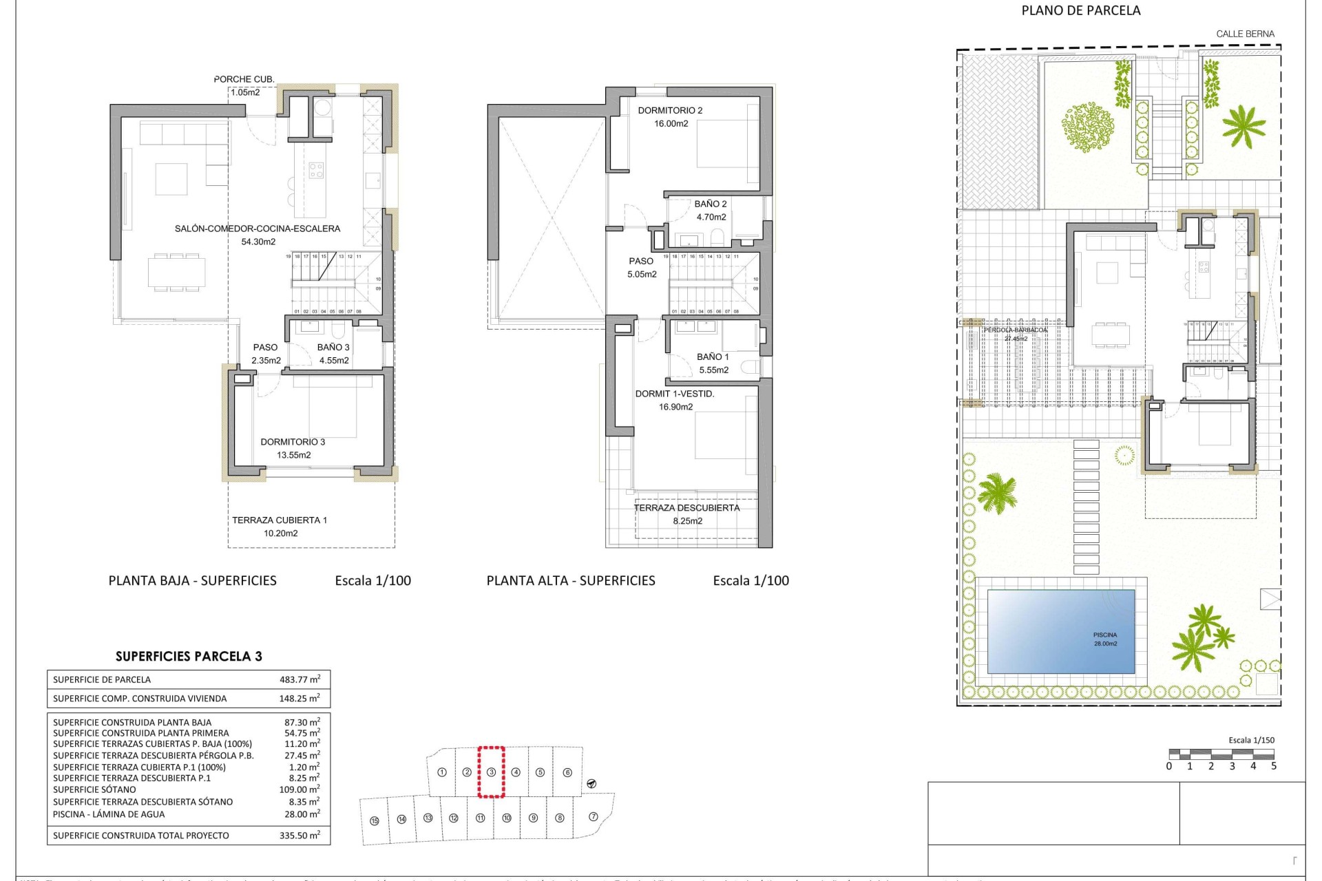
Die Außenbereiche dieser Immobilien in Finestrat sind so gestaltet, dass sie den Genuss der natürlichen Umgebung maximieren. Jedes Haus verfügt über einen privaten Garten, perfekt für Outdoor-Aktivitäten und Entspannungsmomente. Die großzügigen Terrassen bieten zusätzlichen Raum, um den Meerblick und das mediterrane Klima zu genießen. Darüber hinaus ist jede Immobilie mit einem privaten Pool ausgestattet, ideal zum Abkühlen an heißen Sommertagen. Die Anwesenheit von Pergolen verleiht einen Hauch von Eleganz und Funktionalität, bietet Schatten und einen gemütlichen Raum für Treffen im Freien.
INNENBEREICHE
Das Innere dieser Häuser in Finestrat ist sorgfältig gestaltet, um maximalen Komfort und Funktionalität zu bieten. Die Grundrissoptionen umfassen Immobilien mit 3 oder 4 Schlafzimmern und 3 oder 4 Bädern, die den Bedürfnissen jeder Familie gerecht werden. Die Keramikböden verleihen einen modernen Touch und sind pflegeleicht. Die Häuser sind mit Klimaanlage und Smart-Home-Technologie ausgestattet, was eine effiziente Steuerung des Hauses ermöglicht. Elektrische Rollläden und hochwertige Geräte vervollständigen ein Set von Merkmalen, die ein komfortables und modernes Wohnerlebnis garantieren. Einbauschränke bieten zusätzlichen Stauraum und erhalten die Ordnung und Ästhetik des Hauses.
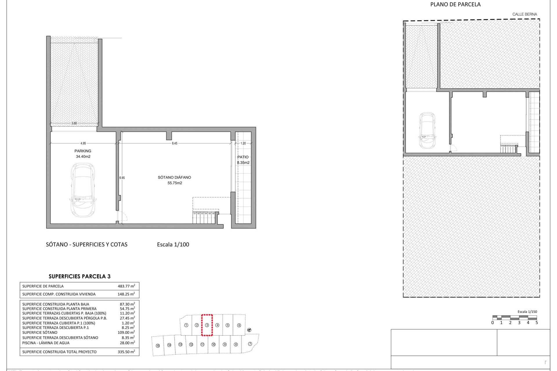
GEMEINSCHAFTSBEREICHE
Die Gemeinschaftsbereiche dieser Wohnanlage in Finestrat umfassen eine Gemeinschaftsgarage und Parkplätze, die den Bewohnern Komfort und Sicherheit bieten. Diese Einrichtungen sind so konzipiert, dass sie den Alltag erleichtern, mit einfachem und sicherem Zugang zu den Häusern. Die Gemeinschaft ist darauf ausgelegt, eine Atmosphäre des Zusammenlebens und der Ruhe zu fördern, in der die Bewohner alle Annehmlichkeiten genießen können, ohne sich um das Parken oder die Sicherheit ihrer Fahrzeuge sorgen zu müssen.
FINESTRAT
Finestrat in der Provinz Alicante ist ein Ort, der ländliche Gelassenheit mit der Nähe zu beliebten Touristengebieten verbindet. Obwohl es kein großes Touristenziel ist, liegt sein Charme in seiner natürlichen Schönheit und seiner ruhigen Atmosphäre. Der Tourismus in Finestrat konzentriert sich auf die bergige Umgebung und die Nähe zu Attraktionen wie dem Themenpark Terra Mitica und den nahegelegenen Buchten wie der Cala Finestrat, die sich ideal zum Baden eignen. Der Lebensstil in Finestrat ist friedlich und naturverbunden. Die Bewohner genießen das ruhige Leben in einer ländlichen Umgebung, in der die Ruhe geschätzt und der Zusammenhalt der Gemeinschaft gefördert wird. Die lokale Gastronomie basiert auf typischen regionalen Gerichten mit mediterranen Einflüssen. Finestrat bietet eine ruhige und natürliche Umgebung für diejenigen, die ein friedliches Leben in der Nähe der bekannten touristischen Ziele an der Costa Blanca suchen.