Gut gepflegtes und stilvolles Doppelhaus in der charmanten Urbanisation Entre Golf, einer der beliebtesten und ruhigsten Wohnanlagen von Villamartín.
Das Haus liegt in der ruhigen und privaten Straße Bidasoa, nur wenige Gehminuten von Restaurants, Cafés und Supermärkten entfernt und nur eine kurze Autofahrt von der beliebten Villamartin Plaza und La Fuente. Auch mehrere Golfplätze, darunter Villamartin Golf, sind nur eine kurze Autofahrt entfernt.
Hell und geräumig
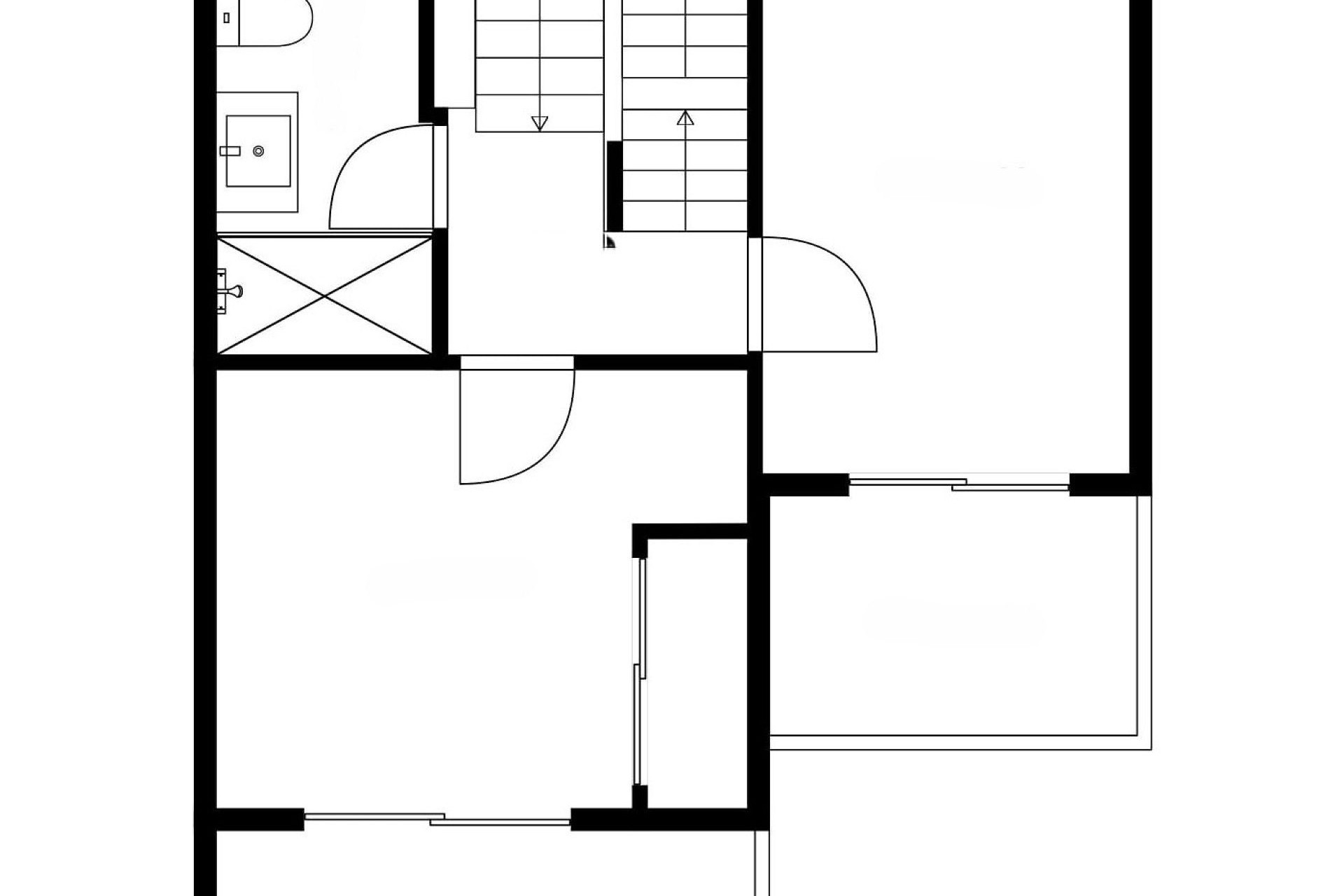
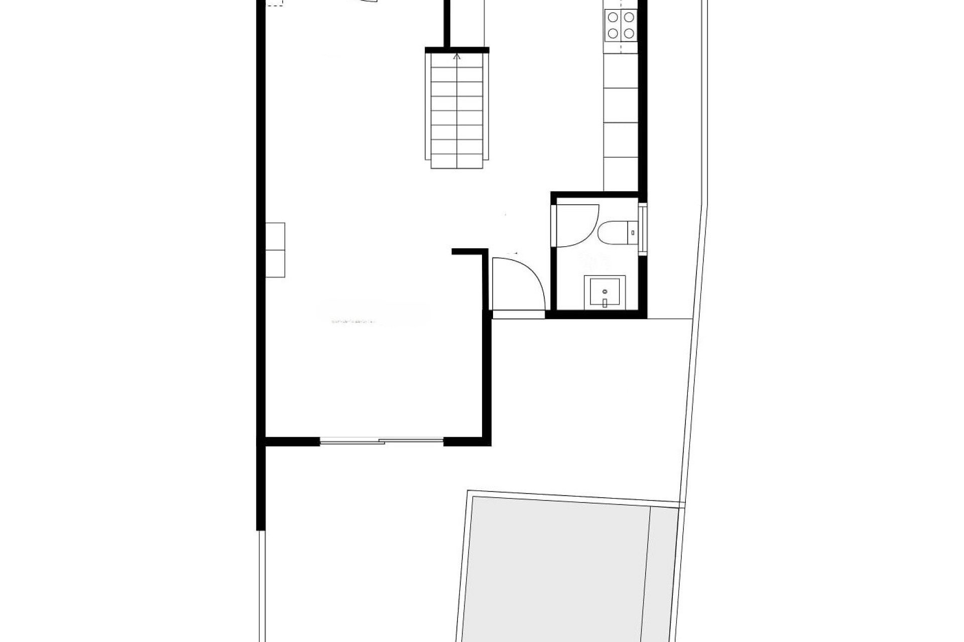
Das helle Wohnzimmer geht nahtlos in die offene Küche und die sonnige, nach Süden ausgerichtete Terrasse über. Es gibt auch eine separate Toilette, ideal für Gäste.
Sie haben Ihren eigenen privaten Pool mit Wärmepumpe, einen pflegeleichten Garten und die Möglichkeit, auf dem Grundstück zu parken.
Mehrere Nachbarn haben sich dafür entschieden, den Essbereich in ein zusätzliches Schlafzimmer umzuwandeln – die Möglichkeiten sind vielfältig.
Im Obergeschoss befinden sich zwei geräumige Doppelzimmer, beide mit Einbauschränken und einem privaten Balkon – ideal, um den Morgen mit einer Tasse Kaffee zu beginnen. Das helle, vollständig geflieste Badezimmer ist mit einer geräumigen Dusche ausgestattet.
Auf dem Solarium erwartet Sie eine wunderschöne Dachterrasse mit atemberaubendem Blick auf die Umgebung.
Bezugsfertig & möbliert
Die Wohnung wird möbliert mit stilvollen Einrichtungsgegenständen, Accessoires und praktischen Haushaltsgegenständen verkauft – bringen Sie einfach Ihren Koffer mit und beginnen Sie Ihr neues Leben.
Erstklassige Lage in Villamartin - Los Altos
Los Altos ist bekannt für seine ruhige Atmosphäre, seine hervorragende Infrastruktur und die Nähe zu Stränden, Geschäften und Restaurants. Eine perfekte Kombination aus Platz, Komfort und mediterranem Charme.
Neben Ihrem eigenen privaten Pool haben Sie auch Zugang zum Gemeinschaftspoolbereich der Urbanisation, der sich nur wenige Meter weiter am Ende der Straße befindet. Er ist sehr gepflegt, mit echtem Rasen, Sonnenschirmen und einem Bouleplatz.
Diese Immobilie spricht sowohl Dauerbewohner als auch Urlauber an und wird exklusiv über uns verkauft. Kontaktieren Sie uns noch heute, um eine Besichtigung dieses Juwels in erstklassiger Lage zu vereinbaren!