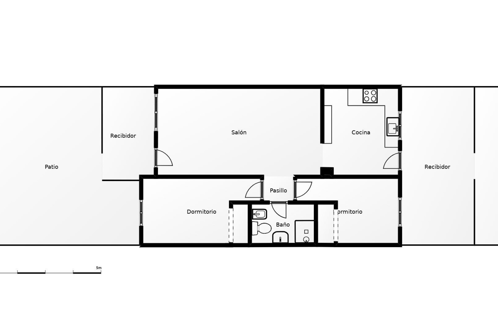
Bungalow na parterze w okolicy PAU 26 w Orihuela Costa, cicha i dobrze skomunikowana lokalizacja, idealna zarówno na stałe zamieszkanie, jak i na wakacje.. . Nieruchomość posiada orientację północną i południową, co zapewnia doskonałą wentylację i naturalne światło przez cały dzień. Z przodu znajduje się przyjemny ogród z bezpośrednim wejściem do domu, idealny do relaksu na świeżym powietrzu lub stworzenia przytulnego miejsca do wypoczynku.. . Z tyłu znajduje się przestronny patio od strony południowej, idealny do korzystania ze słońca, z bezpośrednim dostępem do wspólnego basenu, znajdującego się w zadbanym kompleksie mieszkaniowym otoczonym zielenią.. . Wewnątrz znajduje się przestronny salon z aneksem kuchennym, tworzący funkcjonalną i komfortową przestrzeń do codziennego życia. Do dyspozycji są dwie jasne sypialnie i w pełni wyposażona łazienka, wszystko w doskonałym stanie, gotowe do zamieszkania.. . Lokalizacja jest doskonała, bardzo blisko renomowanego Campo de Golf Villamartín, popularnego Zenia Boulevard oraz supermarketów i wszystkich potrzebnych usług w kilka minut, co zapewnia wygodę i wysoką jakość życia przez cały rok.. . Dodatkowo nieruchomość była kilkukrotnie wynajmowana na długi termin, co czyni ją również doskonałą opcją jako inwestycję, z udokumentowanym potencjałem wynajmu.. . Idealna okazja dla osób szukających spokoju, słońca i bliskości wszystkich usług na Costa Blanca, z dodatkową zaletą w postaci nieruchomości z stabilną historią wynajmu.. Cena: 169 000 €. Podatki i koszty zakupu nie są wliczone w cenę (zgodnie z obowiązującymi przepisami). Szczegółowe zestawienie dodatkowych kosztów zostanie przedstawione przed rezerwacją.. . W przypadku transakcji z podwójnym pośrednictwem wynagrodzenie płacone przez kupującego wynosi 1,5% ostatecznej ceny zakupu, minimum 3 000 €, plus VAT (21%), chyba że uzgodniono inaczej. Koszty te nie są wliczone w podaną cenę.