Nowe bungalowy na sprzedaż w Pilar de la Horadada, 3 km od plaży
Ekskluzywna inwestycja mieszkaniowa w Pilar de la Horadada
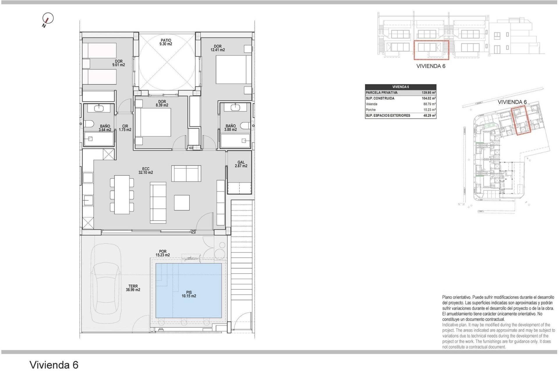
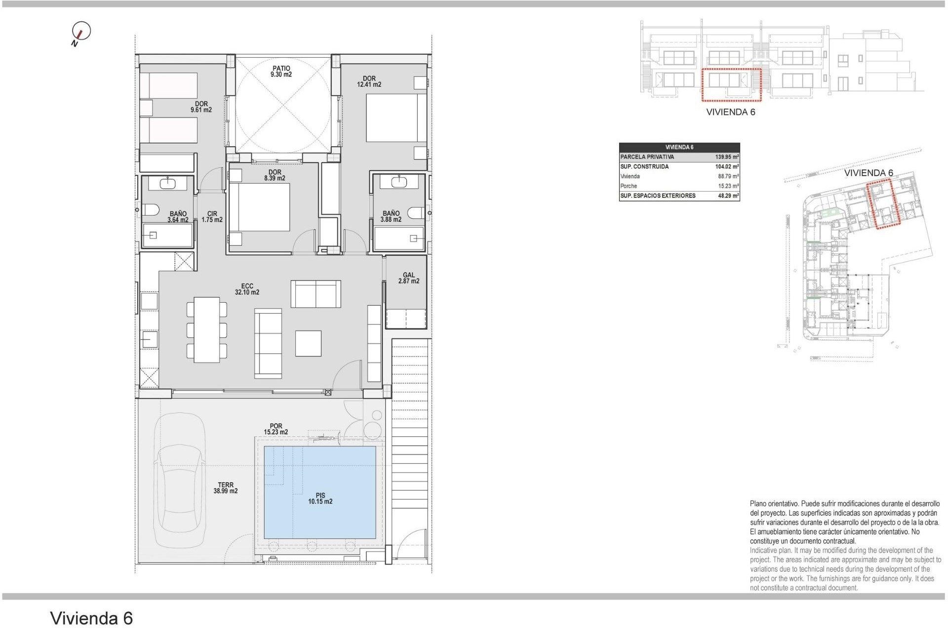
Odkryj ten ekskluzywny kompleks nowoczesnych bungalowów położony w Pilar de la Horadada, najbardziej na południe wysuniętej miejscowości na wybrzeżu Costa Blanca. Ta ekskluzywna inwestycja składa się z zaledwie 14 starannie zaprojektowanych domów z 2 lub 3 sypialniami i 2 łazienkami, oferujących idealne połączenie komfortu, stylu i śródziemnomorskiego stylu życia.
Osiedle położone jest w spokojnej dzielnicy mieszkalnej, w odległości spacerowej od centrum miasta, co pozwala mieszkańcom cieszyć się łatwym dostępem do sklepów, restauracji, supermarketów i niezbędnych usług. Pilar de la Horadada słynie z przyjaznej atmosfery, tradycyjnego hiszpańskiego uroku i tętniącej życiem głównej ulicy pełnej kawiarni, butików i uroczych placów.
Nowoczesne bungalowy z prywatnymi przestrzeniami zewnętrznymi
Domy zostały zaprojektowane tak, aby oferować jasne wnętrza i funkcjonalny rozkład, idealny zarówno do stałego zamieszkania, jak i do wykorzystania wakacyjnego.
Bungalowy na parterze posiadają prywatny ogród i prywatny basen, tworząc idealne warunki do cieszenia się życiem na świeżym powietrzu, opalania się lub rozrywki z rodziną i przyjaciółmi.
Bungalowy na najwyższym piętrze posiadają przestronny taras i prywatne solarium na dachu. Solarium wyposażone jest w letnią kuchnię i oferuje możliwość dodania prywatnego basenu lub jacuzzi za dodatkową opłatą, co czyni je idealnym miejscem do relaksu, ciesząc się ciepłym śródziemnomorskim klimatem i otwartymi widokami.
Każda nieruchomość posiada prywatne miejsce parkingowe na terenie kompleksu mieszkaniowego, co zapewnia dodatkową wygodę.
Wysokiej jakości konstrukcja i nowoczesne wyposażenie
Te nowo wybudowane domy zostały zbudowane z wysokiej jakości materiałów i wyposażone w nowoczesne instalacje, które zapewniają komfort i energooszczędność przez cały rok.
Aluminiowa stolarka zewnętrzna z przegrodą termiczną
W pełni wyposażone kuchnie z urządzeniami
Łazienki wyposażone w lustra i kabiny prysznicowe
Oświetlenie LED wewnątrz i na zewnątrz
System ciepłej wody z energooszczędną technologią aerotermiczną
Preinstalacja klimatyzacji kanałowej
Połączenie nowoczesnego designu i praktycznych funkcji sprawia, że domy te są doskonałą opcją dla nabywców poszukujących współczesnej nieruchomości na Costa Blanca.
Doskonała lokalizacja w pobliżu plaż i pól golfowych
Pilar de la Horadada cieszy się strategiczną lokalizacją w pobliżu jednych z najlepszych plaż i pól golfowych w regionie.
Plaża Torre de la Horadada 3 km
Plaża Mil Palmeras 3 km
Lo Romero Golf 6 km
Międzynarodowe lotnisko Region de Murcia 45 km
Lotnisko Alicante Elche 75 km
Okolica oferuje również doskonałe połączenia drogowe z pobliskimi nadmorskimi miasteczkami, marinami i obiektami rekreacyjnymi, co czyni ją idealną bazą wypadową do zwiedzania Costa Blanca i Costa Calida.
Znajdź swój nowy dom na Costa Blanca
Jeśli szukasz nowoczesnego, nowo wybudowanego bungalowu w pobliżu plaży, z doskonałymi udogodnieniami i fantastyczną lokalizacją, ta inwestycja mieszkaniowa w Pilar de la Horadada jest doskonałą okazją. Skontaktuj się z nami już dziś, aby uzyskać więcej informacji lub umówić się na wizytę.