Oszałamiająca nowa willa w pobliżu Pinoso – ukończenie w grudniu
Ta zupełnie nowa willa, której ukończenie planowane jest na grudzień , znajduje się zaledwie kilka minut jazdy od tętniącego życiem miasta Pinoso i oferuje idealne połączenie nowoczesnego luksusu i spokojnego życia na wsi.
Dom położony jest na przestronnej działce o powierzchni 12 000 m² , z czego około 2000 m² jest solidnie ogrodzone . Oferuje on zarówno przestrzeń, jak i praktyczność. Ogrodzony teren idealnie nadaje się do stworzenia ogrodu krajobrazowego, zapewnienia bezpieczeństwa zwierzętom domowym lub po prostu do cieszenia się prywatnym życiem na świeżym powietrzu bez konieczności pielęgnacji całej działki.
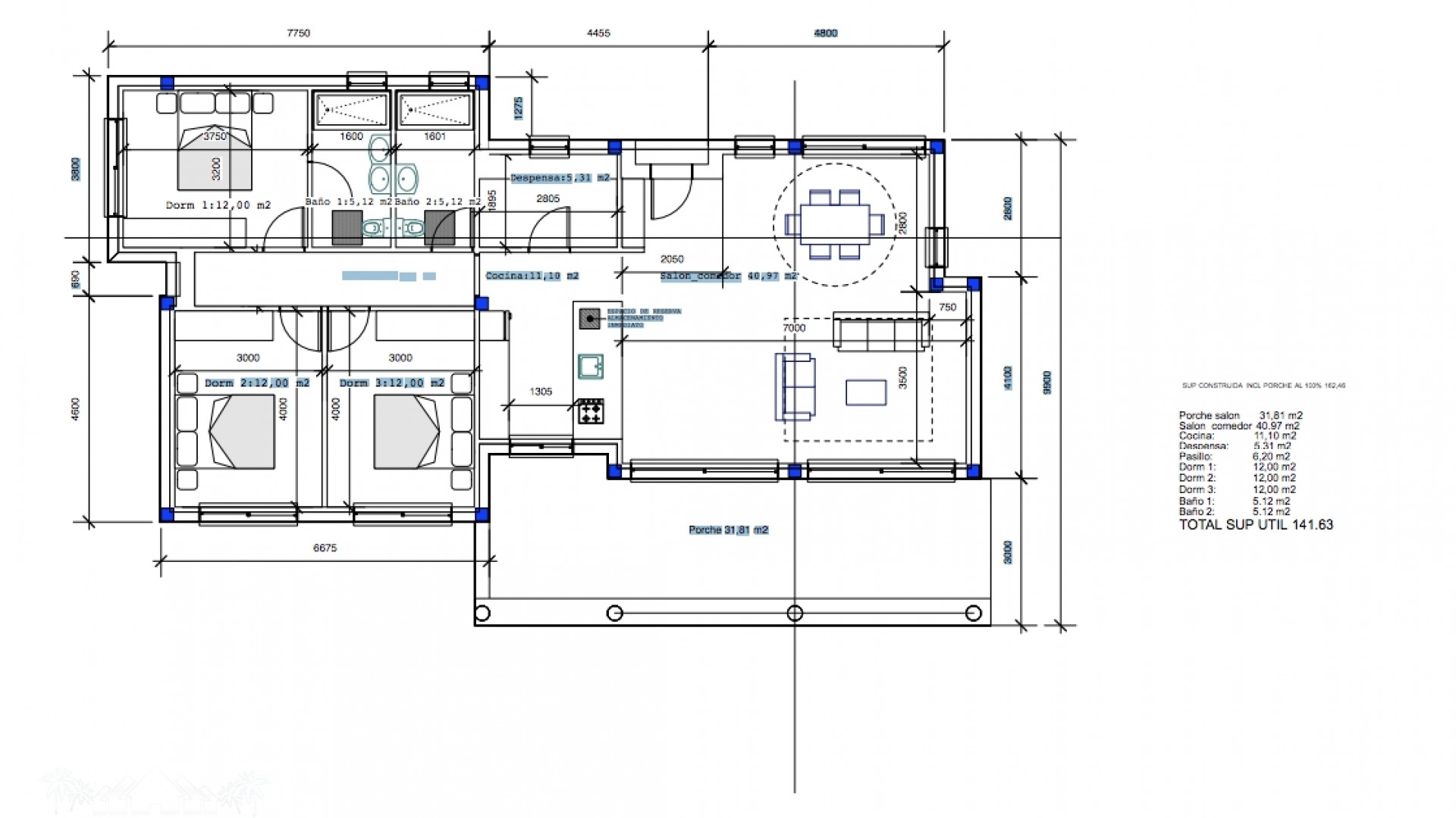
Wnętrze willi oferuje 3 przestronne sypialnie i 2 łazienki , w tym prywatną łazienkę główną . Otwarta przestrzeń dzienna jest jasna i nowoczesna, płynnie przechodząc w przestrzeń zewnętrzną, gdzie znajduje się lśniący prywatny basen o wymiarach 8 x 4 metry , idealny do kąpieli w śródziemnomorskim słońcu. Garaż o powierzchni 40 m² dodatkowo zwiększa praktyczność.
Zaprojektowany z myślą o komforcie i efektywności, obiekt obejmuje szereg nowoczesnych udogodnień, takich jak:
Ogrzewanie podłogowe
Klimatyzacja i ogrzewanie kanałowe
Automatyczny system żaluzji
System zasilania słonecznego
Zaledwie kilka minut stąd, Pinoso oferuje wszystko, czego potrzebujesz: tętniącą życiem społeczność, znakomite lokalne restauracje słynące z wyśmienitej kuchni, tradycyjne fiesty i zachwycające winnice, w których powstają jedne z najlepszych win w regionie. To miasto, w którym autentyczny hiszpański urok spotyka się z codzienną wygodą.
✨ Najważniejsze cechy:
Zakończenie w grudniu
3 sypialnie, 2 łazienki (1 z łazienką)
Działka o powierzchni 12 000 m², w tym ok. 2 000 m² ogrodzona
Nowoczesne systemy komfortu: ogrzewanie podłogowe, klimatyzacja/ogrzewanie kanałowe, automatyczne rolety, energia słoneczna
Garaż 40m²
Prywatny basen o wymiarach 8 x 4 metry
Wiejska okolica w pobliżu Pinoso