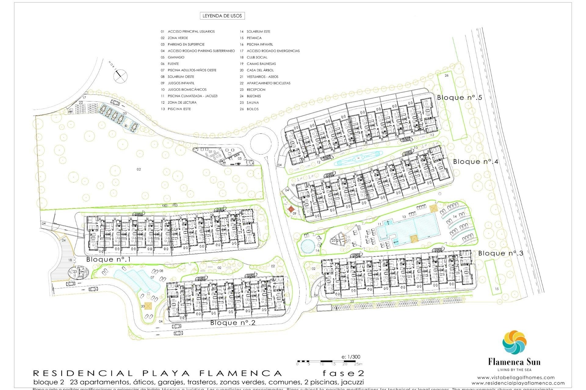
Découvrez un programme résidentiel exclusif de construction neuve à Playa Flamenca, Orihuela Costa, conçu pour ceux qui recherchent un bien moderne, bien situé et avec un fort potentiel, tant pour un usage personnel que pour un investissement sur la Costa Blanca. Il s’agit d’un projet en plusieurs phases, permettant d’acquérir des logements neufs à différents stades de construction, avec un excellent potentiel de valorisation.~~Le résidentiel dispose déjà d’un premier immeuble entièrement achevé et vendu, avec piscine communautaire en service. Le bloc 2 est en phase finale de finition, le bloc 3 en cours de réalisation des cloisons, et le bloc 4 — auquel appartiennent ces logements — est actuellement en phase de fondation et de structure. Cela fait du bloc 4 une opportunité particulièrement intéressante pour acquérir un bien à un prix compétitif dans un environnement en plein développement.~~Les logements offrent un design contemporain, fonctionnel et très lumineux, avec de grandes terrasses idéales pour profiter du climat méditerranéen toute l’année. Disponibles en 2 et 3 chambres, ils disposent d’espaces bien agencés, de cuisines ouvertes à personnaliser et de prestations de qualité telles que menuiserie extérieure en PVC avec double vitrage, sols en grès et pré-installation de climatisation. Chaque logement inclut également une place de parking et un débarras.~~À terme, le résidentiel proposera plusieurs piscines communautaires, de vastes espaces paysagers et des zones de détente, le tout au sein d’une urbanisation privée et sécurisée.~~L’un de ses principaux atouts est son emplacement, à seulement 500 mètres de la plage et à proximité immédiate de tous les services. Il se situe à quelques minutes de Mercadona et du Centro Comercial La Zenia Boulevard, ainsi que de nombreux commerces, restaurants, zones de loisirs, centres médicaux, écoles et terrains de golf.~~En résumé, une opportunité immobilière alliant emplacement, qualité de construction et potentiel de valorisation.~~Prix : 429 000 €*. Taxes et frais d’acquisition NON inclus (selon la réglementation en vigueur).~Le détail des frais supplémentaires sera communiqué avant la réservation.~*Le prix peut contenir des erreurs typographiques ; merci de confirmer auprès du promoteur.