Élégantes villas individuelles avec piscine privée à Peraleja Golf Resort - Costa Cálida
Maisons individuelles de style méditerranéen dans une communauté fermée avec golf
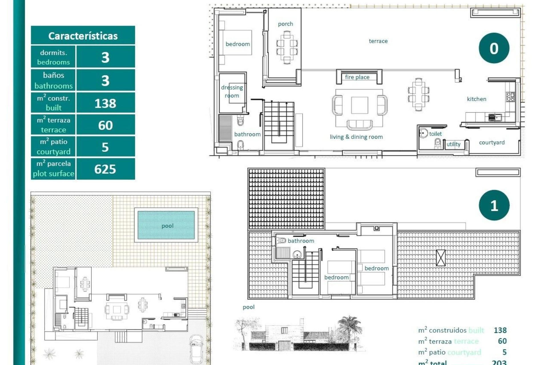
20 villas individuelles avec 6 modèles au choix, comprenant 2, 3 ou 4 chambres et 1, 2 ou 3 étages sur des terrains de 375 à 800 m². Certaines unités disposent d'un solarium sur le toit.
Situées dans le prestigieux Peraleja Golf Resort, dans la région de Murcie, au sud de l'Espagne. Ces maisons méditerranéennes modernes sont situées sur de grands terrains, chacune avec piscine privée, jardin et parking. Conçues avec des toits inclinés et des matériaux naturels tels que le bois et la pierre, ces maisons s'intègrent parfaitement dans le paysage environnant, tout en offrant des intérieurs élégants et intemporels.
Une vie confortable avec des finitions haut de gamme
Chaque maison comprend :
Cuisine américaine entièrement équipée avec appareils électroménagers
Salon-salle à manger lumineux avec une cheminée à bois accueillante
Climatisation centrale et chauffage par radiateurs à gaz
Porte d'entrée blindée et porte d'accès motorisée pour les véhicules
Piscine privée (3,5 x 5,5 m) avec douche extérieure
Points d'eau et éclairage extérieur
Jardin entièrement paysager prêt à être profité
Ces propriétés ont été soigneusement conçues par un architecte de renom, alliant des lignes élégantes à des textures naturelles, créant un environnement unique et harmonieux au sein d'une communauté fermée et sécurisée.
La vie à Peraleja Golf Resort - Nature et sécurité
Les maisons sont situées dans le Peraleja Golf Resort, qui dispose d'un portail de sécurité 24h/24, d'un piano-bar et d'un club-house avec restaurant gastronomique. Le complexe est entouré de zones naturelles protégées où des circuits de randonnée, de jogging et de vélo sont en cours d'aménagement pour les résidents. Le parcours de golf 18 trous, conçu à l'origine par le légendaire Severiano Ballesteros, est en cours de rénovation et sa réouverture est prévue pour fin 2025. Certaines maisons et le club social bénéficient d'une vue lointaine sur la mer.
Emplacement pratique à proximité des plages et des villes
Ce complexe paisible offre un excellent accès à des lieux clés :
Villes de Sucina et Avileses - 3-5 km
Plages de la Mar Menor - 20 km (20 min en voiture)
Ville de Murcie - 25 km (20 min en voiture)
Aéroport de Murcie (RMU) - 25 km (15 min en voiture)
Aéroport d'Alicante (ALC) - 80 km (45 min en voiture)
Centre commercial La Zenia Boulevard - 35 km
Profitez du charme de la Costa Cálida
Situé à proximité de la ville traditionnelle espagnole de Sucina, les résidents peuvent profiter des commerces locaux, des restaurants et du charme authentique, tout en restant à proximité de la côte et de la vie animée de la ville. Cette région est devenue de plus en plus populaire auprès des acheteurs internationaux pour sa qualité de vie, ses bonnes infrastructures, son climat merveilleux tout au long de l'année et son accès à la nature et à la mer.
Contactez-nous dès aujourd'hui pour acquérir la villa de vos rêves à Peraleja Golf et commencez à profiter de la vie sur la Costa Cálida.