Fermer Fermer

Torrevieja. Alicante Appartement. Nouvelle construction

235.000€
#Réf.:RP-19497

Torrevieja. Alicante Appartement. Nouvelle construction

235.000€

Vue d'ensemble

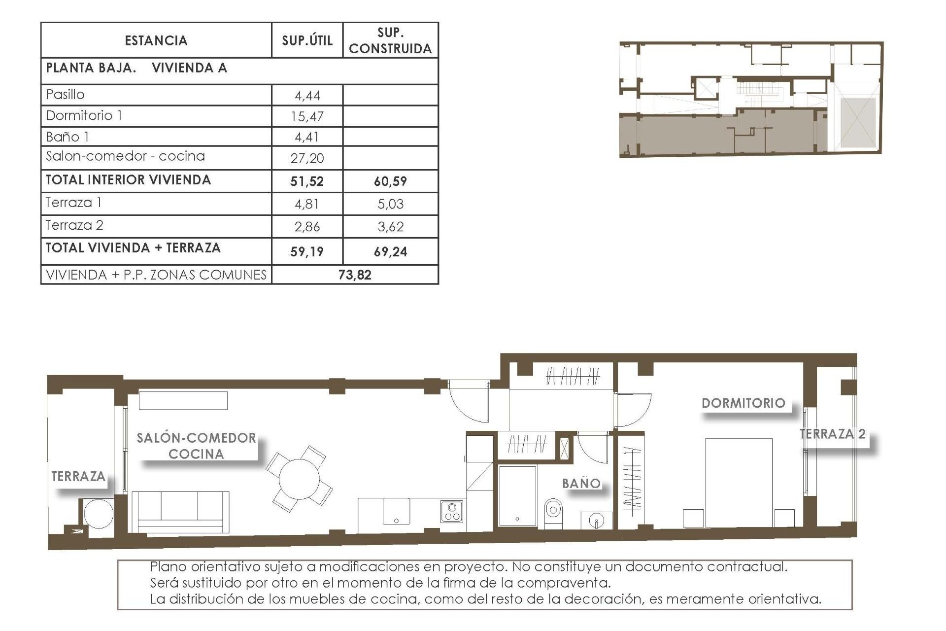
  • Mètres. 60m2
  • Chambre. 1
  • Salle de bain. 1
  • Piscine. Oui
Chambres: 1
Nbr. Sdb: 1
Construit: 60m2
Piscine: Oui
communal pool
Near schools
Near bus route
Gated
Air Conditioning: Pre-Installed
Near Commercial Center
Location: Coastal
Near Childrens Parks
Elevator/Lift
Double Bedrooms: 1
Terrace: 7 Msq.
Useable Build Space: 51 Msq.
Beach: 150 Meters
Space

La description

Torrevieja. Alicante Appartement. Nouvelle construction

Emplacement


Bel-chic

Faire une demande

Responsable du traitement: LEDDY HOMES SPAIN SL, Finalité du traitement: Gestion et contrôle des services proposés sur le site Web des Services immobiliers, Envoi d'informations via newsletter et autres, Base légale: Par consentement, Destinataires: Les données ne seront pas partagées, sauf à des fins comptables, Droits des personnes concernées: Accéder, rectifier et supprimer les données, demander leur portabilité, s’opposer au traitement et en demander la limitation, Source des données: La personne concernée, Informations supplémentaires: Vous pouvez consulter les informations supplémentaires et détaillées sur la protection des données Ici.

Rechercher
Contactez-nous