Fermer Fermer

Villajoyosa. Alicante Appartement. Nouvelle construction

730.000€
#Réf.:RP-76832

Villajoyosa. Alicante Appartement. Nouvelle construction

730.000€

Vue d'ensemble

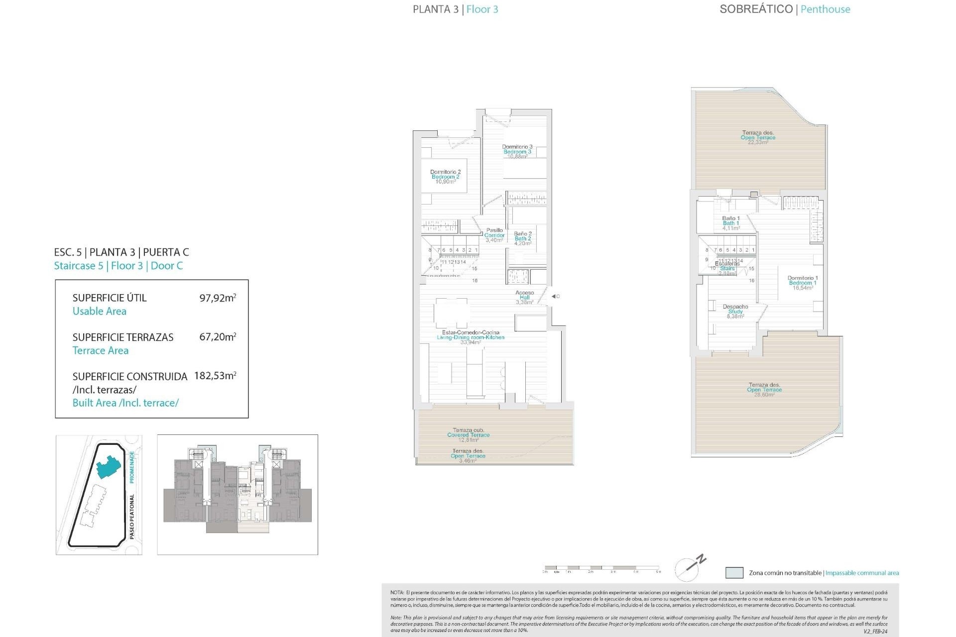
  • Mètres. 115m2
  • Chambre. 3
  • Salle de bain. 2
  • Piscine. Oui
Chambres: 3
Nbr. Sdb: 2
Construit: 115m2
Piscine: Oui
communal pool
Gym
Near schools
Solarium: Yes
Gated
Number of Parking Spaces: 1
Air Conditioning: Pre-Installed
Double Bedrooms: 3
Near Commercial Center
Location: Coastal, Urbanisation
Elevator/Lift
Views: Sea
Terrace: 66 Msq.
Beach: 200 Meters
Parking - Space
Useable Build Space: 97 Msq.

La description

Villajoyosa. Alicante Appartement. Nouvelle construction

Emplacement


Bel-chic

Faire une demande

Responsable du traitement: LEDDY HOMES SPAIN SL, Finalité du traitement: Gestion et contrôle des services proposés sur le site Web des Services immobiliers, Envoi d'informations via newsletter et autres, Base légale: Par consentement, Destinataires: Les données ne seront pas partagées, sauf à des fins comptables, Droits des personnes concernées: Accéder, rectifier et supprimer les données, demander leur portabilité, s’opposer au traitement et en demander la limitation, Source des données: La personne concernée, Informations supplémentaires: Vous pouvez consulter les informations supplémentaires et détaillées sur la protection des données Ici.

Bel-chicPropriétés similaires

Rechercher
Contactez-nous