Nouveau complexe résidentiel exclusif à Orihuela Costa
Situation privilégiée au cœur de la Costa Blanca
Ce complexe résidentiel moderne est situé à Orihuela Costa, l'une des zones les plus recherchées de la Costa Blanca, à seulement 4 km des plages d'Orihuela Costa. Son excellente situation vous permet de profiter du soleil méditerranéen tout au long de l'année, tout en ayant accès à un large éventail de loisirs, de golfs et de services.
À 5 minutes en voiture, vous trouverez le terrain de golf de Villamartin et le centre commercial La Zenia Boulevard, le plus grand de la province d'Alicante, avec plus de 150 magasins, restaurants et espaces de divertissement.
Design moderne et maisons exclusives
Ce lotissement propose une sélection de maisons neuves conçues selon les normes de qualité et de confort les plus strictes :
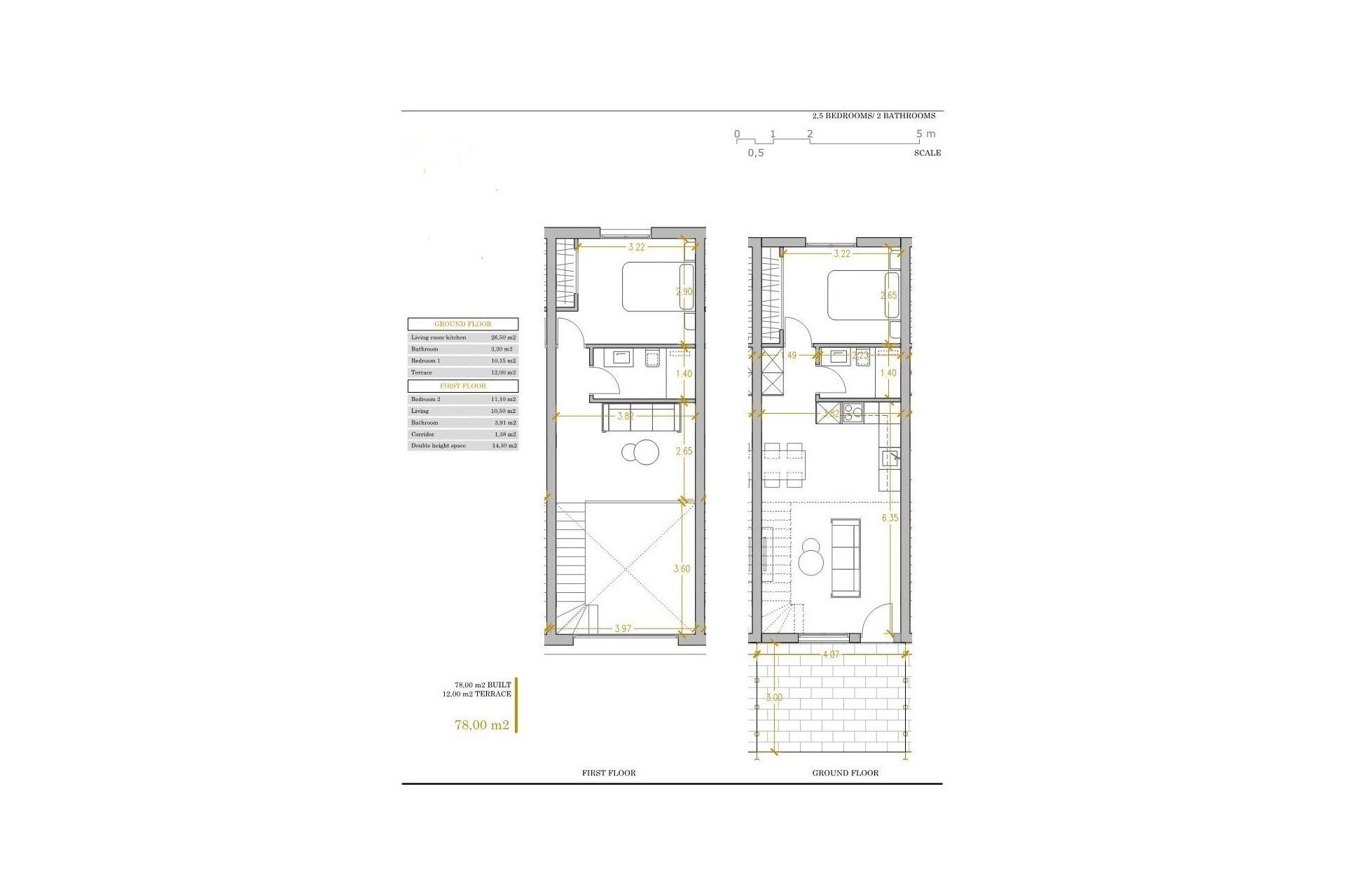
7 maisons de ville de 2 et 3 chambres avec accès à une piscine commune.
2 villas individuelles de 3 chambres et 3 salles de bains, chacune avec piscine privée.
En option : places de parking souterrain et salles de stockage pour un coût supplémentaire.
Qualités et caractéristiques exclusives
Chaque propriété a été conçue selon une approche moderne et fonctionnelle :
Extérieurs paysagés avec gazon artificiel près de la piscine.
Chauffage aérothermique pour une meilleure efficacité énergétique.
Cuisine avec bar de petit-déjeuner en quartz, coin salon et évier métallique de 50 cm.
Escalier avec rampe en verre et en acier inoxydable.
Salles de bains entièrement équipées, avec éléments muraux, miroir et pare-douche.
Pré-installation d'un système de climatisation.
Placards aménagés dans chaque chambre, avec portes coulissantes et système de fermeture en douceur.
Porte d'entrée sécurisée pour la tranquillité d'esprit.
Proximité des points d'intérêt
Plage de Punta Prima - 4 km.
Terrain de golf de Villamartin - 5 km.
Centre commercial La Zenia Boulevard - 5 km.
Centre ville de Torrevieja - 10 km.
Aéroport d'Alicante - 40 minutes.
Aéroport de Murcia-Corvera - 1 heure.
Découvrez le style de vie méditerranéen
Ce complexe résidentiel exclusif est idéal pour ceux qui recherchent une maison moderne sur la Costa Blanca, avec accès aux plages, au golf et à toutes les commodités. Ne manquez pas cette opportunité unique et contactez-nous dès aujourd'hui pour plus d'informations ou pour organiser une visite.