Fermer Fermer

Vera. Almería Appartement. Nouvelle construction

234.000€
#Réf.:RP-14058

Vera. Almería Appartement. Nouvelle construction

234.000€

Vue d'ensemble

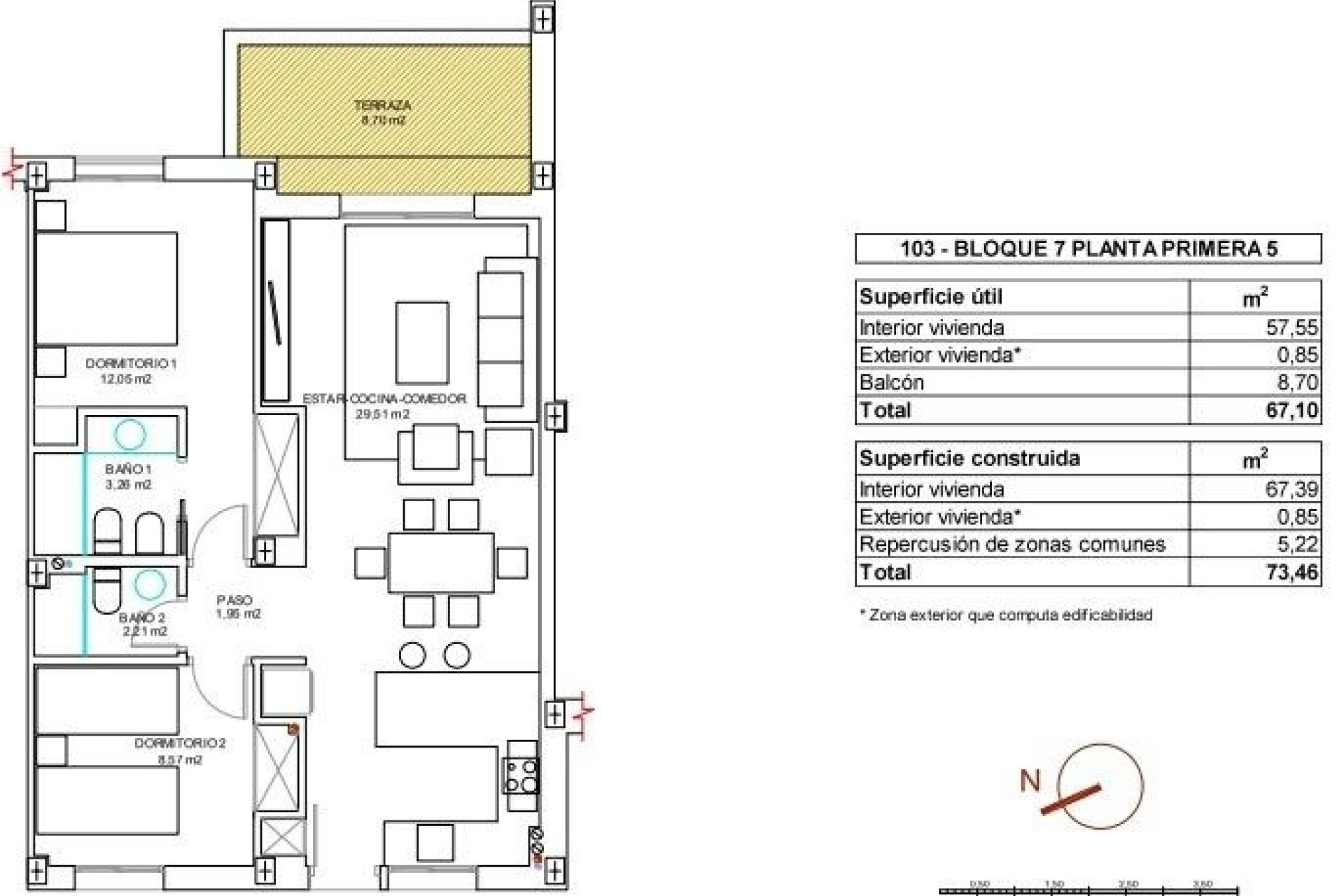
  • Mètres. 73m2
  • Chambre. 2
  • Salle de bain. 2
  • Piscine. Oui
Chambres: 2
Nbr. Sdb: 2
Construit: 73m2
Piscine: Oui
Beach: 400 Meters
Parking - Space
communal pool
Gym
Gated
Number of Parking Spaces: 1
Air Conditioning: Pre-Installed
Double Bedrooms: 2
Location: Coastal, Urbanisation
Elevator/Lift
Useable Build Space: 67 Msq.
Terrace: 8 Msq.

La description

Vera. Almería Appartement. Nouvelle construction

Emplacement


Bel-chic

Faire une demande

Responsable du traitement: LEDDY HOMES SPAIN SL, Finalité du traitement: Gestion et contrôle des services proposés sur le site Web des Services immobiliers, Envoi d'informations via newsletter et autres, Base légale: Par consentement, Destinataires: Les données ne seront pas partagées, sauf à des fins comptables, Droits des personnes concernées: Accéder, rectifier et supprimer les données, demander leur portabilité, s’opposer au traitement et en demander la limitation, Source des données: La personne concernée, Informations supplémentaires: Vous pouvez consulter les informations supplémentaires et détaillées sur la protection des données Ici.

Rechercher
Contactez-nous