Cerrar Cerrar

Orihuela Costa. Alicante Apartamento / Piso. Obra Nueva

395.000€
#Ref.:RP-96109

Orihuela Costa. Alicante Apartamento / Piso. Obra Nueva

395.000€

Resumen

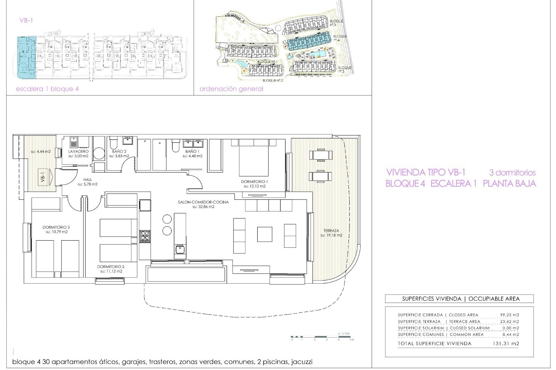
  • Metros. 99m2
  • Habitación. 3
  • Baño. 2
  • Piscina.
Habitaciones: 3
Baños: 2
Construidos: 99m2
Piscina:
Terrace: 23 Msq.
Parking - Space
Almacenamiento / Trastero
Garden
communal pool
Near schools
Near bus route
Gated
Number of Parking Spaces: 1
Air Conditioning: Pre-Installed
Double Bedrooms: 3
Near Trees
Near Commercial Center
Location: Coastal, Urbanisation
Elevator/Lift
Useable Build Space: 90 Msq.
Beach: 500 Meters

Descripción

Orihuela Costa. Alicante Apartamento / Piso. Obra Nueva

Localización


Bel-chic

Realizar una consulta

Responsable del tratamiento: LEDDY HOMES SPAIN SL, Finalidad del tratamiento: Gestión y control de los servicios ofrecidos a través de la página Web de Servicios inmobiliarios, Envío de información a traves de newsletter y otros, Legitimación: Por consentimiento, Destinatarios: No se cederan los datos, salvo para elaborar contabilidad, Derechos de las personas interesadas: Acceder, rectificar y suprimir los datos, solicitar la portabilidad de los mismos, oponerse altratamiento y solicitar la limitación de éste, Procedencia de los datos: El Propio interesado, Información Adicional: Puede consultarse la información adicional y detallada sobre protección de datos Aquí.

Buscar
Contacte con Nosotros