Cerrar Cerrar

Fuente Álamo. Murcia Chalet Independiente. Obra Nueva

242.000€
#Ref.:RP-79162

Fuente Álamo. Murcia Chalet Independiente. Obra Nueva

242.000€

Resumen

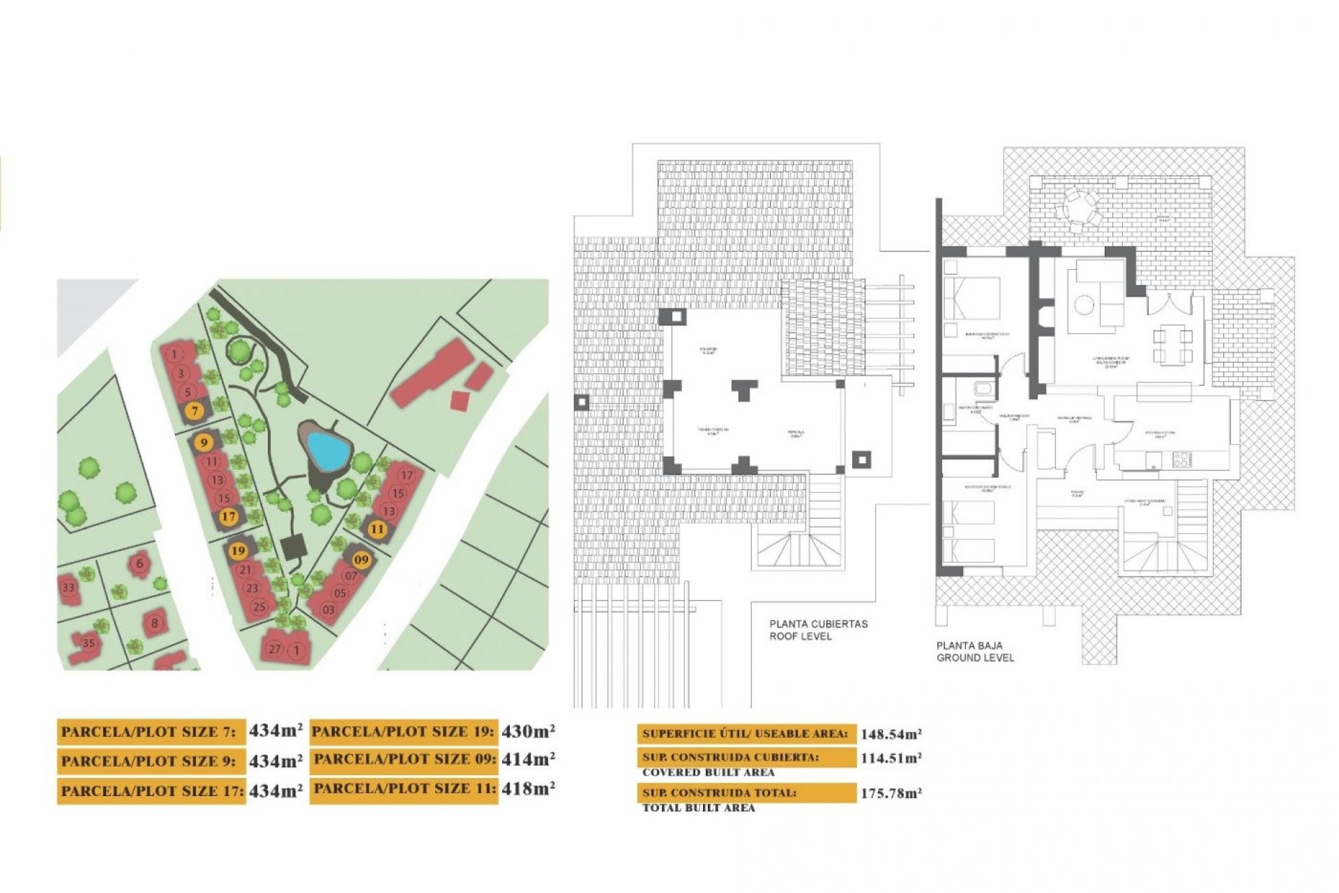
  • Metros. 175m2
  • Parcela. 430m2
  • Habitación. 2
  • Baño. 1
Habitaciones: 2
Baños: 1
Construidos: 175m2
Parcela: 430m2
Garden
Key ready
Gated
Number of Parking Spaces: 1
Air Conditioning: Pre-Installed
Double Bedrooms: 2
Beach: 7500 Meters
Useable Build Space: 148 Msq.
Terrace: 45 Msq.
Location: Rural, Urbanisation
Parking - Space
Almacenamiento / Trastero

Descripción

Fuente Álamo. Murcia Chalet Independiente. Obra Nueva

Localización


Bel-chic

Realizar una consulta

Responsable del tratamiento: LEDDY HOMES SPAIN SL, Finalidad del tratamiento: Gestión y control de los servicios ofrecidos a través de la página Web de Servicios inmobiliarios, Envío de información a traves de newsletter y otros, Legitimación: Por consentimiento, Destinatarios: No se cederan los datos, salvo para elaborar contabilidad, Derechos de las personas interesadas: Acceder, rectificar y suprimir los datos, solicitar la portabilidad de los mismos, oponerse altratamiento y solicitar la limitación de éste, Procedencia de los datos: El Propio interesado, Información Adicional: Puede consultarse la información adicional y detallada sobre protección de datos Aquí.

Buscar
Contacte con Nosotros