Villas independientes de nueva construcción en venta en Águilas, Murcia, a solo 500 m de la playa
Exclusivas villas nuevas en la zona residencial de Los Jardines
Descubra esta exclusiva promoción de solo nueve villas independientes de nueva construcción situadas en la tranquila zona residencial de Águilas, en la hermosa Costa Cálida. Ubicadas en el codiciado barrio de Los Jardines, estas modernas viviendas combinan una arquitectura contemporánea, interiores espaciosos y una ubicación privilegiada en la costa, a solo 500 metros de la playa de Las Delicias.
Águilas es una encantadora ciudad mediterránea conocida por sus playas de aguas cristalinas, su ambiente tradicional español y sus más de 300 días de sol al año. La ciudad ofrece una amplia gama de servicios, incluyendo tiendas, restaurantes, colegios y centros de salud, lo que la convierte en una excelente opción tanto para vivir como para pasar las vacaciones. La zona de Los Jardines destaca por sus calles tranquilas, sus zonas verdes y su cómodo acceso al centro de la ciudad.
Diseño moderno y espacioso en tres niveles
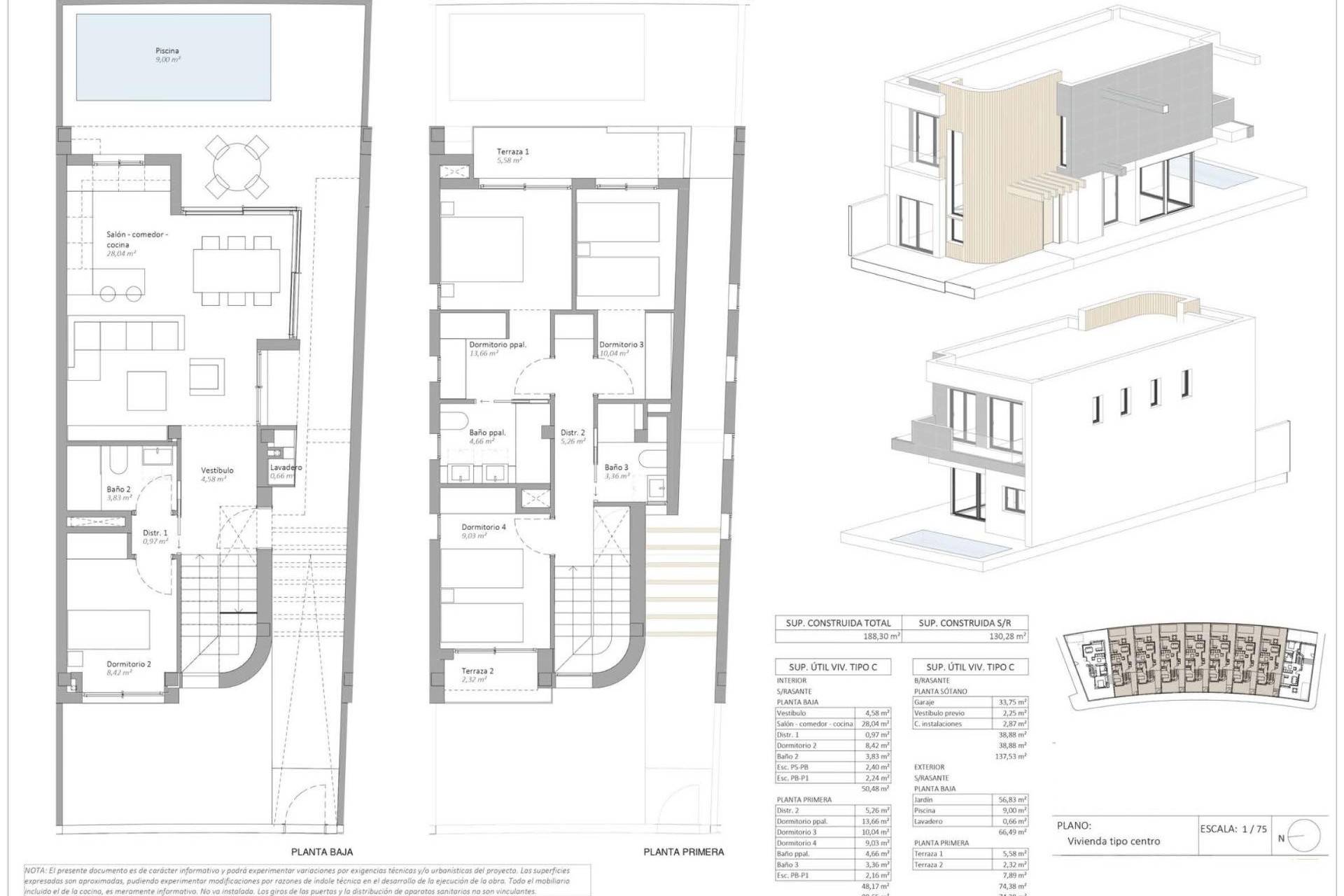
Cada villa ofrece una superficie construida de 190 m2 y ha sido cuidadosamente diseñada para maximizar el confort, la luz natural y la funcionalidad. Las viviendas se distribuyen en dos plantas principales más un sótano.
La planta baja cuenta con un luminoso salón diáfano, comedor y cocina moderna. Un gran ventanal en esquina conecta el espacio interior con el jardín privado y la piscina, creando un estilo de vida interior y exterior sin fisuras. Esta planta también incluye un dormitorio, un cuarto de baño y una zona de lavandería situada en la terraza.
En la primera planta se encuentran tres amplios dormitorios y dos cuartos de baño, uno de ellos en suite. Dos de los dormitorios tienen acceso directo a terrazas privadas, perfectas para disfrutar del clima mediterráneo y de las vistas abiertas.
El sótano ofrece un garaje privado con espacio para uno o dos coches, un trastero y acceso interno directo a la planta principal.
Construcción de alta calidad y características modernas
Estas villas han sido diseñadas con materiales de calidad y acabados modernos para garantizar el confort y la eficiencia.
Puerta de entrada blindada
Preinstalación para aire acondicionado por conductos
Carpintería exterior con rotura de puente térmico y doble acristalamiento
Barandillas de cristal que realzan el diseño moderno
Jardín privado y piscina
La promoción ofrece un equilibrio perfecto entre privacidad, estilo y funcionalidad, ideal para familias o compradores que buscan una vivienda espaciosa cerca del mar.
Excelente ubicación cerca de playas y servicios
Las villas gozan de una excelente ubicación con fácil acceso a playas, campos de golf y destinos clave de la región.
Playa Las Delicias 0,7 km
Puerto Deportivo de Águilas 2 km
Águilon Golf 18 km
Aeropuerto Internacional de la Región de Murcia 75 km
Cartagena 110 km
Águilas también es famosa por su puerto deportivo, los deportes acuáticos, los paseos marítimos y los eventos culturales, como su carnaval, reconocido internacionalmente.
Una casa mediterránea perfecta le espera
Estas villas de nueva construcción en Águilas ofrecen comodidad moderna, amplios espacios y un estilo de vida costero inmejorable en la Costa Cálida. Póngase en contacto con nosotros hoy mismo para obtener más información o concertar una visita y descubrir su nueva casa junto al mar.