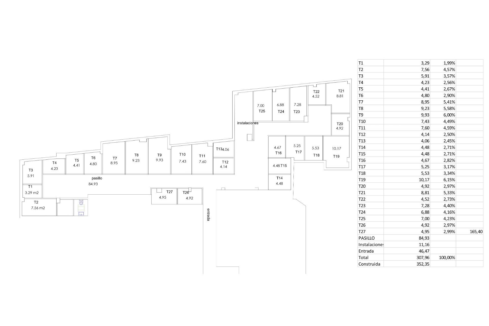
Planet Villa präsentiert seine Aktion für neu gebaute Lagerräume in zweiter Reihe der Naturpools von Torrevieja.~Diese Aktion besteht aus 27 Lagerräumen von 3,29 m² bis 10,17 m².~Die Lagerräume verfügen über eine eigene Gemeinschaft mit Gemeinschaftstoiletten für die Eigentümer, Überwachungskameras in den Fluren und am Eingang.~Darüber hinaus gibt es einen Zugang über eine Rampe, um den Eigentümern den Transport von Möbeln und anderen schweren Lasten durch die Flure zum Lagerraum zu erleichtern.~Nicht zu vergessen, dass die Gemeinschaft Transportkörbe zur Verfügung stellen wird, um ihre Habseligkeiten zu den Lagerräumen zu tragen.~~VERFÜGBARKEIT:~~LAGERRAUM NR. 1 MIT 3,29 M² ZUM PREIS VON 5.900 € - RESERVIERT~LAGERRAUM NR. 2 MIT 7,56 M² ZUM PREIS VON 11.000 € - RESERVIERT~LAGERRAUM NR. 3 MIT 5,91 M² ZUM PREIS VON 6.900 € - RESERVIERT~LAGERRAUM NR. 4 MIT 4,23 M2 ZUM PREIS VON 6.900 € - RESERVIERT~LAGERRAUM NR. 5 MIT 4,41 M2 ZUM PREIS VON 6.900 € - VERFÜGBAR~LAGERRAUM NR. 6 MIT 4,80 M2 ZUM PREIS VON 6.900 € - RESERVIERT~LAGERRAUM NR. 7 MIT 8,95 M2 ZUM PREIS VON 13.500 € - VERFÜGBAR~LAGERRAUM NR. 8 MIT 9,23 M2 ZUM PREIS VON 13.500 € - VERFÜGBAR~LAGERRAUM NR. 9 MIT 9,93 M2 ZUM PREIS VON 14.900 € - VERFÜGBAR~LAGERRAUM NR. 10 MIT 7,43 M2 ZUM PREIS VON 10.900 € - VERFÜGBAR~LAGERRAUM NR. 11 MIT 7,60 M2 ZUM PREIS VON 10.900 € - VERFÜGBAR~LAGERRAUM NR. 12 MIT 4,14 M2 ZUM PREIS VON 6.900 € - VERKAUFT~LAGERRAUM NR. 13 MIT 4,06 M2 ZUM PREIS VON 6.900 € - VERKAUFT~LAGERRAUM NR. 14 MIT 4,48 M2 ZUM PREIS VON 6.900 € - VERKAUFT~LAGERRAUM NR. 15 MIT 4,48 M2 ZUM PREIS VON 6.900 € - VERFÜGBAR~LAGERRAUM NR. 16 MIT 4,67 M2 ZUM PREIS VON 6.900 € - VERFÜGBAR~LAGERRAUM NR. 17 MIT 5,25 M2 ZUM PREIS VON 6.900 € - VERKAUFT~LAGERRAUM M2 ZU EINEM PREIS VON 6.900€ - RESERVIERT~LAGERRAUM NR. 19 MIT 10,17 M2 ZU EINEM PREIS VON 14.900€ - VERFÜGBAR~LAGERRAUM NR. 20 MIT 4,92 M2 ZU EINEM PREIS VON 6.900€ - VERKAUFT~LAGERRAUM NR. 21 MIT 8,81 M2 ZU EINEM PREIS VON 13.500€ - VERFÜGBAR~LAGERRAUM NR. 22 MIT 4,52 M2 ZU EINEM PREIS VON 6.900€ - VERFÜGBAR~LAGERRAUM NR. 23 MIT 7,28 M2 ZU EINEM PREIS VON 10.900€ - VERFÜGBAR~LAGERRAUM NR. 24 MIT 6,88 M2 ZU EINEM PREIS VON 9.900€ - VERFÜGBAR~LAGERRAUM NR. 25 MIT PREIS 9.900 € - VERFÜGBAR~LAGERRAUM NR. 26 MIT 4,92 M2 ZUM PREIS 6.900 € - RESERVIERT~LAGERRAUM NR. 27 MIT 4,95 M2 ZUM PREIS 6.900 € - RESERVIERT~